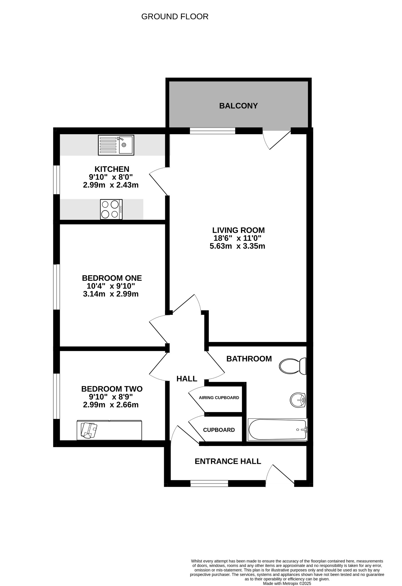
DESCRIPTIONA two bedroom upper ground floor flat located within this popular development WITH THE BENEFIT OF AN EXTENDED LEASE, its own south-facing balcony and secure underground parking. The property's accommodation briefly comprises of a communal entrance with security entry system, private entrance, two bedrooms, a three piece bathroom, living room with south-facing balcony and separate kitchen. The property has double glazed windows and electric heating. There is secure underground parking for one vehicle plus ample visitors' parking and attractive communal grounds.
As sole agents, we would highly recommend an early inspection.
STAIRCASE TO COMMUNAL ENTRANCE HALL
With security entrance system.
PRIVATE FRONT DOOR
Leading to:
ENTRANCE HALL
Airing cupboard and further storage cupboard. Doors to:
LIVING ROOM
Double glazed door and window to south-facing balcony. Two electric panel heaters. Coved and skimmed ceiling. Door to:
KITCHEN
Double glazed window to side elevation. One and a half bowl single drainer sink unit with cupboard under. Further range of wall and base level units with roll edge work surfaces over and splash back tiling. Built-in ceramic hob with cooker hood over and electric oven beneath. Recess for fridge/freezer (fridge/freezer to remain). Built-in and concealed dishwasher. Washing machine to remain. Coved and skimmed ceiling. Fitted wine rack.
BEDROOM ONE
Double glazed window to side elevation.
BEDROOM TWO
Double glazed window to side elevation. Wardrobe to remain.
BATHROOM
Panel enclosed bath with electric shower unit over and shower screen. Vanity unit with wash hand basin and storage beneath. Low level close coupled WC. Heated chrome towel rail. Tiled floors. Extractor fan.
OUTSIDE
The property benefits from secure underground parking for one vehicle. There is further visitors' parking available. The property is set within extensive communal gardens.
LEASE INFORMATION
Remainder of a 154 year lease dated 29th March 2012 (140 years remaining).
Maintenance/Service Charge: £635 payable for the period 1 April 2025 to 30 September 2025 (to include any ground rent payable). Please note the figure given is for 6 months only.
COUNCIL TAX
Fareham Borough Council. Tax Band B. Payable 2025/2026. £1,683.54.
Read full description
Show less