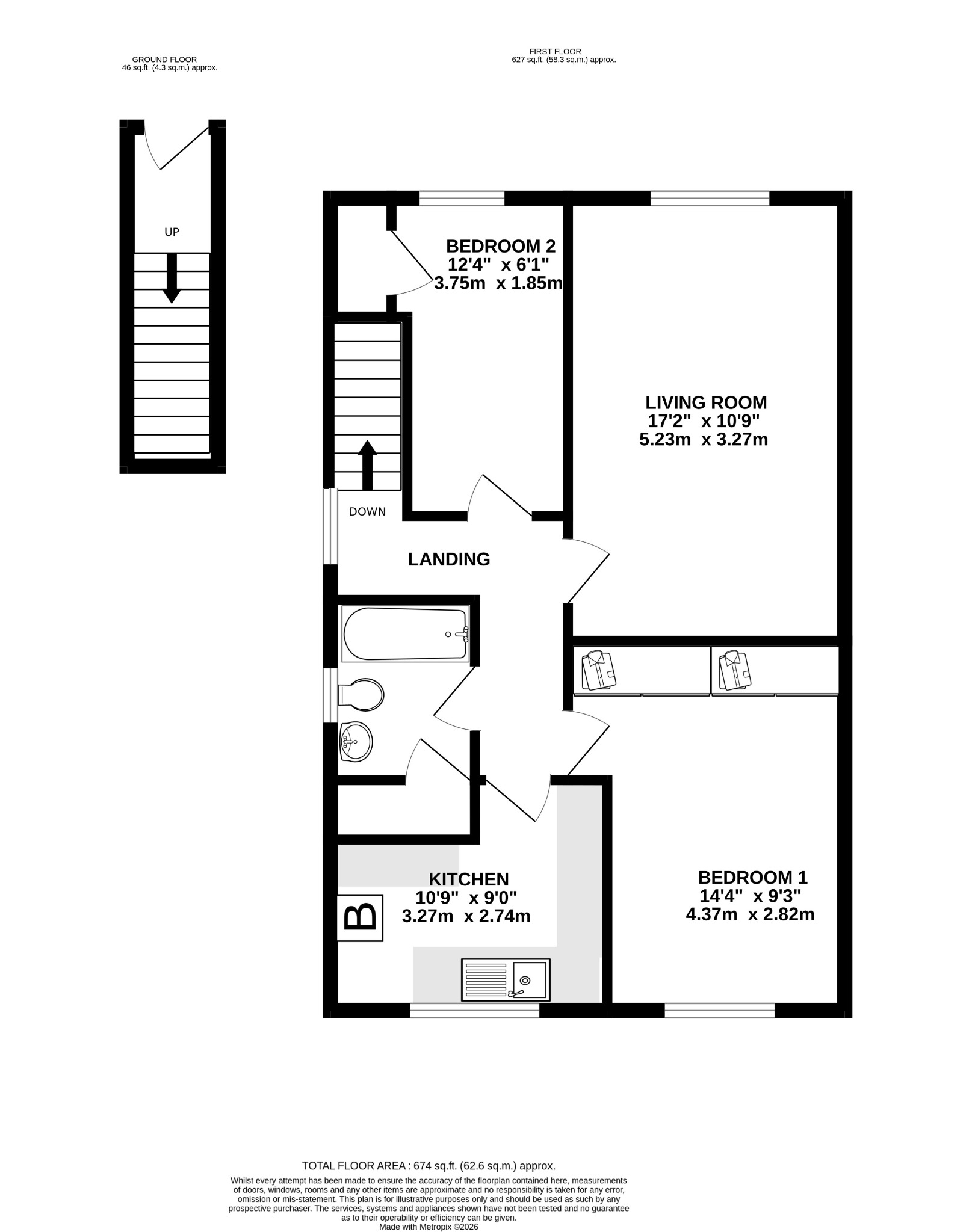
DESCRIPTION NO FORWARD CHAIN. A purpose built first floor maisonette WITH NO MONTHLY MAINTENANCE/SERVICE CHARGE, which benefits from its own front door and an enclosed rear garden. The property's accommodation briefly comprises of; double glazed door to entrance hall, living room, kitchen, two bedrooms with built-in storage and a bathroom. The property benefits from double glazing and is warmed by gas central heating. There is allocated parking and own rear garden. As sole agents we would highly recommend an early inspection.
DOUBLE GLAZED DOOR TO:
ENTRANCE HALL
Stairs to:
FIRST FLOOR LANDING
Double glazed window to side elevation. Access to part boarded loft space. Doors to:
LIVING ROOM
Double glazed window to front elevation. Radiator. Coved and textured ceiling.
KITCHEN
Double glazed window to rear elevation. Kitchen comprising; stainless steel single drainer sink unit with cupboard under. Further range of wall and base level units with roll edge work surfaces over and splashback tiling. Built-in four ring gas hob with cooker hood over and electric oven beneath. Plumbing for washing machine. Recess for fridge/freezer. Breakfast bar. Wall mounted gas boiler.
BEDROOM ONE
Double glazed window to rear elevation. Radiator. Range of built-in wardrobes with sliding doors.
BEDROOM TWO
Double glazed window to front elevation. Radiator. Storage cupboard.
BATHROOM
Double glazed window to side elevation. Panel enclosed bath with shower unit over and shower screen. Pedestal wash hand basin. Low level close coupled WC. Tiled walls. Radiator. Large storage cupboard.
OUTSIDE
The property benefits from its own allocated parking space, which can be found in the parking area to the right side of the property. A further feature of this first floor apartment is its own low-maintenance rear garden, which is fence enclosed offering a good degree of privacy. The garden has artificial lawn with a timber decked area to one end. Outside understairs storage cupboard.
LEASE INFORMATION
Remainder of a 999 year lease from 01/01/1984.
Ground rent: Peppercorn.
COUNCIL TAX
Fareham Borough Council. Tax Band B. Payable 2026/2027. £2,018.27.
Read full description
Show less