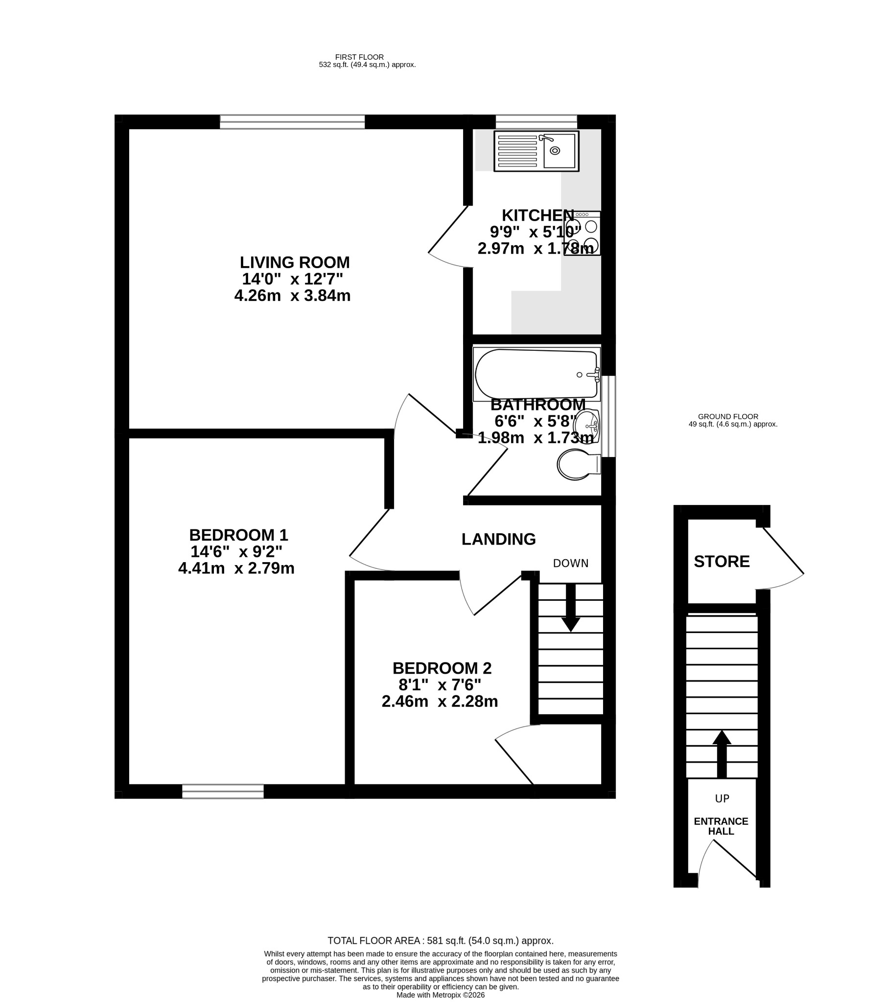
DESCRIPTIONNO FORWARD CHAIN. A modern first floor two bedroom maisonette located within a popular residential position close to local schools and amenities. The property is approached via its own private front door and has a staircase to the first floor. There is a living room, separate kitchen with window, two bedrooms and a three piece bathroom. The property benefits from double glazing and is warmed by gas central heating. As sole agents, we would highly recommend an early inspection.
PRIVATE FRONT DOORLeading to:
ENTRANCE HALLStaircase to first floor.
LANDING
Access to loft space. Airing cupboard housing hot water cylinder. Doors to:
LIVING ROOM
Double glazed window to rear elevation. Coved and textured ceiling. Radiator. Door to:
KITCHEN
Double glazed window to front elevation. Stainless steel single drainer sink unit with cupboard under. Further range of wall and base level units with roll edge work surfaces over and splash back tiling. Built-in four ring gas hob with cooker hood over and electric oven beneath. Plumbing for washing machine. Recess for fridge/freezer. Radiator. Coved and textured ceiling. Wall mounted gas boiler.
BEDROOM ONE
Double glazed window to front elevation. Radiator.
BEDROOM TWO
Double glazed window to front elevation. Radiator. Coved and textured ceiling. Built-in storage cupboard.
BATHROOM
Double glazed window to side elevation. Panel enclosed bath with shower unit over. Pedestal wash hand basin. Low level close coupled WC. Part tiled walls.
OUTSIDE
There is non-allocated parking within Redwood Drive, including a parking area to the front.
The property also benefits from a useful outside storage cupboard which is set beneath the staircase.
LEASE INFORMATION
Lease length: Remainder of a 125 year lease from 29th January 1989 (87 years remaining).
Maintenance/Service Charge: £325 per annum (for the period 01/04/2026 to 31/03/2027.
Ground Rent: £10 per annum (for the period 01/04/2026 to 31/03/2027.
AGENT’S NOTE
A grant of probate is currently awaited and will be required prior to exchange of contracts.
COUNCIL TAX
Fareham Borough Council. Tax Band B. Payable 2026/2027. £1,765.98.
Read full description
Show less