SSTC

the brackens, dibden purlieu

2 bedrooms | £272,500 | Freehold | SSTC

Call the Hythe office

023 8084 4131

Print
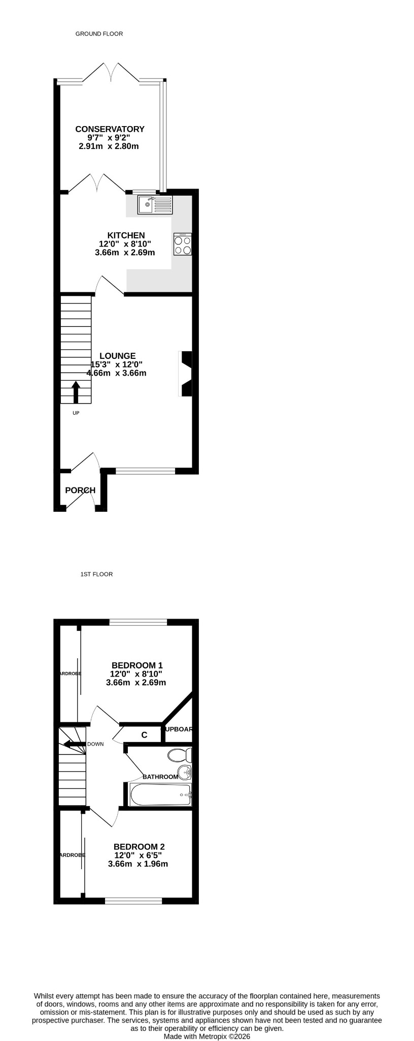
This beautifully presented 2 bedroom property is situated in a quiet, highly desirable cul-de-sac only a short walk from schools. The property offers many beneficial features including UPVC double glazing, gas central heating, a conservatory and parking for 3 vehicles. An internal viewing is highly recommended.

ENTRANCE PORCH:
Door to:

LOUNGE
15' 3" (4.65m) x 12' (3.66m)
Window to front aspect with shutters fitted. Stairs to first floor with recess below. Feature fireplace with gas fire fitted. Engineered walnut flooring. Radiator. Door to:

KITCHEN/DINING ROOM
12' (3.
Read full description

Properties of interest

laburnum crescent, hythe

3 bedrooms | £290,000

furzedale park, hythe

3 bedrooms | £270,000

Register with us, we’ll help make sure you don’t miss your dream home.

Save searches and properties, make notes, set up automatic email alerts for new properties.

Register Now

5* Google Review: If you're reading this and looking for a professional caring service, don't hesitate to use Pearsons Waterlooville. They couldn't have been more helpful and attentive to our needs, and we're so glad we decided to walk through their door and not anyone else's. Tom and his team worked really hard for us to give us the best experience we could possibly have - even when they were really busy, they still made sure our calls were treated with as much attention as they could. Selling a house is never easy, but Pearsons make sure it goes as smooth as it possibly can, and I wouldn't hesitate to recommend them.
Helena Thomas

WHY CHOOSE PEARSONS?

Our Offices


View Office Map

Service | Marketing | Experience

Terms & Conditions | Privacy Policy | Client Money Protection Certificate | Click here for a full list of our lettings fees | Complaints Procedures | Site Map | Website by fruitful studio

©2026 Pearsons | Pearsons Southern Limited is registered in England and Wales. Registered office: Kintyre House, 70 High Street, Fareham, Hants PO16 7BB. Company No. 01517996