This well presented 3 bedroom home is offered in good decorative order throughout and is situated in an established residential area on the outskirts of Hythe. The property offers many additional benefits, including UPVC double glazing, gas central heating, refitted kitchen and bathroom, easily maintained south-facing rear garden and ample off-road parking. AN INTERNAL VIEWING IS HIGHLY RECOMMENDED.
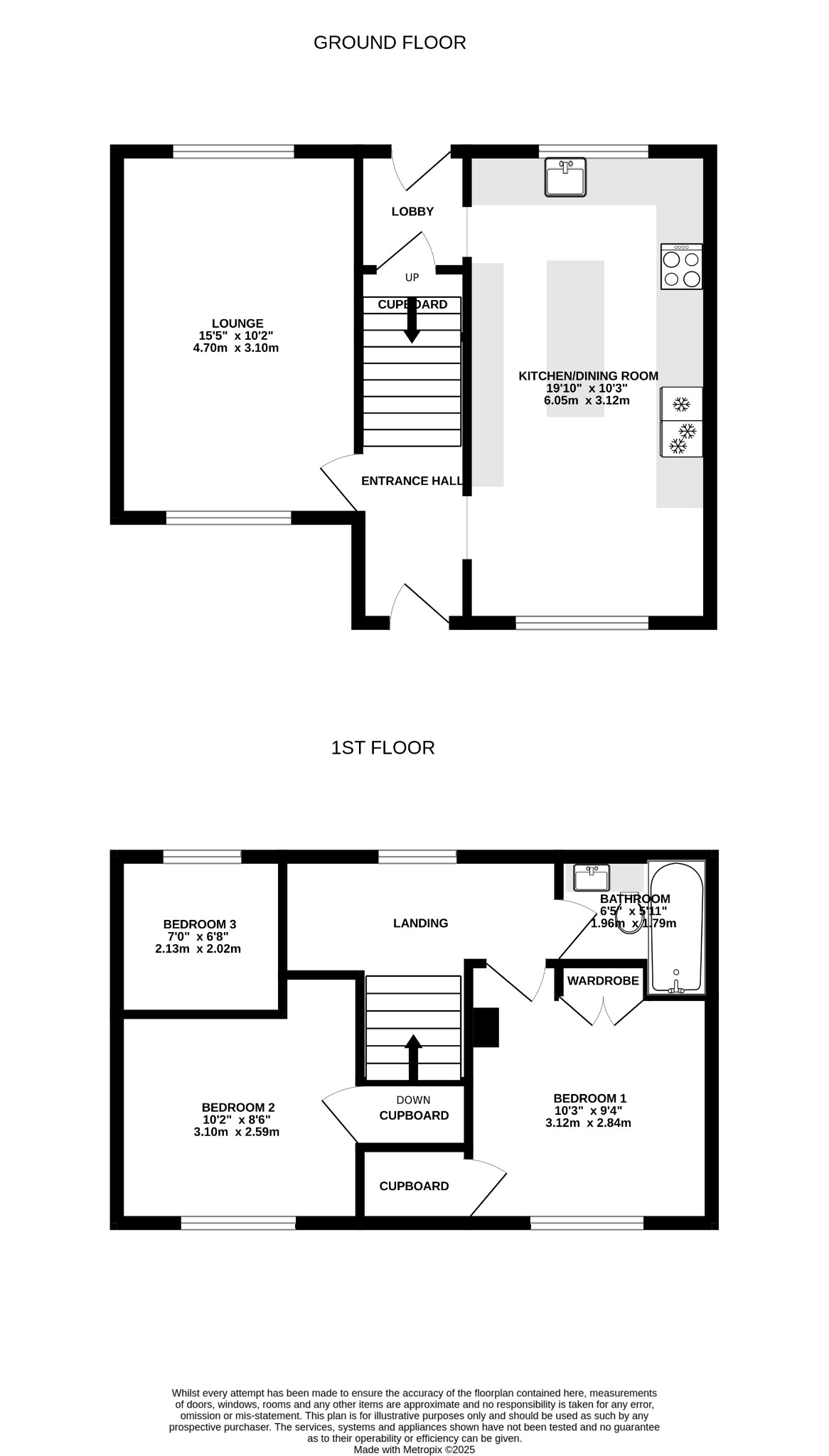
ENTRANCE HALLApproached via Oak front door with engineered Oak flooring. Stairs to first floor. Central Heating Thermostat. Radiator.
LOUNGE15' 5" (4.70m) x 10' 2" (3.
10m)
Window to front and rear aspects. Wall mounted Dimplex electric fire. Two Radiators.
KITCHEN/DINER
19' 10" (6.05m) x 10' 3" (3.12m)
Windows to front and rear aspects. Engineered Oak flooring. Fitted with a comprehensive range of base and wall units with working surfaces over and tiling to splashbacks. Space for American Style fridge freezer. Built-in Bosch electric oven and De Diestrich combination microwave above. Inset induction hob with extractor hood over. Space and plumbing for washing machine and dishwasher. Inset sink with mixer taps. Island with space for a fridge and built-in cupboards below. Radiator. Opening to:
REAR LOBBY
Engineered Oak flooring. Built-in understairs storage cupboard. Double glazed door to garden.
FIRST FLOOR LANDING
Window to rear aspect. Access to loft space with ladder. Radiator.
BEDROOM ONE
10' 3" (3.12m) x 9' 4" (2.84m)
Window to front aspect. Built-in storage cupboard. Built-in wardrobe. Radiator.
BEDROOM TWO
10' 2" (3.10m) x 8' 6" (2.59m)
Window to front aspect. Built-in storage cupboard. Radiator.
BEDROOM THREE
7' (2.13m) x 6' 8" (2.03m)
Window to rear aspect. Radiator.
BATHROOM
6' 5" (1.96m) x 5' 11" (1.80m)
Obscure double glazed window to rear. Comprising white suite of tile panelled bath with shower fitted over and glazed shower screen. Concealed flush WC. Inset wash hand basin with cupboards below. Fully tiled complementary tiling. Chrome heated towel radiator. Inset ceiling light with extractor fan.
OUTSIDE
The front garden is laid to interlocking brick pavia offering ample off-road parking with mature shrubs and bushes.
REAR GARDEN
South facing. Fenced with Charles & Ivy composite fencing to boundaries. Porcelain patio area. Raised composite decking. Timber-built garden shed. Outside tap.
PLEASE NOTE
Planning has been granted to extend the driveway by 3 metres.
COUNCIL TAX
New Forest District Council
Tax Band - B
Charge Payable £1,821.03
Read full description
Show less