DRAFT DETAILS AWAITING VENDOR APPROVAL
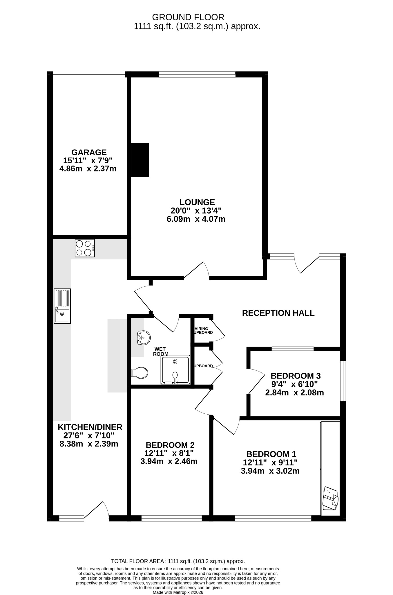
DESCRIPTION Situated in a sought after cul de sac location, is this well-proportioned and extended semi-detached bungalow, which is offered for sale with NO FORWARD CHAIN. The living accommodation includes a large reception hall, lounge, three bedrooms, wet room and 27'6' kitchen/diner. In addition, there is a block paved drive, single integral GARAGE and an established rear garden. The property benefits from gas fired central heating and double glazing. Viewing is highly recommended.
RECEPTION HALL
Extended to provide a particularly well-proportioned hall with two radiators. Airing cupboard with hot water tank. Large built-in storage cupboard with double doors for access.
LOUNGE
Dual aspect with double glazed windows to side and front elevations. Decorative fire surrounds. Two radiators.
WET ROOM
Tiled shower area with wall mounted shower above. Low level WC. Hand basin with cupboards and drawers beneath. Tiled walls. Vertical Radiator.
KITCHEN/DINER
This extended room has a range of fitted kitchen units including base cupboards with drawers and matching wall units. Inset single drainer stainless steel sink unit with mixer tap. Gas hob and electric oven with extractor hood above. Space and plumbing for washing machine and dishwasher. Roll top working surfaces. Radiator.
BEDROOM ONE
Double glazed window to rear elevation. Range of full-width wardrobes with mirror doors. Radiator.
BEDROOM TWO
Double glazed window to rear elevation. Radiator.
BEDROOM THREE
Double glazed window to side elevation. Radiator.
OUTSIDE
The property is approached over a block paved driveway, which provides parking and access to:
SINGLE INTEGRAL GARAGE: Electric up and over door. Adjacent to the drive, there is a lawn with a variety of established shrubs and plants.
The rear garden is mainly laid to lawn with a variety of shrubs and plants, paved patio, timber garden shed and side access leading to the front.
AGENT’S NOTE
A grant of probate is currently awaited and will be required prior to exchange of contracts.
COUNCIL TAX
Fareham Borough Council. Tax Band D. Payable 2026/2027. £2,270.55.
Read full description
Show less