Situated on a popular central Southsea street, this charming ground floor garden flat forms part of an imposing period terrace and is offered with a share of freehold and no forward chain. The property boasts a spacious bay-fronted lounge with impressively tall ceilings, creating a light and airy living space full of character. A well-proportioned double bedroom leads through to a useful lean-to area, ideal for storage or potentially a compact study space. To the rear, a separate dining room flows through to the kitchen, which enjoys views over the private, walled garden - perfect for those seeking outdoor space in a central location.
The accommodation is completed by a bathroom and a welcoming hallway, which also provides access to an undeveloped cellar offering excellent additional storage. The layout offers flexibility to suit a variety of needs; for buyers willing to adopt a slightly smaller main living space, the dining room could serve as a comfortable lounge, allowing the current lounge to be utilised as a second bedroom. Well-presented, this property represents an excellent opportunity for first-time buyers, investors, and those looking to downsize from a house without sacrificing a garden.
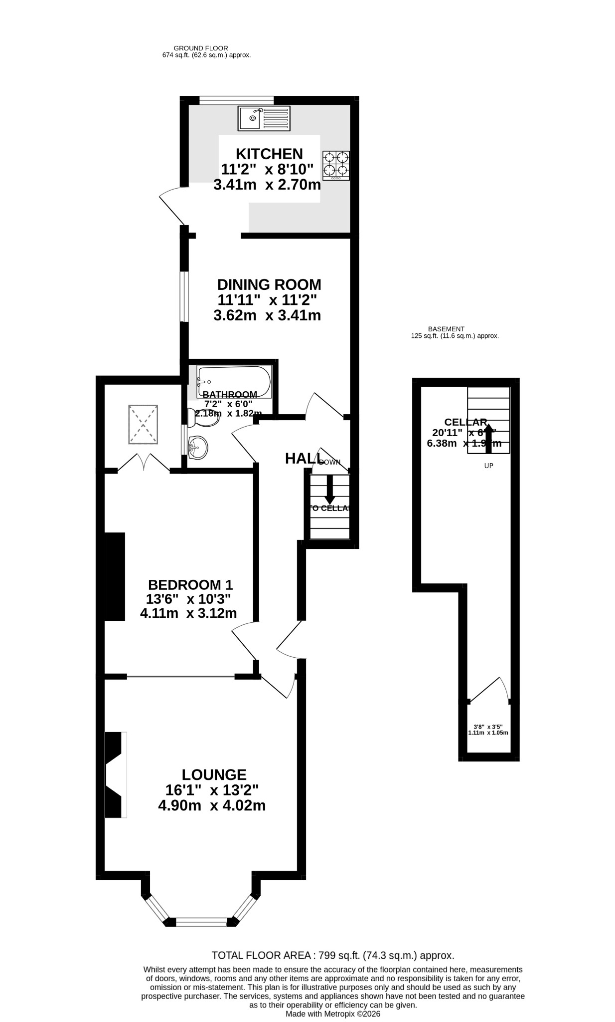
HALL:
Dado rail, radiator, steps to lower level, door to cellar, fitted carpet.
LOUNGE:
Ornate cornicing, ceiling rose, radiator, sash bay window, fireplace with marble surround, fitted carpet.
BEDROOM 1:
Ornate cornicing ceiling rose, radiator, fitted carpet, glazed double doors to lean-to with Velux window, hanging rail, shelving, decorative tiled floor.
BATHROOM:
Obscured window, extractor fan, panelled bath with shower over, ladder radiator, WC, wash hand basin, part tiled walls, vinyl flooring.
DINING ROOM:
Sash window, radiator, fitted carpet.
KITCHEN:
Window overlooking garden, obscured glazed door to garden, range of wall and base mounted units with work surfaces over, inset stainless steel sink and drainer with mixer tap over, integrated electric oven and gas hob, space for appliances, wall mounted Glow Worm gas combination boiler, part tiled walls, laminate flooring.
CELLAR:
Undecorated cellar, meters, lighting, power, carpet, door to former coal chute.
GARDEN:
Wall enclosed private garden, patio, lawn, mature borders, brick built shed.
LEASEHOLD INFORMATION:
Share of Freehold
Lease Commenced:01/02/1987
Lease Term: 150 years
Lease Term Remaining: 111 years
Ground Rent: N/A
Service/Maintenance: 50% of building maintenance, ad hoc.
Annual Building Insurance Contribution: £190.18
COUNCIL TAX
Portsmouth City Council TAX BAND A £1,527.80 for the year 2026/2027.
Read full description
Show less