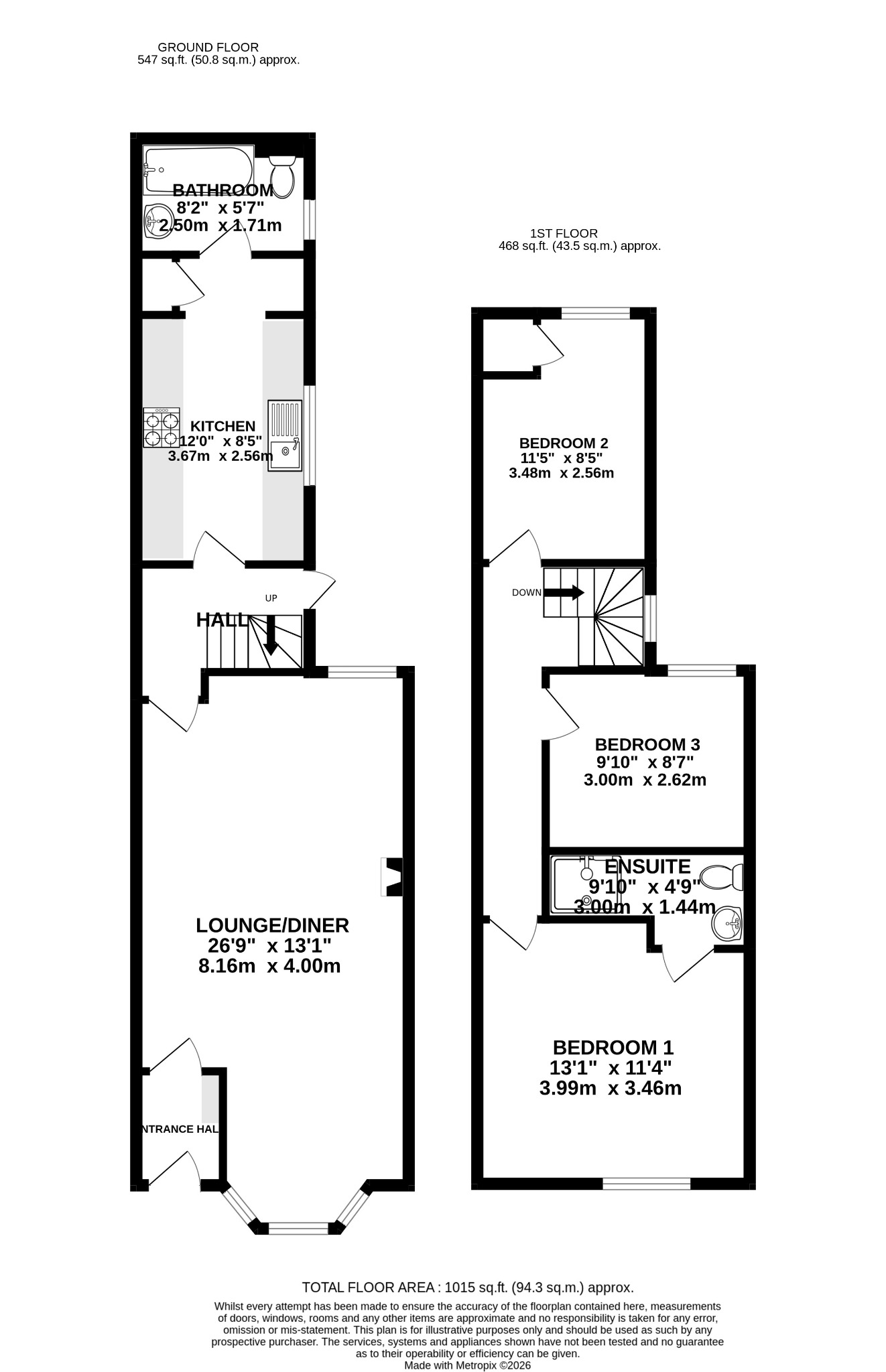
Situated in a highly convenient Southsea location, this three-bedroom mid-terraced house offers well-proportioned accommodation that will appeal to both first-time buyers and buy-to-let investors alike. The property features a long, open-plan lounge/diner providing a versatile living and entertaining space, which leads through to an inner hallway. From here, you’ll find the fitted kitchen and a ground floor bathroom. Upstairs, the accommodation continues with three double bedrooms, including a spacious master bedroom benefiting from its own en-suite shower room.
The home is presented in reasonable condition throughout, offering a solid and practical layout that is perfectly acceptable for immediate occupation while also providing scope for future improvement or personalisation. Jessie Road is ideally positioned just a short distance from Fratton Train Station, making it an excellent choice for commuters. A wide range of local amenities, shops, and services are also close by, adding to the property’s overall convenience and appeal. An excellent opportunity to acquire a well-located home with strong rental potential or a great first step onto the property ladder.
PORCH:
Smooth ceiling, electric meter and fuse board cupboard, laminate flooring.
LOUNGE / DINER:
Smooth and coved ceiling, double glazed rear aspect window, double glazed bay windows to front aspect, two radiator, fitted recessed shelving, fitted carpet.
HALL:
Smooth and coved ceiling, radiator, stairs to first floor, under stairs storage, door to garden, laminate flooring.
KITCHEN:
Smooth ceiling, double glazed side aspect window, range of wall and base mounted units with work surfaces over, integrated electric oven and gas hob with extractor over, utility area with space and plumbing for washing machine and cupboard with space for fridge freezer, vinyl flooring.
BATHROOM:
Panelled ceiling, spotlights, double glazed obscured window, radiator, WC, pedestal wash hand basin, panelled bath with shower over and screen, part tiled walls, vinyl flooring.
FIRST FLOOR LANDING:
Smooth ceiling, loft access, double glazed side aspect window, fitted carpet.
BEDROOM 1:
Smooth and coved ceiling, double glazed front aspect window, radiator, fitted carpet, door to:
EN SUITE SHOWER ROOM:
Smooth ceiling, inset spotlights, extractor fan, shower cubicle, WC, pedestal wash hand basin, ladder radiator, part tiled walls, vinyl flooring.
BEDROOM 2:
Smooth and coved ceiling, double glazed rear aspect window, radiator, fitted cupboard, fitted carpet.
BEDROOM 3:
Smooth and coved ceiling, double glazed rear aspect window, radiator, fitted carpet.
OUTSIDE:
Front - Walled forecourt. Rear - Fence enclosed garden, laid to patio, planting borders.
COUNCIL TAX
Portsmouth City Council TAX BAND B £1,782.44 for the year 2026/2027.
Read full description
Show less