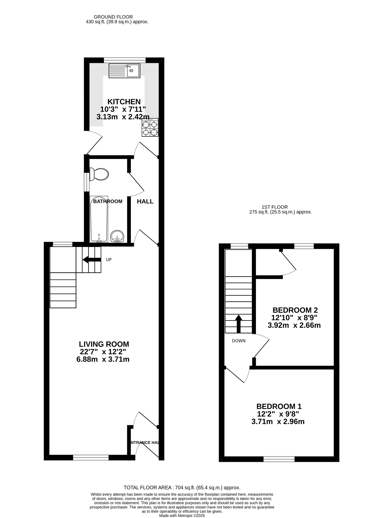
Tucked away in a peaceful setting, this two-bedroom period home offers an appealing blend of character and comfort. Set well back from the road, it enjoys a wonderfully private position with generous front and rear gardens, ideal for those who appreciate a quiet and green outlook. The ground floor features a bright, open-plan living and dining area with exposed beams and a feature brick fireplace, creating a cosy yet spacious feel. To the rear, a kitchen provides plenty of storage and workspace, with a pleasant view over the rear garden. A ground floor bathroom completes the ground floor accommodation.
Upstairs there are two well proportioned double bedrooms. Outside, the property really shines - the long front garden provides an attractive approach and a sense of seclusion, while the rear garden offers ample space for relaxing, entertaining, or family play. Offered with no forward chain, this home presents a fantastic opportunity for buyers looking for a peaceful retreat that’s still within easy reach of local amenities and transport links.
ENTRANCE PORCH
Textured ceiling, gas meter, fitted carpet and door into;
LIVING ROOM
Textured ceiling, ceiling beams, UPVC double-glazed sash window, radiators, stairs rising to first floor landing, fitted carpet and door into;
INNER HALL
Textured ceiling, fitted carpet and door into;
BATHROOM
Textured ceiling, UPVC double-glazed window, bath with shower over, tiled splash back, wash hand basin, low level W.C, storage cupboard and tiled flooring.
KITCHEN
Textured ceiling, UPVC double-glazed window, door to garden, a range of wall and base-mounted units with roll-top work surfaces over, inset sink and drainer, tiled splash back, gas cooker, space for appliances, and tiled flooring.
LANDING
Textured ceiling, stairs lowering to living room, window, fitted carpet and door into;
BEDROOM ONE
Textured ceiling, UPVC double-glazed window and fitted carpet.
BEDROOM TWO
Textured ceiling, UPVC double-glazed window, storage cupboard and fitted carpet.
OUTSIDE
Outside, the property really shines - the long front garden provides an attractive approach and a sense of seclusion, while the rear garden offers ample space for relaxing, entertaining, or family play.
COUNCIL TAX
Portsmouth City Council TAX BAND B £1,782.44 for the year 2026/2027.
Read full description
Show less