This traditional two-bedroom terraced home has been tastefully updated in recent years and is presented to a high standard throughout. The property benefits from quality finishes including replacement oak veneer cottage-style internal doors and a modern gas combi boiler installed in July 2022, with over seven years of manufacturer’s warranty remaining. The internal accommodation comprises; a dining room to the front of the property with tasteful decoration, a separate lounge to the rear and a contemporary fitted kitchen providing access to the rear garden.
Upstairs, there are two well-proportioned bedrooms, with the main bedroom benefiting from a modern en-suite shower room, in addition to a separate modern fitted bathroom suite finished with contemporary tiling and a walk-in shower. The rear garden is low maintenance and faces in a southerly direction. The property is well presented throughout and would make an excellent purchase for a first-time buyer or buy-to-let investor. An early inspection is recommended to avoid disappointment.
LOCATION
Newcome Road is located in a popular residential area less than half a mile north of Fratton train station and within easy reach of comprehensive shopping facilities along Fratton Road and London Road. Bus services pass close by, linking to all other parts of the city, and good local schooling is available in the area.
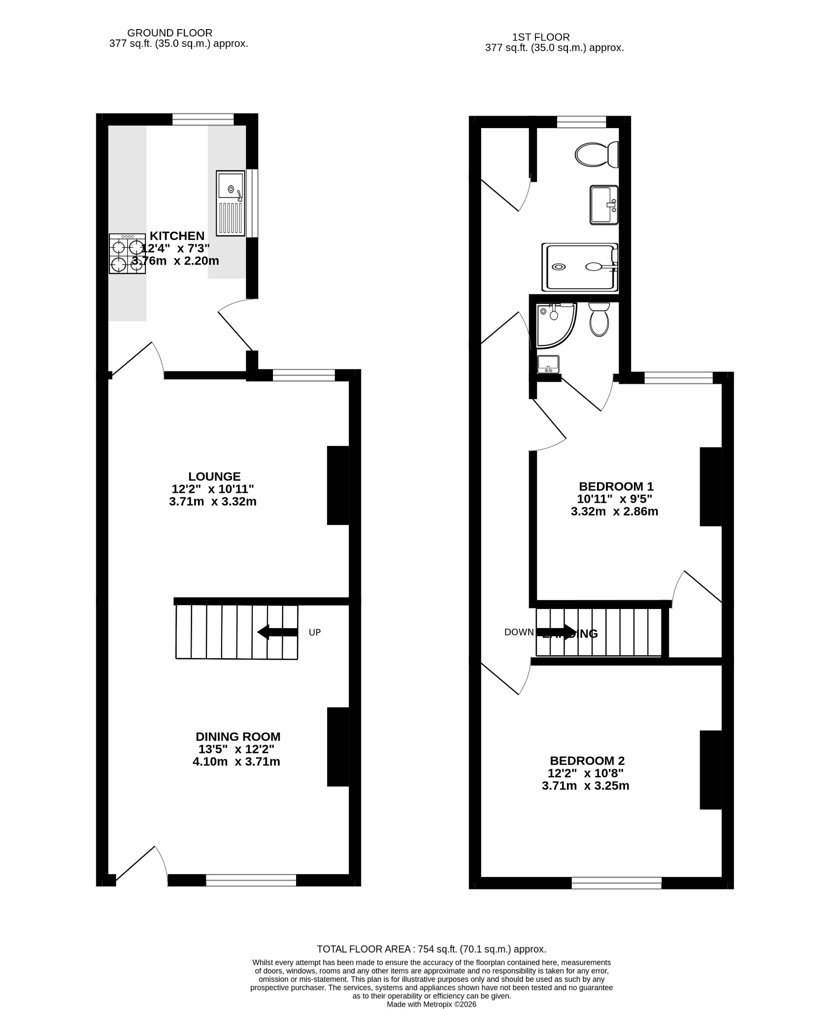
DINING ROOM
Smooth ceiling, cupboard housing meters, UPVC double-glazed window, radiator, coat and shoe storage, stairs rising to first floor landing and fitted carpet.
LOUNGE
Smooth ceiling, UPVC double-glazed window, radiator, shelving and fitted carpet.
KITCHEN
Smooth ceiling, UPVC double-glazed windows, extractor fan, a range of wall and base mounted units with roll-top work surfaces over, inset dual sink and drainer, gas hob with extractor fan over, oven, space for appliances and vinyl flooring.
LANDING
Smooth ceiling, loft hatch access, exposed floorboards and doors to:
BEDROOM ONE
Smooth ceiling, UPVC double-glazed window, built-in wardrobe, radiator, exposed floorboards and door to:
EN-SUITE
Smooth ceiling, inset spotlights, extractor fan, enclosed shower cubicle, tiled splash back, wash hand basin, low-level WC and tiled flooring.
BEDROOM TWO
Smooth ceiling, UPVC double-glazed window, radiator and exposed floor boards.
SHOWER ROOM
Smooth ceiling, inset spotlights, obscured UPVC double-glazed window, shower cubicle, tiled splash back, hand basin with storage beneath, cupboard housing boiler, low-level W.C and tiled flooring.
OUTSIDE
The rear garden is brick-wall enclosed and mostly laid to shingle, with a raised planting bed and a brick-built storage shed. The garden faces in a southerly direction.
COUNCIL TAX
Portsmouth City Council TAX BAND B £1,782.44 for the year 2026/2027.
Read full description
Show less