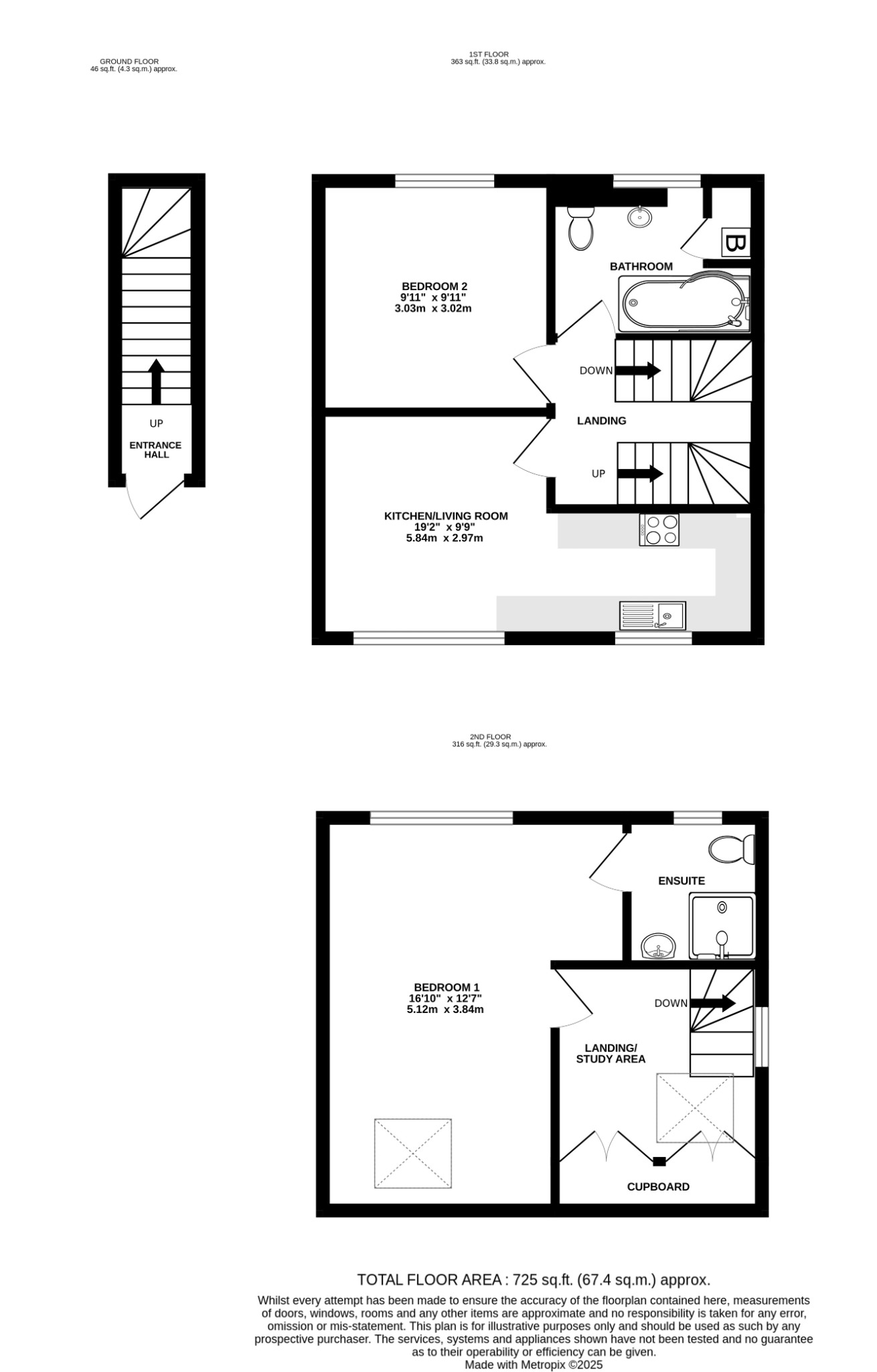
DESCRIPTION OFFERED WITH 50% OF THE FREEHOLD, this superbly presented two bedroom apartment forms part of a converted house and is located in a popular residential area to the west of Fareham town centre. The apartment, which benefits from underfloor heating, is arranged over three floors, the entrance being via the ground floor with stairs rising to the first floor landing. On the first floor, there is an open plan 19' kitchen/living room, double bedroom and a bathroom. To the second floor, there is a landing/study area and the main 16' bedroom can be found with an en-suite shower room.
Outside, the property benefits from two allocated parking spaces, both to the front of the property. Viewing is a must to appreciate the property on offer.
SECURE COMMUNAL ENTRANCE
GROUND FLOOR
ENTRANCE HALL
Front door. Smooth ceiling. Staircase rising to the first floor.
FIRST FLOOR
LANDING
Smooth ceiling. Staircase rising to the second floor. Doors to:
KITCHEN/LIVING ROOM
KITCHEN AREA
Double glazed window to the front aspect. Smooth ceiling. Matching wall and base units with contrasting worktops. Inset stainless steel sink and drainer. Four ring gas hob with extractor above. Integral oven/grill beneath. Integrated appliances include fridge/freezer and dishwasher. Space for tumble dryer. Wood effect flooring.
LIVING AREA
Double glazed window to the front aspect. Smooth ceiling. Continuation of the flooring from the living area.
BEDROOM TWO
Double glazed window to the rear aspect. Smooth ceiling with inset spotlighting. Wood effect flooring.
BATHROOM
Double glazed obscure window to the rear aspect. Smooth ceiling. Extractor fan. Suite comprising; 'P' shaped bath with hand shower and screen. Wash hand basin. Low level WC. Tiled walls. Grey wood effect flooring. Storage cupboard housing wall mounted 'Glow-Worm' boiler and space and plumbing for a washing machine.
SECOND FLOOR
LANDING/STUDY AREA
Double glazed window to the side aspect. Skylight to the front aspect. Smooth ceiling. Storage cupboards. Wood effect flooring. Door to:
BEDROOM ONE
Dual aspect with skylight to the front aspect and double glazed window to the rear aspect. Smooth ceiling. Four wall lights. Wood effect flooring.
EN-SUITE
Double glazed window to the rear aspect. Smooth ceiling. Extractor fan. Suite comprising; shower cubicle, wash hand basin and low level WC. Electric heated towel rail. Three wall lights. Tiled walls. Tile effect vinyl flooring.
OUTSIDE
The property benefits from two allocated parking spaces, both to the front of the property.
LEASE INFORMATION
Remainder of 125 year lease from 1st June 2007.
We are advised by the vendor that the cost of any maintenance to the building is shared equally between the ground and first floor apartments.
COUNCIL TAX
Fareham Borough Council. Tax Band A. Payable 2025/2026. £1,443.03.
Read full description
Show less