Situated on a popular tree-lined street, this charming two-bedroom period mid-terrace home offers well-balanced accommodation and excellent versatility. The front reception room is currently arranged as a study and/or third bedroom - perfect for those working from home or in need of flexible living space, making it an ideal purchase for first-time buyers, families, or investors alike. The property is presented in good condition throughout and retains a warm, inviting feel. The central reception room serves as a comfortable lounge, ideal for relaxing or entertaining.
To the rear, the kitchen/breakfast room is a standout feature, offering ample worktop and storage space along with a practical breakfast bar for casual dining. A ground floor bathroom completes the downstairs accommodation. Upstairs, the property comprises two generously sized double bedrooms, both offering plenty of natural light and space for furnishings. Externally, the south-facing garden is a real highlight, enjoying sunshine throughout the day. It features a patio area for outdoor seating, a small lawn, and a large storage shed - ideal for additional storage needs. Overall, this is a well-presented and versatile home in a convenient location, ready for its next owners to move straight into and enjoy.
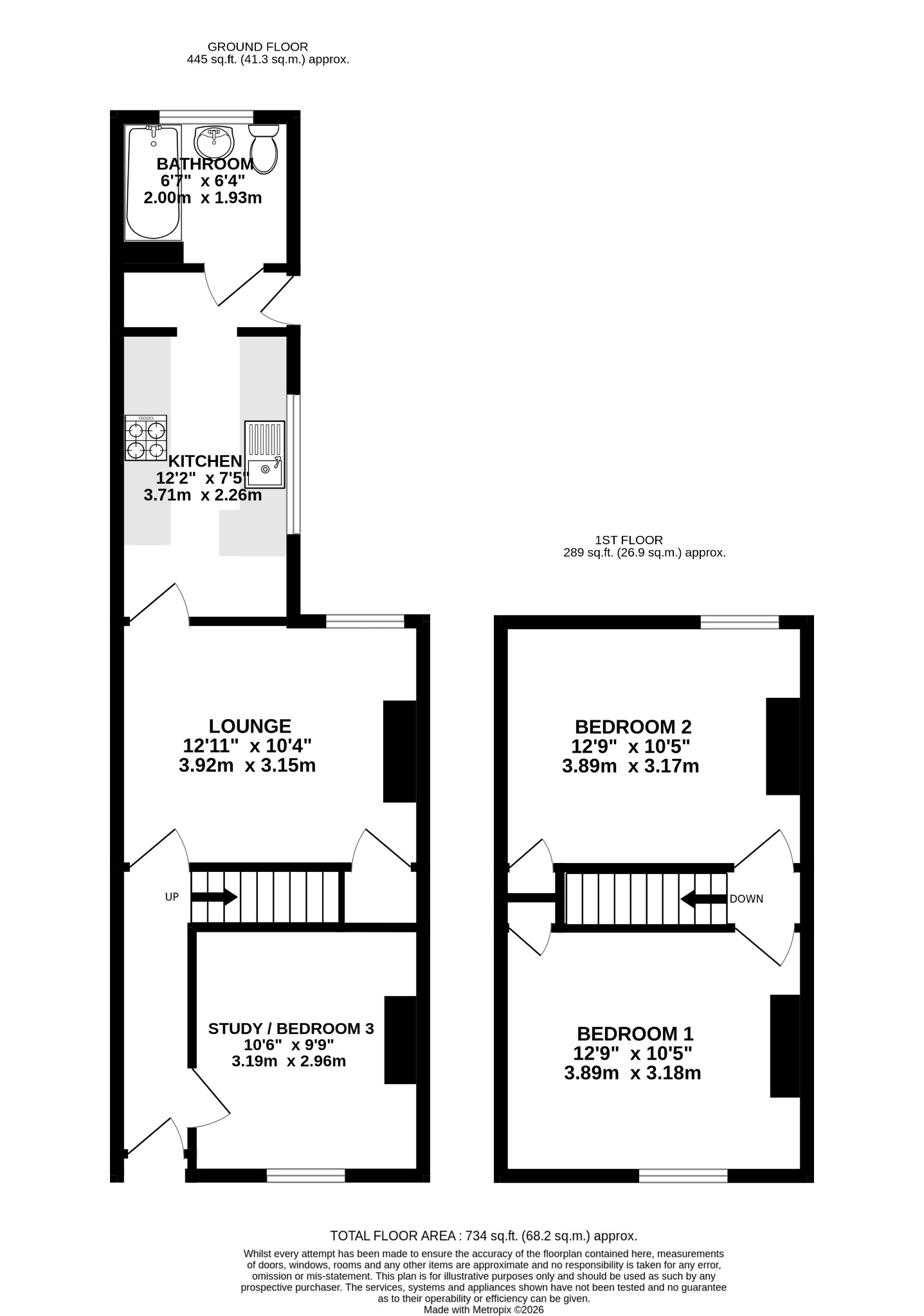
ENTRANCE HALL
Smooth ceiling, radiator, stairs to first floor, coir matting, fitted carpet.
STUDY / RECEPTION / BEDROOM 3
Smooth ceiling, double-glazed window, radiator, fitted carpet.
LOUNGE:
Textured ceiling, double glazed window, radiator, understairs storage cupboard, fitted shelving, fitted carpet.
KITCHEN/BREAKFAST ROOM
Textured ceiling, double glazed window, range of wall and base-mounted units with work surfaces over including breakfast bar, inset stainless steel sink and drainer, space for fridge freezer, cooker, dishwasher, washing machine and tumble dryer, radiator, part tiled walls, vinyl flooring.
LOBBY:
Textured ceiling, double glazed obscured door to rear garden, vinyl flooring.
BATHROOM:
Textured ceiling, double glazed obscured window, panelled bath with shower over, WC, pedestal wash hand basin, radiator, part tiled walls, vinyl flooring.
LANDING:
Small loft hatch, fitted carpet.
BEDROOM 1:
Smooth ceiling, double glazed window, radiator, shelved cupboard, fitted carpet.
BEDROOM 2:
Textured ceiling, double glazed window, radiator, shelved cupboard, fitted carpet.
OUTSIDE:
South facing, wall and fence enclosed rear garden, patio, lawn, large storage shed.
COUNCIL TAX
Portsmouth City Council TAX BAND B £1,782.44 for the year 2026/2027.
Read full description
Show less