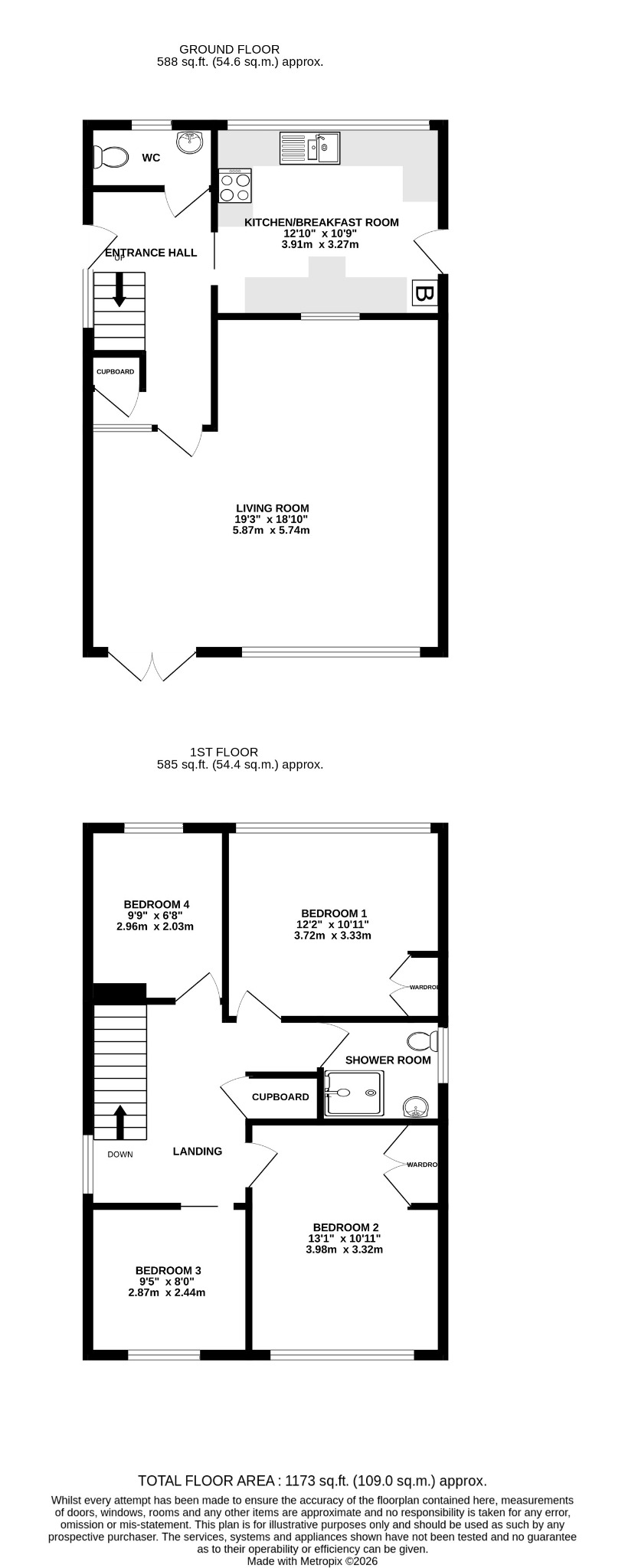
DESCRIPTION NO FORWARD CHAIN. An excellent opportunity to purchase this four bedroom detached house located in a popular residential area to the north west of Fareham town centre. The internal accommodation, which requires modernisation throughout, comprises; entrance hall, cloakroom, kitchen/breakfast room and 19' living room. To the first floor, there are four bedrooms and a shower room. Outside, there is driveway parking, a GARAGE and an enclosed rear garden. Viewing is strongly recommended by the sole agents to appreciate the location on offer.
ENTRANCE HALL
UPVC front door with a tall double glazed window to the side aspect. Staircase rising to the first floor with an understairs storage cupboard.
CLOAKROOM
Double glazed obscure window to the front aspect. Low level WC. Wash hand basin.
KITCHEN/BREAKFAST ROOM
Double glazed window to the front aspect and double glazed door to the side aspect. Matching wall and base units with contrasting worktops. Inset sink and half drainer. Tiled splashback. Fitted double over. Four ring electric hob. Integrated fridge/freezer. Space and plumbing for washing machine. Wall mounted 'Worcester' boiler. Radiator.
LIVING ROOM
Double glazed French doors leading to the rear garden (Pearsons have been advised these will be replaced in due course). Double glazed window to the rear aspect. Two radiators.
FIRST FLOOR
LANDING
Double glazed window to the side aspect. Loft access. Storage cupboard. Doors to:
BEDROOM ONE
Double glazed window to the front aspect. Built-in wardrobe. Radiator.
BEDROOM TWO
Double glazed window to the rear aspect. Built-in wardrobe. Radiator.
BEDROOM THREE
Double glazed window to the rear aspect. Radiator.
BEDROOM FOUR
Double glazed window to the front aspect. Radiator.
SHOWER ROOM
Double glazed window to the side aspect. Suite comprising; double shower cubicle, wash hand basin and low level WC. Heated towel rail. Part tiled walls.
OUTSIDE
To the front of the property, there is a laid to lawn front garden, which gives access to the GARAGE. Side gated pedestrian access leading to the rear garden. Outside tap. Laid to lawn front garden.
GARAGE: Electric roller garage door. Personal door leading to the rear garden and a double glazed window to the rear aspect.
The rear garden has a raised initial patio area with the remainder of the garden being laid to lawn. Greenhouse.
AGENT’S NOTE
A grant of probate is currently awaited and will be required prior to exchange of contracts.
COUNCIL TAX
Fareham Borough Council. Tax Band E. Payable 2026/2027. £2,775.12.
Read full description
Show less