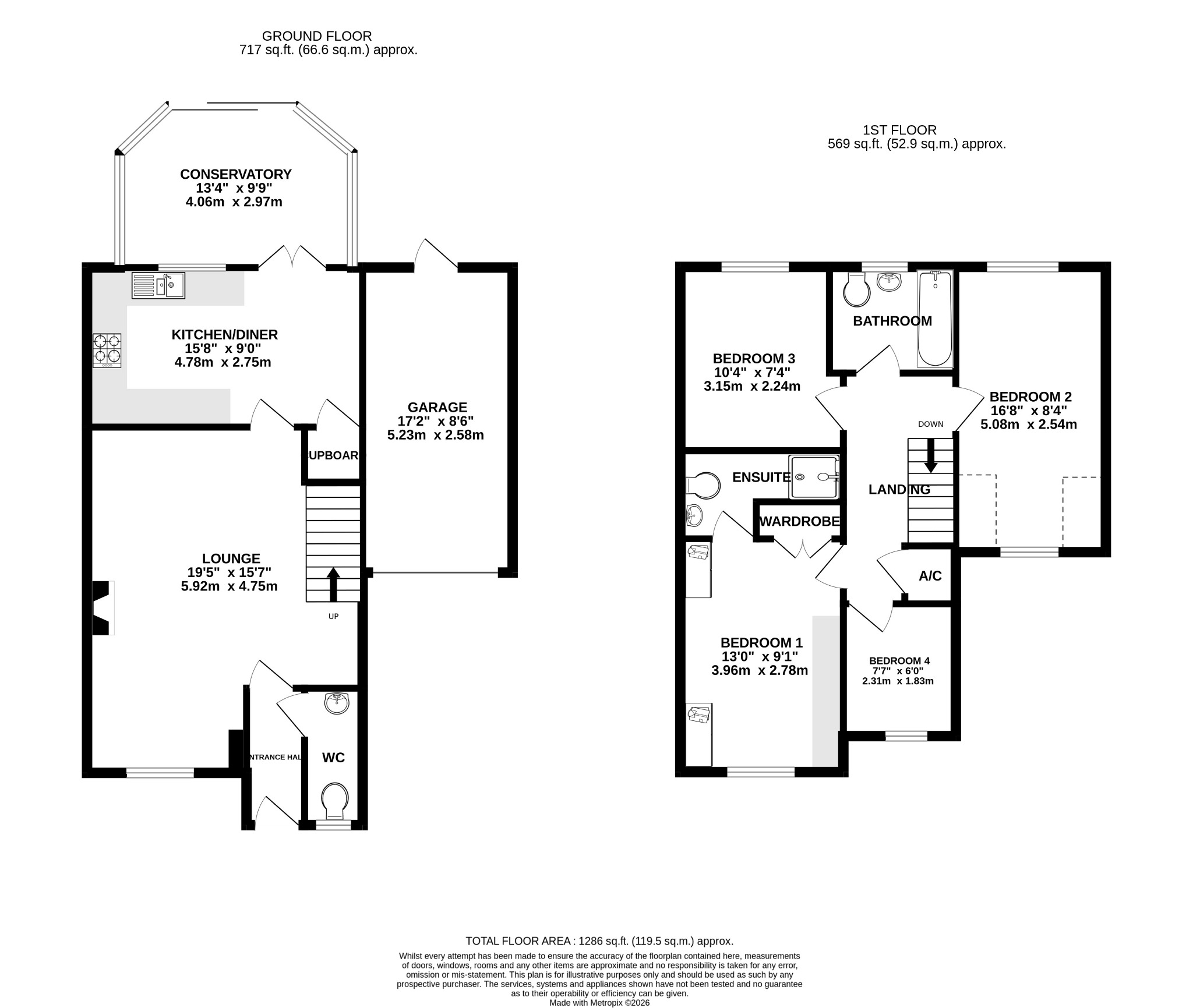
DESCRIPTION A modern four bedroom family home located within a small cul de sac in the popular area of Titchfield Common. The property's accommodation briefly comprises; entrance hall, cloakroom, a lounge, full width kitchen/diner and a double glazed conservatory. On the first floor, there are four bedrooms, an en-suite to the principal bedroom and a three piece bathroom. The property benefits from off-road parking for two vehicles to the driveway, which in turn provides access to the GARAGE and an attractive rear garden. As sole agents we would highly recommend an early inspection.
DOUBLE GLAZED DOOR TO:
ENTRANCE HALL
Radiator. Coved and skimmed ceiling. Door to:
CLOAKROOM
Double glazed window to front elevation. Low level close coupled WC. Pedestal wash hand basin with splashback tiling. Radiator. Coved and skimmed ceiling.
LOUNGE
Double glazed window to front and side elevation. Radiator. Stairs to first floor. Coved and skimmed ceiling.
KITCHEN/DINER
Double glazed window and double glazed French doors leading to conservatory. Kitchen comprising; stainless steel one and a half bowl single sink unit with cupboard under. Further range of wall and base level units with roll edge work surfaces over and splashback tiling. Built-in four ring gas hob with cooker hood over. Built-in double oven and grill. Built-in and concealed dishwasher. Plumbing for washing machine. Space for fridge/freezer. Vertical radiator. Understairs storage cupboard. Inset ceiling spotlights Coved and skimmed ceiling.
CONSERVATORY
Double glazed conservatory built on a dwarf brick wall with double glazed French doors leading to garden.
FIRST FLOOR
LANDING
Access to loft space. Airing cupboard housing hot water cylinder with shelving. Coved and skimmed ceiling. Doors to:
BEDROOM ONE
Double glazed window to front elevation. Radiator. Fitted wardrobes and bedside cabinets with over bed storage. Built-in wardrobes. Coved and skimmed ceiling. Door to:
EN-SUITE
Tiled shower cubicle with wall mounted shower unit. Low level close coupled WC. Wash hand basin with storage beneath. Heated chrome towel rail. Extractor fan. Inset ceiling spotlights.
BEDROOM TWO
Double glazed window to front and rear elevation. Radiator. Coved and skimmed ceiling.
BEDROOM THREE
Double glazed window to rear elevation. Radiator. Coved and skimmed ceiling.
BEDROOM FOUR
Double glazed window to front elevation. Radiator. Coved and skimmed ceiling.
BATHROOM
Double glazed window to rear elevation. Panel enclosed bath with shower unit over and shower screen. Low level close coupled WC. Pedestal wash hand basin. Part tiled walls. Coved and skimmed ceiling. Inset ceiling spotlights. Heated chrome towel rail.
OUTSIDE
Off-road parking is available to the driveway for two vehicles, which in turn provides access to the:
GARAGE: Accessible via up and over door. Power and light. Wall mounted gas boiler. Double glazed door to rear garden.
The rear garden has a patio area adjacent to the property. An area of artificial lawn stretches away from the patio with attractive flower and shrub borders. There is a further patio area towards the end of the garden. The garden is fence enclosed.
COUNCIL TAX
Fareham Borough Council. Tax Band D. Payable 2026/2027. £2,270.55.
Read full description
Show less