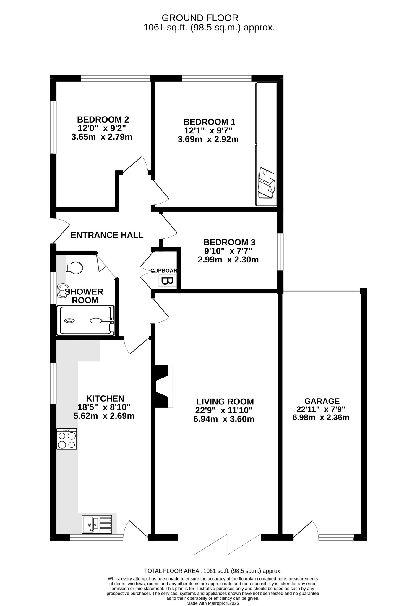
DESCRIPTION NO FORWARD CHAIN. This extended three bedroom detached bungalow is located in the ever popular Uplands development and simply must be viewed to be appreciated. The internal accommodation, which has been modernised throughout by the current owner comprises; entrance hallway, three bedrooms, modern fitted shower room, 18' modern fitted kitchen and a 22' living room with bi-folding doors onto the rear garden. Externally, the grounds have been landscaped to the front and rear of the bungalow with several ramped accesses.
There is block paved driveway parking to the front with double width access, 22' GARAGE and a most impressive private low maintenance landscaped rear garden. Viewing is highly recommended by the sole agents to appreciate the property and location on offer.
ENTRANCE HALL
Double glazed UPVC front door. Smooth ceiling. Loft access. Double storage cupboard with wall-mounted boiler. Radiator. Wood effect laminate flooring.
KITCHEN
Double glazed door leading to the rear garden. Dual aspect with double glazed windows to the rear and side aspect. Smooth ceiling. Matching wall and base units with contrasting worktops. Tiled splashback. Inset stainless steel sink and half drainer. Four ring induction hob with extractor above. Fitted oven and combination oven. Freestanding American style fridge/freezer, washing machine and slimline dishwasher are available via negotiations. Radiator. Tile effect vinyl flooring.
LIVING ROOM
Double glazed bi-folding doors leading to the rear garden. Smooth ceiling. Two wall lights. Modern electric fireplace. Two radiators. Continuation of the flooring from the entrance hall.
BEDROOM ONE
Double glazed window to the front aspect with fitted plantation shutters. Fitted wardrobes. Radiator.
BEDROOM TWO
Currently used as a dining room. Dual aspect with a double glazed window to the front aspect with fitted plantation shutters and a double glazed window to the side aspect. Radiator. Continuation of the flooring from the entrance hall.
BEDROOM THREE
Double glazed window to the side aspect. Smooth ceiling. Radiator.
SHOWER ROOM
Double glazed obscure window to the side aspect. Smooth ceiling with extractor fan. Modern suite comprising; walk-in shower with grip handles, screen and aquaboarding splashback. Concealed low level WC. Wash hand basin. Heated towel rail. Vinyl flooring.
OUTSIDE
To the front of the property, there is a double-width entrance, leading to block paved driveway parking which in turn gives access to the garage. Block paved path leading to the front door and side gated pedestrian access leading to the rear garden. Outside light.
GARAGE: Electric up and over garage door. Power and light. Double glazed window and door to the rear aspect. Personal door from the garden leading to the garage with a pedestrian ramp with a grip rail.
The private landscaped rear garden is a particular feature of this home with low maintenance in mind. An initial patio area with outside lighting and remote control electric awning. Outside tap. Steps and a pedestrian resin ramp with a rail leading to a further seating area with Indian sandstone paving. Curved block paved path and resin bonded areas centred around a feature pergola. Borders with established and maintained shrubs and trees. Garden shed.
COUNCIL TAX
Fareham Borough Council. Tax Band D. Payable 2025/2026. £2,164.55.
Read full description
Show less