DESCRIPTIONNO FORWARD CHAIN. This versatile three/four bedroom detached house is located in a small and select development in a popular cul-de-sac to the west of Fareham town centre. The property has recently been redecorated throughout and has the benefit of underfloor heating to the ground floor. The accommodation comprises; entrance hallway, cloakroom, 17' lounge, dining room, kitchen/breakfast room, utility and a study/bedroom four. To the first floor, there are three bedrooms, a family bathroom and the main bedroom benefits from a dressing area and an en-suite shower room.
Outside, there is a GARAGE measuring 19'5 by 8'10 with parking in front and a sizeable well-maintained rear garden. Viewing is essential to appreciate the property on offer.
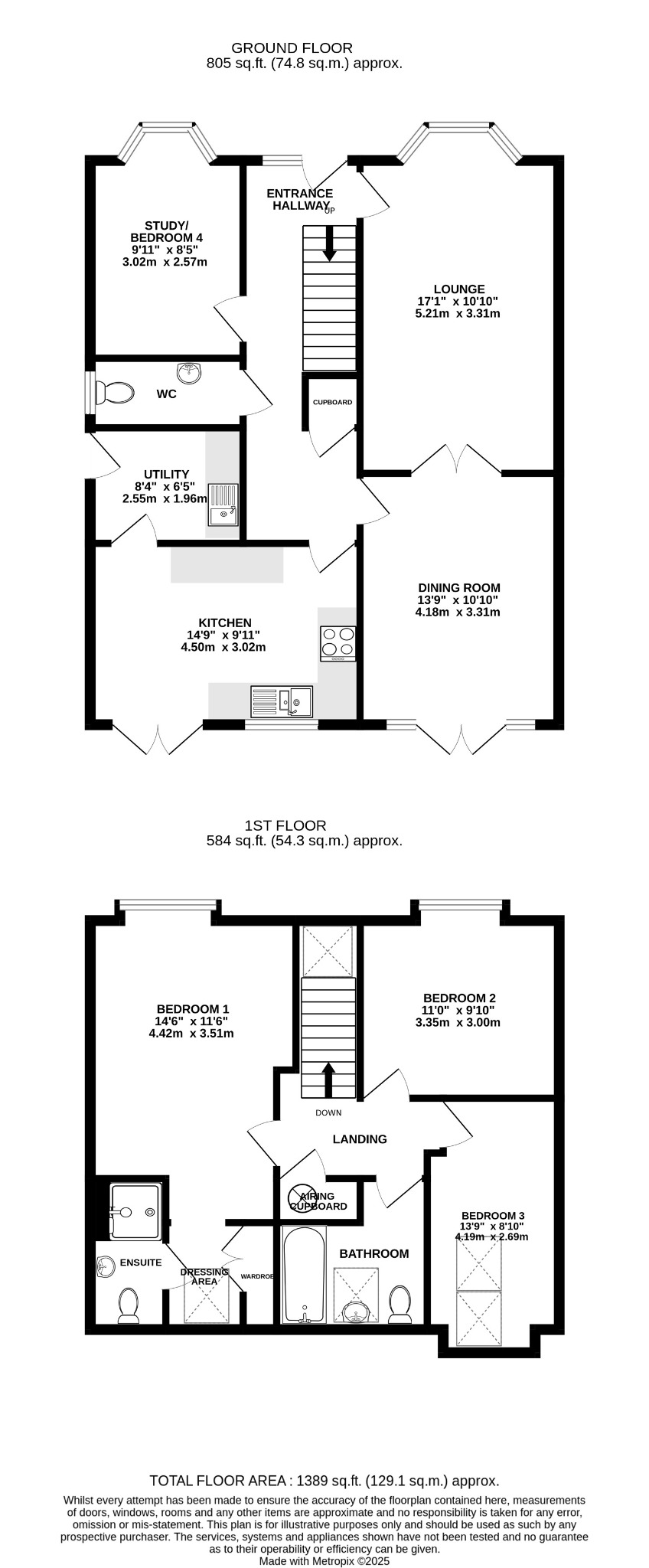
ENTRANCE HALL
Double glazed UPVC front door. Double glazed obscure window to the front aspect. Smooth and coved ceiling. Staircase rising to the first floor. Storage cupboard.
CLOAKROOM
Double glazed obscure window to the side aspect. Smooth and coved ceiling. Low level WC. Wash hand basin. Part tiled walls. Tiled flooring.
LOUNGE
Double glazed bay window to the front aspect. Smooth and coved ceiling. Three wall lights.
DINING ROOM
Double glazed French doors leading to the rear garden and two double glazed windows to the rear aspect. Three wall lights.
KITCHEN
Double glazed French doors to the rear garden. Smooth and coved ceiling with inset spotlighting. Matching wall and base units with contrasting work tops. Inset stainless steel sink and half drainer. Tiled splashback. Four ring gas hob with extractor above. Space for fridge/freezer. Integrated oven/grill and dishwasher. Tiled flooring.
UTILITY
Double glazed UPVC door to the side aspect. Smooth and coved ceiling. Low level units with contrasting work tops. Inset stainless steel sink and drainer. Tiled splash back. Space and plumbing for washing machine. Tiled flooring.
STUDY/BEDROOM FOUR
Double glazed bay window to the front aspect. Smooth and coved ceiling.
FIRST FLOOR
LANDING
Smooth and coved ceiling with loft access. Skylight to the front aspect. Airing cupboard with Glow-worm unvented water cylinder.
BEDROOM ONE
Double glazed window to the front aspect. Smooth and coved ceiling. Radiator.
DRESSING AREA
Skylight to the rear aspect with smooth ceiling. Built-in wardrobe. Radiator.
EN-SUITE
Smooth and coved ceiling with extractor fan. Suite comprising shower cubicle, wash hand basin and low level WC. Chrome heated towel rail. Part tiled walls. Tiled flooring.
BEDROOM TWO
Double glazed window to the front aspect. Smooth and coved ceiling. Radiator.
BEDROOM THREE
Two skylights to the rear aspect. Smooth and coved ceiling. Radiator.
BATHROOM
Skylight to the rear aspect. Smooth and coved ceiling with extractor fan. Suite comprising bath with hand shower, wash hand basin and low level WC. Electric heated towel rail. Part tiled walls. Tiled flooring.
OUTSIDE
To the front of the property, there is block paved parking in front of the GARAGE (left hand side as you look at the pair of garages), path leading to the front door and side gated pedestrian access.
GARAGE measuring 19'5 x 8'10. Electric roller garage door. Double glazed door to the side aspect. Power and light.
The rear garden is a particular feature of this home and is mainly laid to lawn with well-maintained borders and a shingled area to the bottom corner of the garden. The path continues along the side aspect where there is a timber garden shed and gated access leading to the front. Outside tap.
AGENT'S NOTE
There is an estate charge payable of approximately £50 per year.
COUNCIL TAX
Fareham Borough Council. Tax Band E. Payable 2025/2026. £2,645.56
Read full description
Show less