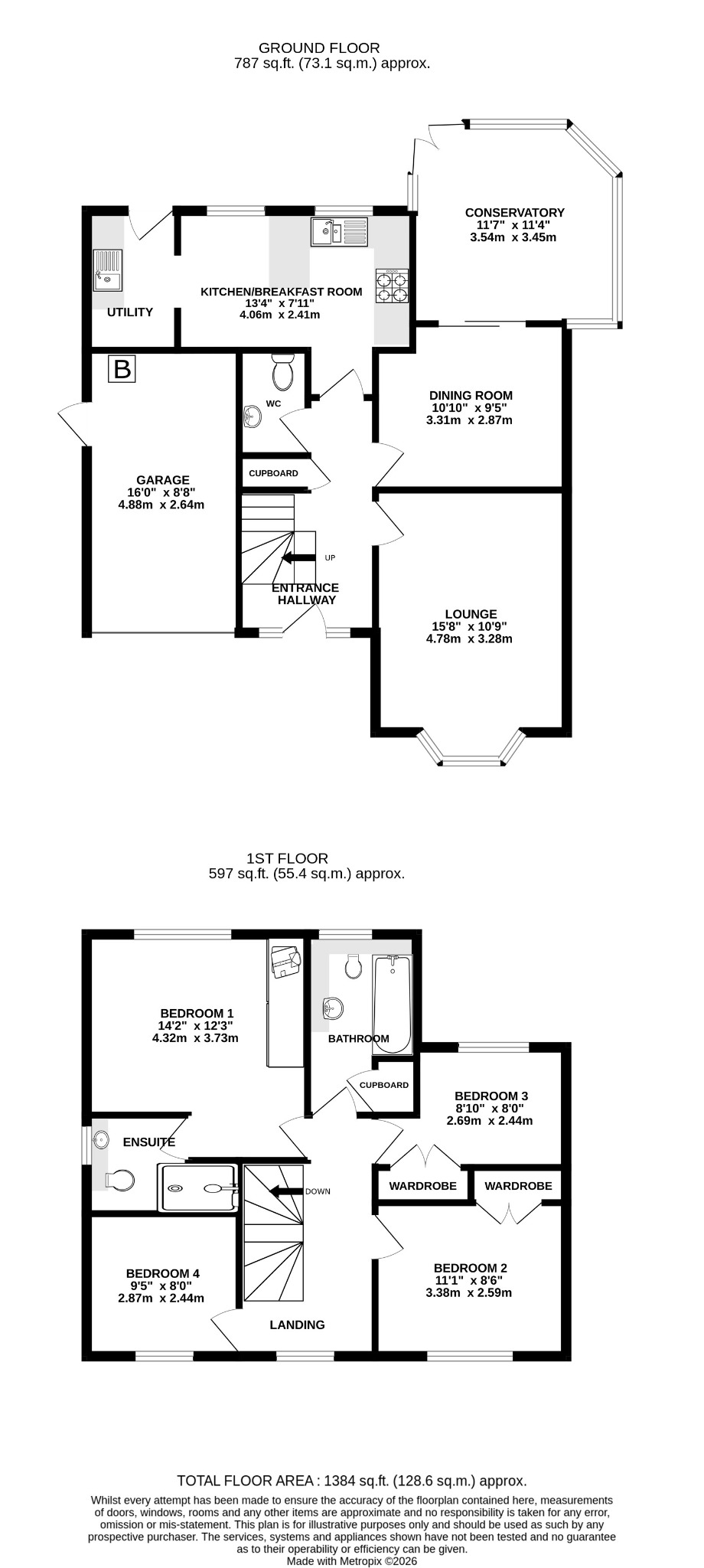
DESCRIPTION This four bedroom modern detached house is positioned in a cul de sac within a highly regarded development close to Cams Hill Secondary School and within walking distance of the Fareham/Portchester shoreline. The well-presented internal accommodation comprises; entrance hallway, cloakroom, kitchen/breakfast room, utility, lounge with a bay window, dining room and a conservatory with a double glazed roof and French doors onto the rear garden. To the first floor, there are four bedrooms, family bathroom and a modern fitted en-suite shower room to the main bedroom.
Outside, there is driveway parking, integral GARAGE and a well-maintained rear garden. Viewing is highly recommended by the sole agents to appreciate the location on offer.
ENTRANCE HALL
Double glazed front door with twin double glazed windows either side. Staircase rising to the first floor with understairs storage cupboard. Radiator.
CLOAKROOM
Low level WC. Wash hand basin. Radiator.
KITCHEN/BREAKFAST ROOM
Twin double glazed windows overlooking the rear garden. Matching wall and base units with contrasting worktops. Inset sink and half drainer. Glass splashback. Four ring gas hob. 'Bosch' oven/grill. Space for fridge. Radiator. Opening to:
UTILITY
Double glazed door leading to the rear garden. Low level units with inset stainless steel sink and drainer with contrasting worktops. Tiled splashback. Space for fridge/freezer, washing machine and tumble dryer. Radiator.
LOUNGE
Double glazed bow window to front aspect. Two radiators.
DINING ROOM
Double glazed patio doors leading to the conservatory. Radiator.
CONSERVATORY
Double glazed French doors leading to the garden. Double glazed roof. Dual aspect with double glazed windows to the rear, side and front aspect. Wall light.
FIRST FLOOR
LANDING
Double glazed window to the front aspect. Loft access with a pull-down ladder. Radiator. Doors to:
BEDROOM ONE
Double glazed window to the rear aspect. Range of fitted wardrobes. Radiator.
EN-SUITE
Double glazed window to the side aspect. Extractor fan. Modern suite comprising; large walk-in shower cubicle. Wash hand basin and concealed low level WC within vanity unit. Heated towel rail. Part tiled walls.
BEDROOM TWO
Double glazed window to the front aspect. Built-in double wardrobe. Radiator.
BEDROOM THREE
Double glazed window to the rear aspect. Built-in double wardrobe. Radiator.
BEDROOM FOUR
Double glazed window to the front aspect. Radiator.
BATHROOM
Double glazed window to the rear aspect. Extractor fan. Suite comprising; bath, wash hand basin and concealed low level WC within vanity unit. Part tiled walls. Radiator. Storage cupboard.
OUTSIDE
To the front of the property, there is tarmac driveway parking. Open covered porch with an outside light. Laid to lawn front garden. Side gated pedestrian access leading to the rear garden.
GARAGE: Electric roller garage door. Personal door. Power and light. Wall mounted 'Glow-worm' combination boiler.
The well-maintained rear garden has an initial patio area with an outside tap and light with the remainder of the garden being laid to lawn with shrubs, borders and trees.
COUNCIL TAX
Fareham Borough Council. Tax Band F. Payable 2025/2026. £3,126.58.
Read full description
Show less