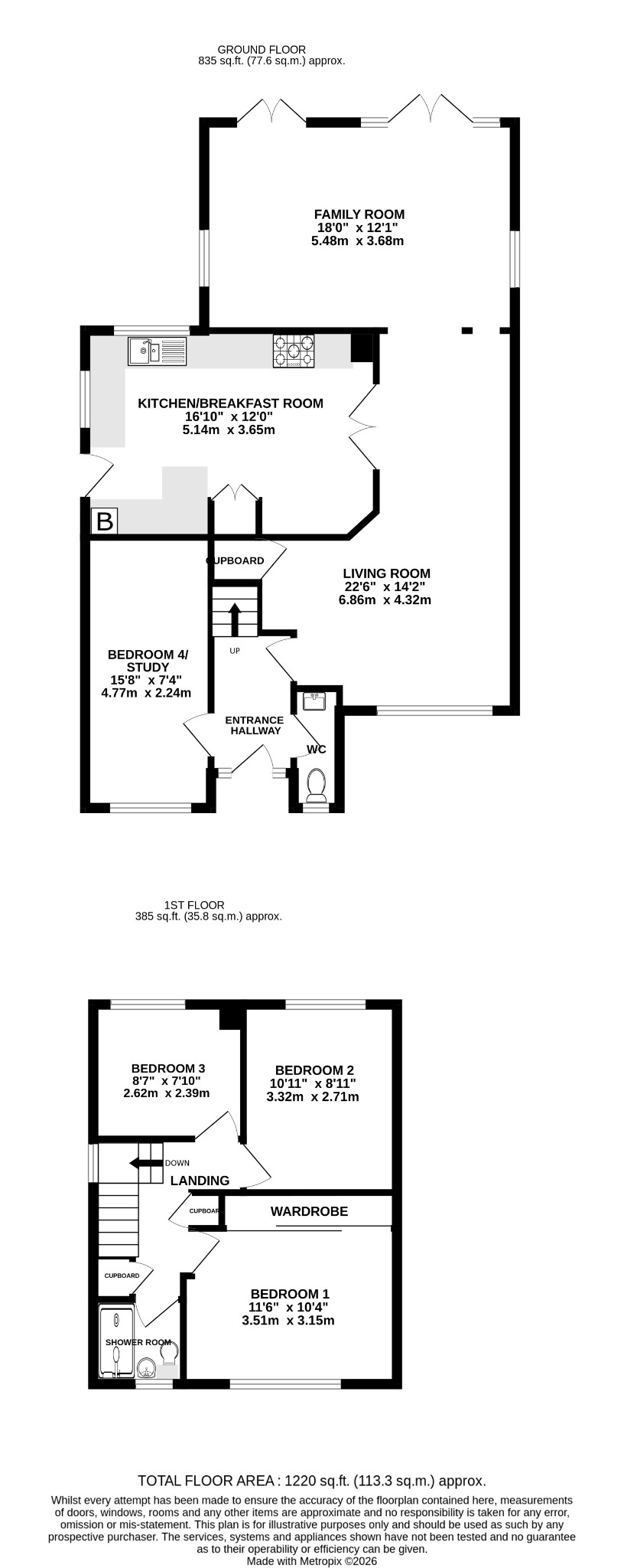
DESCRIPTION This extended and versatile three/four bedroom detached house is positioned within a highly regarded cul de sac in Catisfield, Fareham. The well-presented internal accommodation comprises; entrance hallway, cloakroom, 15' study/bedroom four, 22' living room, modern fitted kitchen/breakfast room and a family room with twin French doors onto the rear garden. To the first floor, there are three bedrooms and a modern fitted shower room. Externally, there is block paved driveway parking to the front and an enclosed well-maintained rear garden. Viewing is strongly recommended by the sole agents.
ENTRANCE HALL
Double glazed composite front door. Double glazed windows either side and above. Smooth and coved ceiling. Staircase rising to the first floor. Radiator. Wooden flooring.
CLOAKROOM
Double glazed window to the front aspect. Smooth and coved ceiling with inset spotlighting. Low level WC. Wash hand basin. Radiator. Tiled flooring.
BEDROOM FOUR/STUDY
Double glazed window to the front aspect. Smooth and coved ceiling. Radiator.
LIVING ROOM
Double glazed window to the front aspect. Opening to the family room. Smooth and coved ceiling. Two radiators. Understairs storage cupboard. Continuation of the flooring from the entrance hallway.
KITCHEN/BREAKFAST ROOM
Double glazed window to the rear aspect. Double glazed door to the side aspect. Smooth and coved ceiling with inset spotlighting. Matching wall and base units with contrasting worktops. Inset sink and half drainer. Tiled splashback. Five ring gas hob with extractor above. Fitted double oven. Space for fridge/freezer. Understairs cupboard with space and plumbing for washing machine. Integral dishwasher. Wall mounted 'Worcester' boiler. Breakfast bar. Wood effect flooring.
FAMILY ROOM
Two double glazed French doors leading to the rear garden and double glazed windows to both sides of the room. Two radiators. Laminate flooring.
FIRST FLOOR
LANDING
Double glazed window to the side aspect. Smooth ceiling. Loft access. Storage cupboard. Doors to:
BEDROOM ONE
Double glazed window to the front aspect. Fitted wardrobes with sliding doors. Radiator.
BEDROOM TWO
Double glazed window to the rear aspect. Radiator.
BEDROOM THREE
Double glazed window to the rear aspect. Smooth and coved ceiling. Radiator.
SHOWER ROOM
Double glazed window to the front aspect. Smooth ceiling with inset spotlighting. Extractor fan. Modern suite comprising; large walk-in shower area with a glass screen and aqua boarding splashback. Vanity unit with wash hand basin and concealed low level WC. Heated towel rail. Part tiled walls. Tiled flooring.
OUTSIDE
To the front of the property, there is ample block paved driveway parking. A laid to lawn front garden and side gated pedestrian access leading to the rear garden.
The rear garden has an initial decked area with outside light, power and tap. Side gated pedestrian access leading to the front of the property. The majority of the garden being laid to lawn with mature trees and two timber garden sheds.
COUNCIL TAX
Fareham Borough Council. Tax Band E. Payable 2026/2027. £2,775.12.
Read full description
Show less