cobden street, gosport

2 bedrooms | £205,000 | Freehold

Call the Fareham office

01329 288241

Request Viewing Save Print
DESCRIPTION
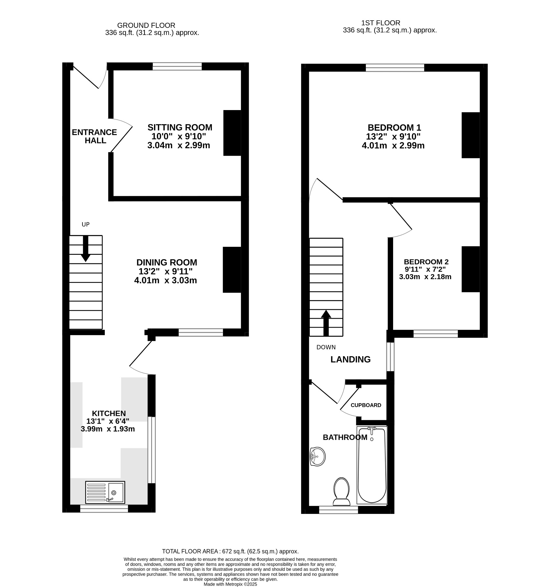
NO FORWARD CHAIN. An older style two bedroom house which has been substantially extended with a two storey extension to the rear and is located within a popular and convenient area of Gosport. The property is IDEAL FOR FIRST TIME BUYERS OR INVESTORS ALIKE. The well-presented internal accommodation comprises; entrance hall, sitting room, dining room, 13' kitchen and to the first floor, there are two bedrooms and a bathroom. Outside, there is an enclosed rear garden. Viewing is highly recommended by the sole agents to appreciate the property on offer.
Read full description

Council Tax Band: B

VIEW ON GOOGLE MAP Floorplan

Properties of interest

consort mews, knowle village

2 bedrooms | £225,000

gosport road, fareham

2 bedrooms | £220,000

Register with us, we’ll help make sure you don’t miss your dream home.

Save searches and properties, make notes, set up automatic email alerts for new properties.

Register Now

Hi Noah, I just wanted to say a big thank you for all your support over the last few months and in particular helping to get the whole chain - both sales and purchases over the line last week. From the very start you were so professional, offering a service that recognised the importance of selling a home to the right buyer in the right way, which made the whole process pretty stress free, which given the 6 week delivery was quite an achievement!!! …and to boot we are now friends with our buyers too. Thanks again - can’t recommend you and Pearson’s enough :) ... Best regards Sarah
Sarah

WHY CHOOSE PEARSONS?

Our Offices


View Office Map

Service | Marketing | Experience

Terms & Conditions | Privacy Policy | Client Money Protection Certificate | Click here for a full list of our lettings fees | Complaints Procedures | Site Map | Website by fruitful

©2025 Pearsons | Pearsons Southern Limited is registered in England and Wales. Registered office: Kintyre House, 70 High Street, Fareham, Hants PO16 7BB. Company No. 01517996