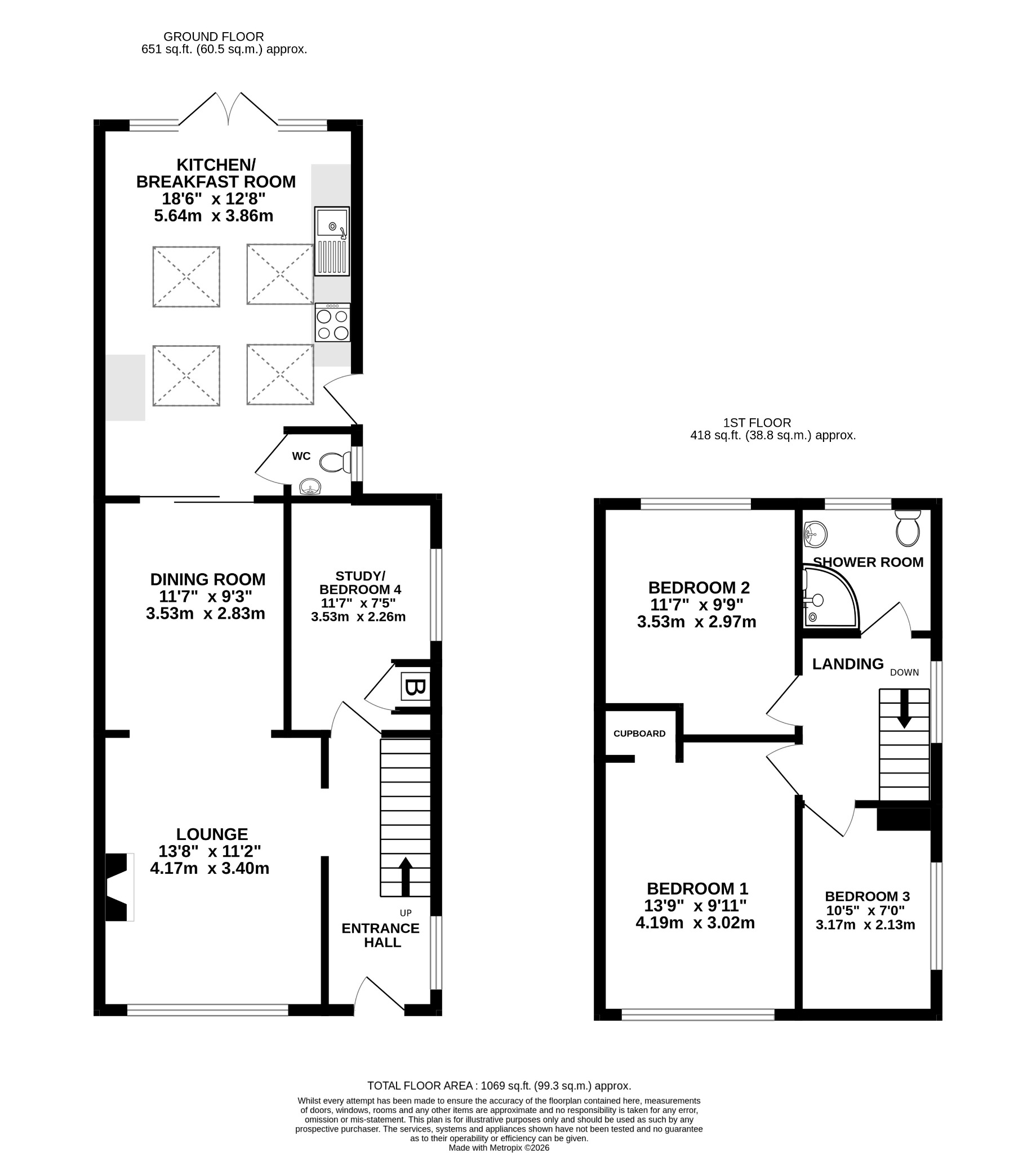
DESCRIPTIONThis extended three/four bedroom semi-detached house is located in the highly regarded and ever popular Uplands development to the north of Fareham town centre. The well-presented internal accommodation comprises; entrance hall, study/bedroom four, lounge, dining room, cloakroom and a most impressive 18' kitchen/breakfast room with a vaulted ceiling. To the first floor, there is a shower room and three bedrooms. Outside, there is ample driveway parking, GARAGE and a landscaped, enclosed rear garden. Viewing is a must to appreciate the location on offer.
ENTRANCE HALLDouble glazed UPVC front door.
Double glazed window to the side aspect. Smooth and coved ceiling. Staircase rising to the first floor. Radiator. Wood effect laminate flooring.
STUDY/BEDROOM FOUR
Double glazed window to the side aspect. Smooth ceiling. Cupboard housing wall mounted 'Worcester' boiler. Wood effect laminate flooring.
LOUNGE
Double glazed window to the front aspect. Smooth and coved ceiling. Column style radiator. Wood effect laminate flooring. Opening to:
DINING ROOM
Smooth and coved ceiling. Radiator. Continuation of the flooring from the lounge. Patio doors leading to the kitchen/breakfast room.
KITCHEN/BREAKFAST ROOM
Double glazed French doors leading to the rear garden. Double glazed door to the side aspect. Twin double glazed windows to the rear aspect. Vaulted smooth ceiling with four 'Velux' skylights and inset spotlighting and beams. Matching wall and base units with contrasting work tops. Four ring gas 'Smeg' hob with extractor above. Inset sink and drainer. Additional units with a fitted oven. Space for two fridge/freezers and washing machine. Two modern vertical radiators.
CLOAKROOM
Double glazed window to the side aspect. Smooth ceiling with inset spotlighting. Extractor fan. Low level WC. Wash hand basin. Heated towel rail. Continuation of the flooring from the kitchen/breakfast room.
FIRST FLOOR
LANDING
Double glazed window to the side aspect. Smooth ceiling. Loft access. Doors to:
BEDROOM ONE
Double glazed window to the front aspect. Smooth ceiling. Radiator. Storage cupboard.
BEDROOM TWO
Double glazed window to the rear aspect. Smooth ceiling. Radiator.
BEDROOM THREE
Double glazed window to the side aspect. Smooth ceiling. Radiator.
SHOWER ROOM
Double glazed window to the rear aspect. Smooth ceiling. Suite comprising shower cubicle. Concealed low level WC. Wash hand basin. Heated towel rail. Part tiled walls. Tile effect vinyl flooring.
OUTSIDE
To the front of the property, there is block paved driveway parking and an additional shingled parking area. Outside power. Side gated pedestrian access leading to the rear garden.
GARAGE. Up and over garage door. Personal door leading to the rear garden. Power and light.
The enclosed landscaped rear garden has a large Indian sandstone patio and an additional shingled area. Outside tap and lighting.
COUNCIL TAX
Fareham Borough Council. Tax Band D. Payable 2025/2026. £2,164.55.
Read full description
Show less