DRAFT DETAILS AWAITING VENDOR APPROVAL
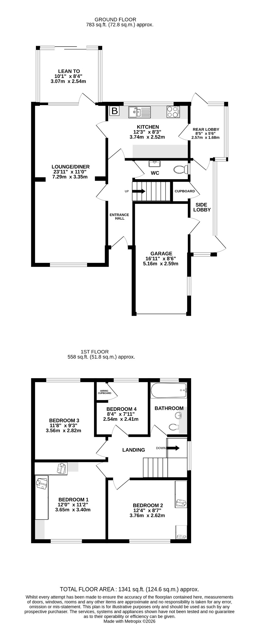
DESCRIPTION An excellent and rare opportunity has arisen to purchase this four bedroom semi-detached house located in a cul de sac within the highly regarded and ever popular Uplands Development. The property offers excellent potential to alter and extend (subject to the necessary permissions being granted). The well-presented and much improved internal accommodation comprises; entrance hallway, cloakroom, 23' lounge/diner, lean-to, modern fitted kitchen and rear and side lobby's. To the first floor, there are four bedrooms and a modern fitted family bathroom.
Outside, there is driveway parking, part integral single GARAGE and a sizeable well-maintained rear garden. Viewing is a must to appreciate the location on offer.
ENTRANCE HALL
Double glazed obscure composite front door. Staircase rising to the first floor. Radiator.
CLOAKROOM
Obscure window to the side aspect. Low level WC. Wash hand basin. Heated towel rail. Vinyl flooring.
KITCHEN
Double glazed window overlooking the rear garden. Inset spotlighting. Wall mounted 'Worcester' boiler (fitted July 2024). Matching wall and base units with display cabinets and contrasting worktops. Inset stainless steel sink and half drainer. Four ring induction hob. Integral oven/grill and slimline dishwasher. Tile effect vinyl flooring.
REAR LOBBY
Double glazed UPVC door leading to the rear garden. Double glazed window to the rear and side aspect. Space for fridge/freezer. Tiled effect vinyl flooring.
SIDE LOBBY
Double glazed door to the front aspect. Personal door to the garage. Understairs storage cupboard with space and plumbing for washing machine.
LOUNGE/DINER
Double glazed window to the front aspect. Window to the rear aspect and door to the lean-to. Two radiators.
LEAN-TO
Glazed lean-to with windows and doors to rear garden.
FIRST FLOOR
LANDING
Double glazed window to the side aspect. Loft access. Doors to:
BEDROOM ONE
Double glazed window to the front aspect. Range of fitted wardrobes. Dressing table and chest of drawers. Radiator.
BEDROOM TWO
Double glazed window to the front aspect. Fitted wardrobes. Radiator.
BEDROOM THREE
Double glazed window to the rear aspect. Radiator.
BEDROOM FOUR
Double glazed window to the rear aspect. Airing cupboard. Radiator.
BATHROOM
Double glazed window to the rear aspect. Inset spotlighting. Extractor fan. Suite comprising; bath with a digital shower and screen. Vanity unit with wash hand basin and concealed low level WC. Heated towel rail. Part tiled walls. Wood effect vinyl flooring.
OUTSIDE
To the front of the property, there is driveway parking, a laid to lawn front garden and side gated pedestrian access leading to the side lobby and rear garden.
GARAGE: Up and over garage door. Double glazed window to the side aspect. Power and light. Personal door to the side lobby.
The rear garden is a particular feature of this home with an initial patio area and outside tap. The garden is predominantly laid to lawn with well-maintained and stocked shrubs, borders and trees. Potting shed. Additional timber garden shed and vegetable patch.
COUNCIL TAX
Fareham Borough Council. Tax Band C. Payable 2026/2027. £2,270.55.
Read full description
Show less