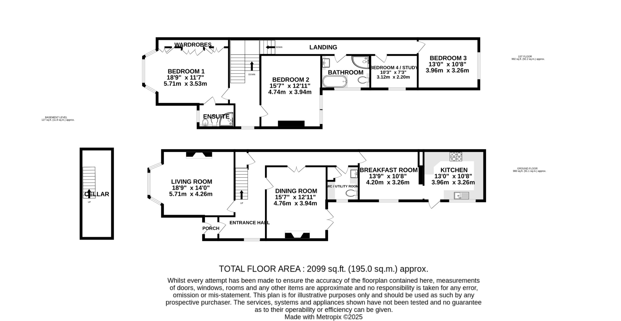
Set in a popular Southsea location, this beautifully presented four-bedroom semi-detached home offers generous living space, striking interior design, and superb family accommodation throughout. With a private driveway providing off-road parking, this property blends practical convenience with distinctive style. Step inside to discover three versatile reception rooms: a welcoming bay-fronted lounge filled with natural light, a formal dining room ideal for entertaining, and a charming breakfast room that flows toward the fitted kitchen, which provides a functional and well-planned space for everyday cooking.
On the first floor, the property offers four well-proportioned bedrooms, including a master bedroom with its own en-suite shower room. A spacious four-piece family bathroom completes the upper level, offering modern comfort for a growing household. Throughout the home, you’ll find tasteful décor, designer wallpapers, and bold colour schemes, creating a contemporary and characterful aesthetic ready to enjoy from day one. The rear garden faces in a westerly direction and is landscaped with areas of patio, decking and artificial lawn making for a peaceful, low maintenance space, ideal for entertaining. A home security and fire detection system has been installed at the property providing peace of mind. For those looking for more space, planning permission has been granted to extend and alter the ground floor, to provide a more open plan kitchen / dining living space, plus a garden room. The planning also includes conversion of the loft into two additional bedrooms and alterations on the first floor to create a guest suite. Full plans can be found on Portsmouth City Councils website Ref: 22/00231/HOU.
Enter via composite front door to:
PORCH
Glazed panel to front, tiled floor, coat hooks and internal door with obscure glass panel and side windows to;
ENTRANCE HALL
Smooth ceiling, double sash window to side aspect, radiator, stairs rising to first floor landing with carpet runner and stair rods, dado rails, column radiator, LVT flooring, door leading down to;
CELLAR
Undecorated cellar suitable for storage.
LIVING ROOM
Smooth ceiling, picture rails, dado rails, tall column radiator, double glazed bay window to front, gas fire with decorative surround and stone mantle, LVT flooring.
DINING ROOM
Smooth ceiling, picture rails, double doors onto rear garden, side sash window, decorative cast iron fireplace with wooden surround, radiator, double doors through to hallway, LVT flooring.
WC/UTILITY
Smooth ceiling, inset spotlights, extractor fan, part obscured sash window, low level WC, wash hand basin set in work surface with cupboards beneath, a range of fitted cupboards with space and plumbing for washing machine, cupboard housing wall mounted gas Valiant combination boiler, part tiled walls, decorative laminate flooring.
BREAKFAST ROOM
Smooth and coved ceiling, sash window to side, decorative cast iron fireplace with wooden surround, fitted sideboard unit, radiator, recessed storage cupboard, decorative laminate flooring.
KITCHEN
Smooth ceiling with inset spotlights, door to rear garden, double glazed window to side aspect, a range of wall and base mounted units with roll top work surfaces over with inset sink and drainer with mixer tap over, integrated double electric oven and microwave, integrated induction hob and extractor fan over, space for fridge freezer, space and plumbing for dishwasher, splashback, decorative laminate flooring.
FIRST FLOOR LANDING
Smooth ceiling, Velux window, double glazed sash window to side aspect, radiator, fitted carpet, loft hatch access.
BEDROOM 1
Smooth ceiling, double glazed bay window to front, a range of fitted bedroom wardrobes, tall column radiator,
fitted carpet.
EN-SUITE SHOWER ROOM
Smooth ceiling, double glazed obscure window, corner shower cubicle, low level WC and wash hand basin set in vanity unit, tall ladder radiator, decorative tiled flooring, part tiled walls.
BEDROOM 2
Smooth ceiling, picture rails, two sash windows to rear aspect, radiator, fitted carpet.
BATHROOM
Smooth ceiling, double glazed obscured side aspect window, extractor fan, large corner shower with rainfall attachment, panel bath with mixer tap and shower attachment, low level WC set in vanity unit with cupboards above, wash hand basin with fitted cupboards beneath, ladder radiator, part tiled walls, tiled floor.
BEDROOM 3
Smooth ceiling, double glazed rear aspect window, radiator, laminate flooring.
BEDROOM 4 / STUDY
Smooth ceiling, double glazed side aspect window, radiator, laminate flooring.
OUTSIDE
Part wall enclosed frontage with driveway providing off road parking, artificial lawn, planters, gated side pedestrian access. Wall and fence enclosed rear garden with a sizeable area of decking in the side return, an area of patio and a rear artifical lawned area with raised planters, rear patio, garden store.
COUNCIL TAX
Portsmouth City Council TAX BAND E £2,665.57 for the year 2025/2026.
Read full description
Show less