Situated on a sought-after residential avenue set just back from Eastern Parade and the seafront, this attractive four-bedroom semi-detached home offers generous, versatile accommodation arranged over three floors, ideal for families and those seeking space close to the seafront. The ground floor is welcoming and well-balanced, featuring two generous reception rooms, both ideal for relaxing or entertaining, alongside a long kitchen/breakfast room with a fully fitted kitchen of gentle luxury, that provides ample space for everyday dining.
A separate utility room adds practicality, while a convenient downstairs shower room enhances the home’s flexibility for guests or busy family life. On the first floor are two well-proportioned double bedrooms, both enjoying attractive bay windows. The rear double benefits from an en-suite shower room and offers pleasant sea views between neighbouring houses. A further single bedroom and a family bathroom complete this level. The top floor hosts a spacious fourth bedroom, currently arranged as a bar, lounge and work room, and could be ideal as a principal suite, guest room or home office, complemented by a separate WC. Externally, the property enjoys a south-facing, low-maintenance rear garden, perfect for outdoor dining and relaxation. There is also the added benefit of a single garage. The home is generally well presented throughout with opportunity for a buyer to modernise and personalise to their own taste. Located within easy reach of Southsea seafront this is a substantial and appealing property in a highly regarded location.
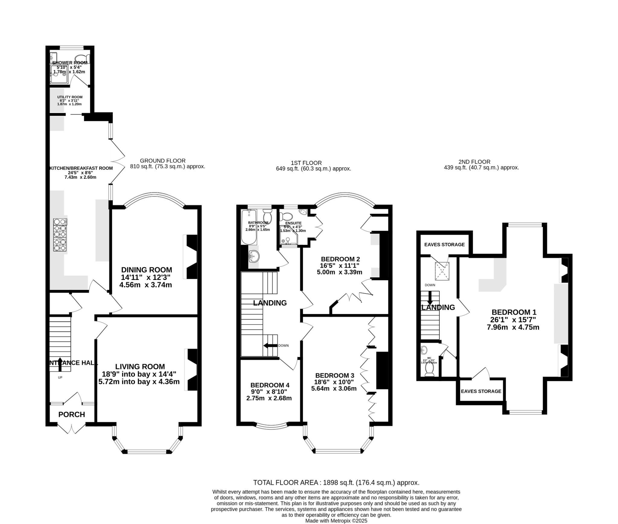
PORCH:
Front door and side window panels to:
ENTRANCE HALL:
Smooth ceiling, ornate cornicing, radiator, stairs to first floor with carpet runner and stairs rods, understairs storage cupboards, radiator, engineered wood flooring.
LIVING ROOM:
Textured ceiling, ornate cornicing, double glazed wide bay window with fitted shutters, fire place with surround, radiator, fitted carpet.
DINING ROOM:
Textured ceiling, ornate cornicing, double glazed curved bay window, fire place with ornate wooden surround, radiator, engineered wood flooring.
KITCHEN:
Smooth ceiling, inset spotlights, Velux window, double glazed double doors and side windows to rear garden, kitchen comprising wall and base mounted units with work surfaces over, inset sink and routed drainer with mixer tap over, integrated appliances including 5 ring gas hob, 2 ring electric induction hob, extractor over, high level electric double oven, microwave oven, steamer oven, fridge freezer, wine cooler, and coffee machine, two radiators, tiled floor.
UTILITY ROOM:
Smooth ceiling, space and plumbing for washing machine, fitted cupboards, tiled floor.
SHOWER ROOM:
Textured ceiling, double glazed obscured window, shower cubicle, WC, wash hand basin with cupboards beneath, tiled walls, tiled floor.
FIRST FLOOR LANDING:
Smooth ceiling, radiator, stairs to second floor, fitted carpet.
BEDROOM 2:
Textured ceiling, double glazed bay windows, two radiators, full run of fitted wardrobes, fitted carpet.
BEDROOM 3:
Smooth and coved ceiling, double glazed curve bay windows with views of the sea through houses at the rear, radiator, range of fitted bedroom furniture, discreet entrance to:
EN SUITE SHOWER ROOM:
Textured ceiling, double glazed obscured window, shower cubicle, WC, corner wash hand basin, radiator, extractor fan, tiled walls, vinyl flooring.
BEDROOM 4:
Textured ceiling, double glazed slight curved bay window, radiator, fitted carpet.
BATHROOM:
Textured ceiling, double glazed window, panelled bath with mixer shower attachment, WC, wash hand basin set in vanity unit with cabinets above, radiator, WC, tiled walls, vinyl flooring.
SECOND FLOOR LANDING:
Smooth ceiling, loft access, eaves storage access, Velux window, radiator, cupboard housing water tank, fitted carpet.
WC:
WC, wash hand basin with tiled splash back, laminate flooring.
BEDROOM 1:
Smooth ceiling, inset spotlights, double glazed dormer windows to front and rear, with views of the sea between at the houses at the rear, built in bench seating, built in bar, radiator, eaves storage cupboard, fitted carpet.
OUTSIDE:
Front - Deep forecourt, wall boundary, wrought iron front gate, decorative tiled path, shingle, raised beds. Rear - South facing tall walled garden, laid to patio and artificial lawn, raised brick planters, side pedestrian gate.
GARAGE:
Single garage, access via shared side driveway, with up and over door.
COUNCIL TAX
Portsmouth City Council TAX BAND F £3,150.22 for the year 2025/2026.
Read full description
Show less