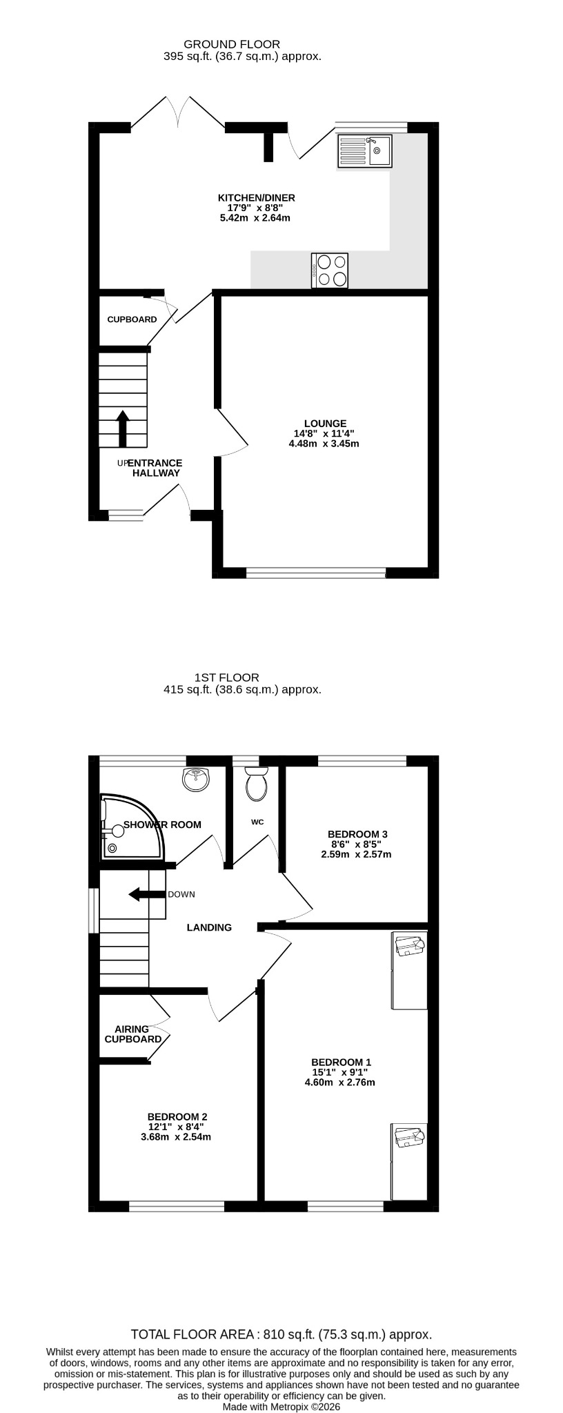
DESCRIPTIONNO FORWARD CHAIN. This three bedroom staggered end of terrace house benefits from an open green space to the front aspect and is located in a popular area to the north west of Fareham town centre. The internal accommodation comprises; entrance hall, lounge, open plan 17' kitchen/diner and to the first floor, there are three bedrooms, shower room and a separate WC. Outside, there are front and rear gardens, GARAGE and parking in front of the garage. Viewing is highly recommended by the sole agents.
ENTRANCE HALL Double glazed obscure front door. Tall double glazed window to the front aspect.
Staircase rising to the first floor. Radiator. Wood effect laminate flooring.
LOUNGE
Double glazed window to the front aspect. Radiator.
KITCHEN/DINER
Double glazed French doors leading to the rear garden and a further double glazed door leading to the rear garden. Matching wall and base units with contrasting worktops. Tiled splashback. Inset stainless steel sink and drainer. Four ring electric hob with extractor above and glass splashback. Fitted over/grill. Integrated appliances include: fridge/freezer, slimline dishwasher and washing machine. Radiator. Tile effect flooring.
FIRST FLOOR
LANDING
Double glazed window to the side aspect. Loft access. Doors to:
BEDROOM ONE
Double glazed window to the front aspect. Fitted wardrobes. Radiator.
BEDROOM TWO
Double glazed window to the front aspect. Airing cupboard. Radiator.
BEDROOM THREE
Double glazed window to the rear aspect. Radiator.
SHOWER ROOM
Double glazed window to the rear aspect. Suite comprising; shower cubicle. Wash hand basin. Tiled walls and flooring. Heated towel rail.
SEPARATE WC
Double glazed window to the rear aspect. Low level WC. Part tiled walls. Tiled flooring.
OUTSIDE
To the front of the property, there is a laid to lawn front garden with mature and well-maintained hedges. Open covered porch.
The rear garden has an initial composite decked area with a path leading down to the garage and gated rear pedestrian access. Flowerbeds with shrubs and plants. Timber garden shed.
GARAGE: Up and over door.
There is driveway parking in front of the garage.
AGENT’S NOTE
A grant of probate is currently awaited and will be required prior to exchange of contracts.
COUNCIL TAX
Fareham Borough Council. Tax Band C. Payable 2025/2026. £1,924.04.
Read full description
Show less