DRAFT DETAILS AWAITING VENDOR APPROVAL
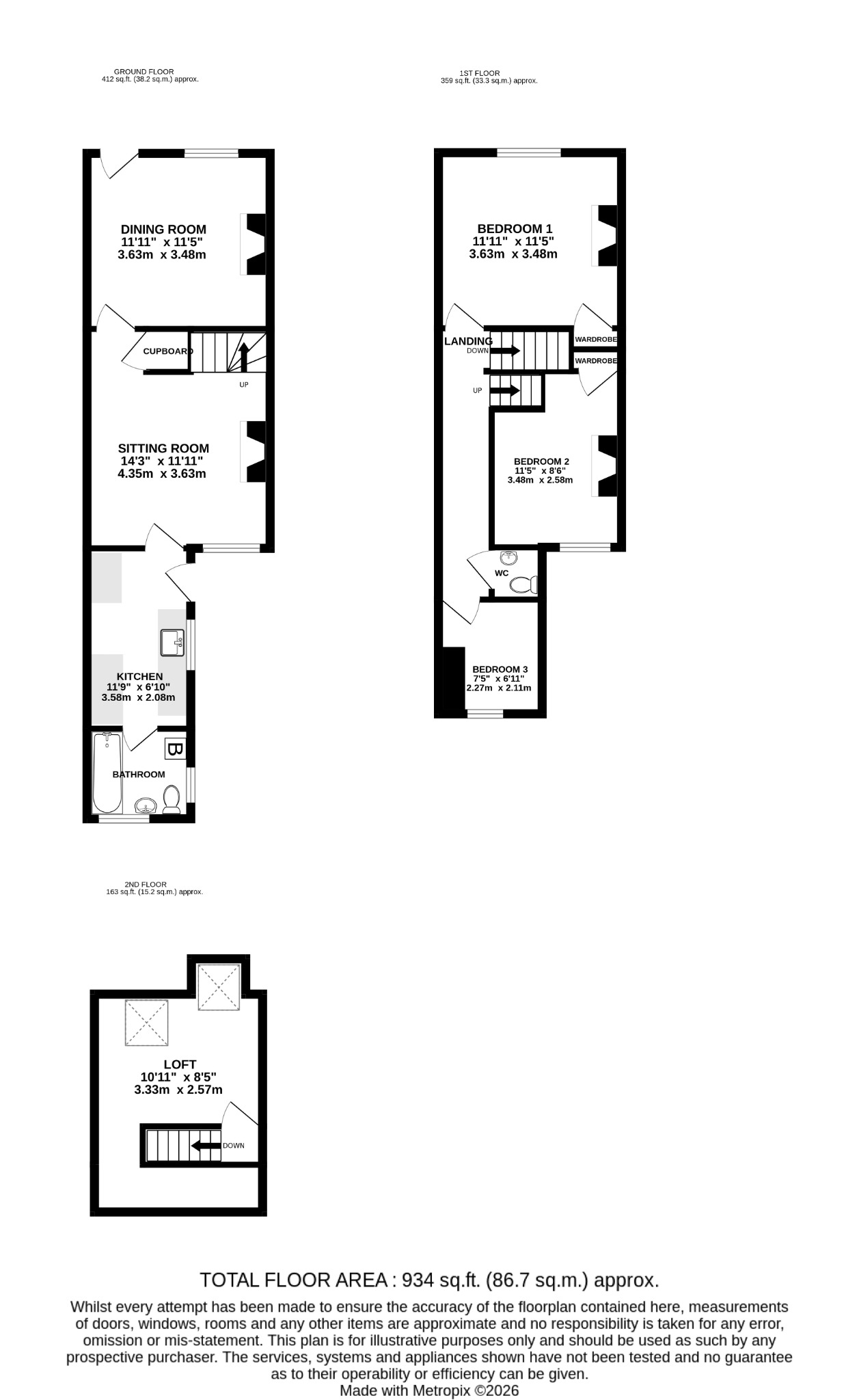
DESCRIPTION NO FORWARD CHAIN. This three bedroom end of terraced house is ideally located in the heart of Fareham town centre and within easy reach of Fareham's mainline railway station. The internal accommodation comprises; dining room, sitting room, kitchen and a ground floor bathroom. To the first floor, there are three bedrooms and a cloakroom and to the second floor, there is a loft room with access via a paddle staircase from the landing. Externally, there is a forecourt to the front and a rear garden, which has the benefit of backing onto Park Lane Recreation Ground.
Viewing is highly recommended by the sole agents.
COMPOSITE FRONT DOOR
DINING ROOM
Double glazed window to the front aspect. Smooth ceiling picture rail. Ornate cast iron fireplace. Wood effect flooring.
SITTING ROOM
Double glazed window to the rear aspect. Smooth ceiling. Picture rail. Chimney breast with a brick recess wooden surround and tiled hearth. Picture rail. Staircase rising to the first floor. Radiator. Wood effect flooring.
KITCHEN
Double glazed door leading to the rear garden. Double glazed window to the side aspect. Smooth ceiling. Matching wall and base units with wooden worktops. Tiled splashback. Space for cooker with extractor above. Integral fridge/freezer. Space for washing machine and slimline dishwasher.
BATHROOM
Dual aspect with double glazed windows to the front and side aspect. Suite comprising; bath with shower over and rail. Wash hand basin. Low level WC. Part tiled walls. Tiled flooring. Wall mounted 'Glow-worm' boiler.
FIRST FLOOR
LANDING
Smooth ceiling. Panelled staircase leading to the second floor. Radiator.
BEDROOM ONE
Double glazed window to the front aspect. Smooth ceiling. Built-in wardrobe. Ornate cast iron fireplace. Radiator.
BEDROOM TWO
Double glazed window to the rear aspect overlooking Park Lane Recreation Ground. Smooth ceiling. Built-in wardrobe. Ornate cast iron fireplace. Radiator.
BEDROOM THREE
Double glazed window to the rear aspect with views over Park Lane Recreation Ground. Smooth ceiling. Radiator.
WC
Smooth ceiling. Low level WC and wash hand basin. Heated towel rail. Tiled flooring.
SECOND FLOOR
LOFT
Smooth ceiling. Two skylights to the front aspect. Radiator. Large walk-in wardrobe/storage.
OUTSIDE
To the front of the property, there is forecourt.
The private aspect rear garden has the benefit of backing onto Park Lane Recreation Ground. It has an initial paved area with the remainder of the garden predominantly being laid to lawn with shrubs and borders and seating area at the bottom of the garden.
AGENTS NOTE
No. 37 New Road has pedestrian right of way through the rear garden.
COUNCIL TAX
Fareham Borough Council. Tax Band B. Payable 2025/2026. £1,683.54.
Read full description
Show less