This bright and spacious 3/4 bedroom semi-detached family home is situated in a convenient and sought after location. The property is well presented throughout and offers many additional benefits including UPVC double glazing, gas central heating, a ground floor bedroom/family room, kitchen/diner and conservatory. Offered with NO CHAIN. An internal viewing is highly recommended.
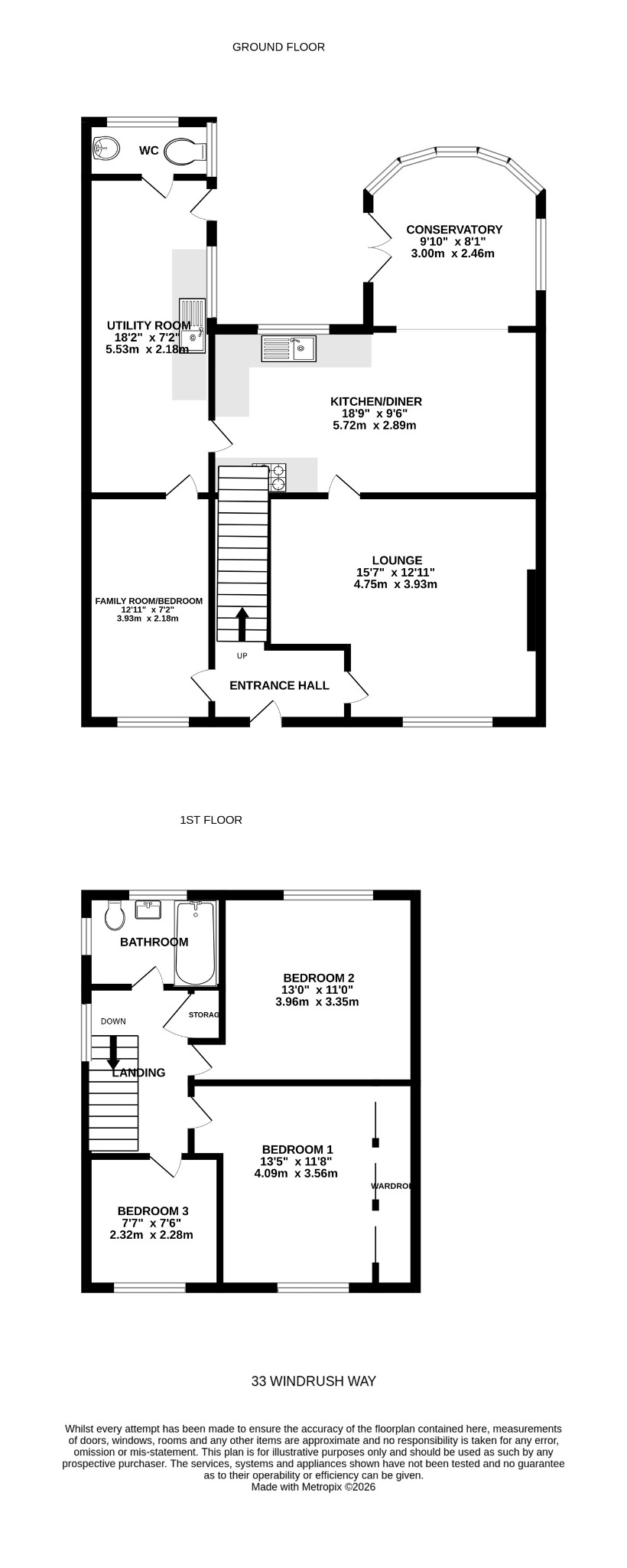
ENTRANCE HALL:
Approached via storm porch and UPVC door with side screen. Stairs to first floor. Door to:
LOUNGE15' 7" (4.75m) x 12' 11" (3.94m)::
Window to front. Built in understairs storage cupboard. Radiator.
KITCHEN/DINER
18' 9" (5.71m) x 9' 6" (2.90m)::
Window to rear. Fitted with a comprehensive range of base and wall units with working surfaces over and tiling to splashbacks. Inset enamel sink unit with mixer tap. Space and plumbing for dishwasher. Built in eye level oven and grill. Inset gas hob with extractor hood fitted over. Radiator. Double glazed sliding patio doors to:
CONSERVATORY
9' 10" (3.00m) x 8' 1" (2.46m)::
Of brick and UPVC construction. Tile effect flooring. Radiator. French doors to garden.
UTILITY ROOM
18' 2" (5.54m) x 7' 2" (2.18m)::
Window to side. Composite door to garden, door to ground floor family room/bedroom and door to WC . Range of base and wall units with working surfaces over and tiling to splashbacks. Inset stainless steel sink unit with mixer tap. Space and plumbing for washing machine and tumble dryer. Space for fridge freezer. Door to:
FAMILY ROOM/BEDROOM
12' 11" (3.94m) x 7' 2" (2.18m):
Window to front. Wood effect flooring. Radiator.
CLOAKROOM:
Obscure window to rear and side. Comprising white suite of close coupled WC. Wash hand basin with cupboard below.
FIRST FLOOR LANDING:
Window to side. Access to loft space with ladder, partly boarded and Worcester combi boiler.
BEDROOM 1
13' 5" (4.09m) x 11' 8" (3.56m)::
Window to front. Range of sliding door wardrobes. Radiator.
BEDROOM 2
13' (3.96m) x 11' (3.35m)::
Window to rear. Radiator.
BEDROOM 3
7' 7" (2.31m) x 7' 6" (2.29m)::
Window to front. Radiator.
BATHROOM:
Window to rear and side. Comprising white suite of panelled bath. Pedestal wash hand basin. Close coupled WC. Fully tiled walls. Heated towel radiator.
OUTSIDE:
The front garden is laid to lawn. Interlocking brick pavia driveway offering off road parking for several vehicles.
REAR GARDEN:
Fenced to boundaries. Laid to lawn. Patio area. Timber built garden shed.
COUNCIL TAX :
New Forest District Council, Band D, Charge Payable £2341.33 p.a 2025/2026
Read full description
Show less