Offered with no forward chain, this three-bedroom end-of-terrace property has been renovated in recent years to provide a clean and well-presented interior, a practical layout, and has the rare benefit of a detached garage. The ground floor includes a bay-fronted lounge, a generous open-plan kitchen/dining room, and a ground-floor bathroom. Upstairs offers three well-proportioned bedrooms along with an additional WC. The home has been updated internally in recent years with neutral décor and a modern kitchen, giving buyers a solid base to move straight into and personalise over time.
Located in a popular residential area, the property is close to local shops, schools, and transport links, making it a convenient choice for a range of buyers. A great opportunity for those looking for a spacious home with excellent potential and secure off-road parking.
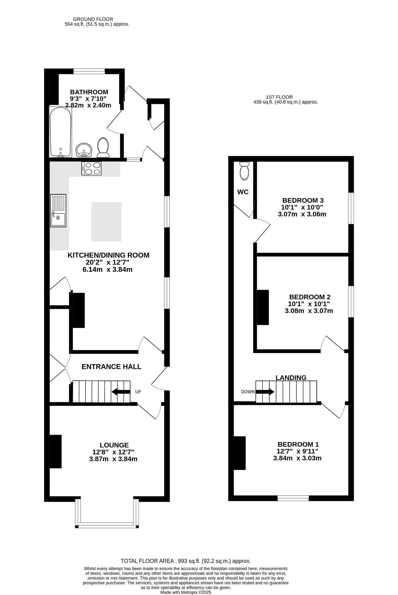
ENTRANCE HALL
Smooth ceiling, ornate cornicing, stairs to first floor landing, storage cupboards, radiator, vinyl flooring and doors into;
LOUNGE
Smooth ceiling, ornate cornicing, UPVC double-glazed bay window, radiator and fitted carpet.
KITCHEN/DINER
Smooth ceiling, coving, inset spotlights, storage cupboard, UPVC double-glazed windows, radiator, a range of wall and base-mounted units with roll top work surfaces, inset sink and drainer, electric hob and oven with extractor fan over, space for appliances, vinyl flooring and door into;
INNER HALL
Smooth ceiling, inset spotlights, loft hatch access, boiler cupboard and laminate flooring.
BATHROOM
Smooth ceiling with inset spotlights, UPVC double-glazed window, panal bath with shower over, tiled splash back, wash hand basin, low level W.C, ladder towel radiator and tiled flooring.
FIRST FLOOR LANDING
Smooth ceiling, UPVC double-glazed window, fitted carpet and doors into;
BEDROOM ONE
Smooth ceiling, UPVC double-glazed window, radiator and fitted carpet.
BEDROOM TWO
Smooth ceiling, UPVC double-glazed window, radiator and fitted carpet.
BEDROOM THREE
Smooth ceiling, UPVC double-glazed window, radiator and fitted carpet.
W.C.
Smooth ceiling, toilet and wash hand basin unit and tiled flooring.
GARAGE
Up and over door.
OUTSIDE
To the rear, a brick wall enclosed west-facing garden laid with shingle and with side pedestrian access.
COUNCIL TAX
Portsmouth City Council TAX BAND B £1,696.27 for the year 2025/2026.
Read full description
Show less