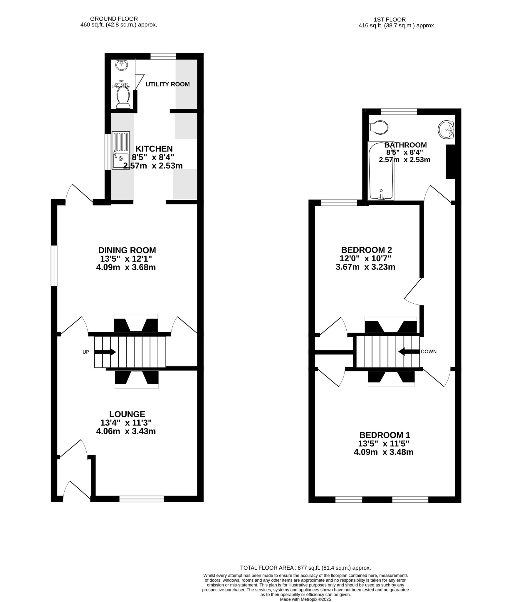
DESCRIPTIONThis well-presented two bedroom older style end terrace house is ideally located within the heart of Fareham town centre with all its amenities. This character property has feature fireplaces in the majority of rooms, and has accommodation briefly comprises; entrance porch, lounge, separate dining room, kitchen, utility room and ground floor cloakroom. On the first floor, two double bedrooms can be found and a spacious three piece bathroom. The property benefits from double glazing and is warmed by gas central heating. The property also benefits from a larger than average rear garden.
As sole agents, we would highly recommend an early inspection.
DOUBLE GLAZED DOOR
Leading to:
ENTRANCE PORCH
With part glazed door to:
LOUNGE
Double glazed window to front elevation. Chimney breast with feature cast iron fireplace. Picture rail. Coved and skimmed ceiling. Radiator. Staircase to first floor. Door to:
DINING ROOM
Double glazed window to side elevation and double glazed door to garden. Chimney breast with feature cast iron fireplace. Radiator. Picture rail. Laminate flooring. Large understairs storage cupboard with light. Doorway to:
KITCHEN
Double glazed window to side elevation. Stainless steel single drainer sink unit with cupboard under. Further range of wall and base level units with work surfaces over and splash back tiling. Plumbing for dishwasher. Tiled flooring. Wall mounted gas boiler. Opening to:
UTILITY ROOM
Double glazed window to rear elevation. Plumbing for washing machine with work surface over. Recess for fridge/freezer. Radiator. Tiled flooring. Folding door to:
CLOAKROOM
Low level close coupled WC. Wash hand basin. Splash back tiling. Radiator. Extractor fan.
FIRST FLOOR
LANDING
Doors to:
BEDROOM ONE
Two double glazed windows to front elevation. Radiator. Built-in wardrobe. Chimney breast with feature cast iron fireplace. Coved and textured ceiling.
BEDROOM TWO
Double glazed window to rear overlooking the grounds of Trinity Church. Radiator. Built-in wardrobe. Chimney breast with feature cast iron fireplace. Radiator. Coved and textured ceiling.
BATHROOM
Double glazed window to rear elevation. Panel enclosed bath with shower unit over and shower screen. Low level close coupled. WC. Pedestal wash hand basin. Chimney breast with cast iron fireplace. Radiator. Picture rail. Coved and skimmed ceiling.
OUTSIDE
The generous size rear garden is a further feature of the property and has a patio area adjacent to the house. The remainder of the garden can be found mainly laid to lawn with flower and shrub borders. The garden is fence enclosed and has gated side pedestrian and an outside water tap.
AGENT'S NOTE
There is a pedestrian right of access for No. 90 Western Road.
COUNCIL TAX
Fareham Borough Council. Tax Band B. Payable 2025/2026. £1,683.54.
Read full description
Show less