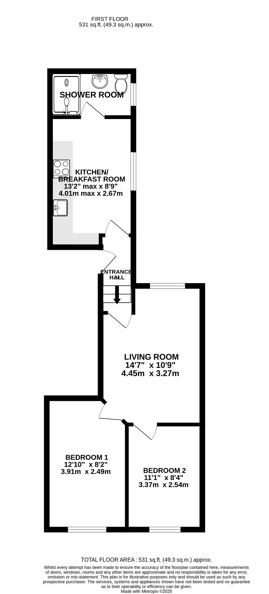
DESCRIPTION A well-presented first floor flat centrally located within Fareham town centre with the benefit of one allocated parking space. The property's accommodation briefly comprises of a; communal entrance hall with stairs to first floor, private front door leading to an entrance hall, kitchen/breakfast room, a shower room, living room and two double bedrooms. The property benefits from double glazing and is warmed by independent electric heating. The flat has its own allocated parking space, which is located behind the property and accessed via a service road from Hartlands Road.
As sole agents we would highly recommend an early inspection.
FRONT DOOR TO:
COMMUNAL ENTRANCE HALL
With stairs to first floor.
PRIVATE FRONT DOOR TO:
ENTRANCE HALL
Double glazed window to side elevation. Steps leading to the living room and door to:
KITCHEN/BREAKFAST ROOM
Double glazed window to side elevation. Sink unit set into solid wooden work surfaces with cupboard under housing electric water heater. There is a selection of wall and base level units with solid wood work surfaces over. Built-in four ring ceramic hob with electric oven under and cooker hood above. Plumbing for washing machine. Recess for fridge/freezer. Area for breakfast table. Door to:
SHOWER ROOM
Double glazed window to side elevation. Walk-in shower cubicle with wall mounted electric shower unit. Vanity unit with wash hand basin and storage beneath. Low level close coupled WC. Heated towel rail. Extractor fan.
LIVING ROOM
Double glazed window to rear elevation. Electric heater with timer. Electric vertical radiator. Inset ceiling spotlights. Doors to both bedrooms.
BEDROOM ONE
Double glazed window to front elevation. Electric vertical radiator. Inset ceiling spotlights.
BEDROOM TWO
Double glazed window to front elevation. Electric vertical radiator. Inset ceiling spotlights.
OUTSIDE
The property benefits from its own parking space, which can be found behind the property and is accessed via a service road from Hartlands Road.
LEASE INFORMATION
Remainder of 250 year lease from 01/11/2020.
Ground rent: £50 payable for the period 01/04/2025 - 31/03/2026.
Maintenance/service charge: £1,093.18 payable for the period 01/04/2025 - 31/03/2026 (includes business insurance).
Please be aware the maintenance/service charges are an annual cost and the amount payable is reviewed each year.
COUNCIL TAX
Fareham Borough Council. Tax Band B. Payable 2025/2026. £1,683.54.
Read full description
Show less