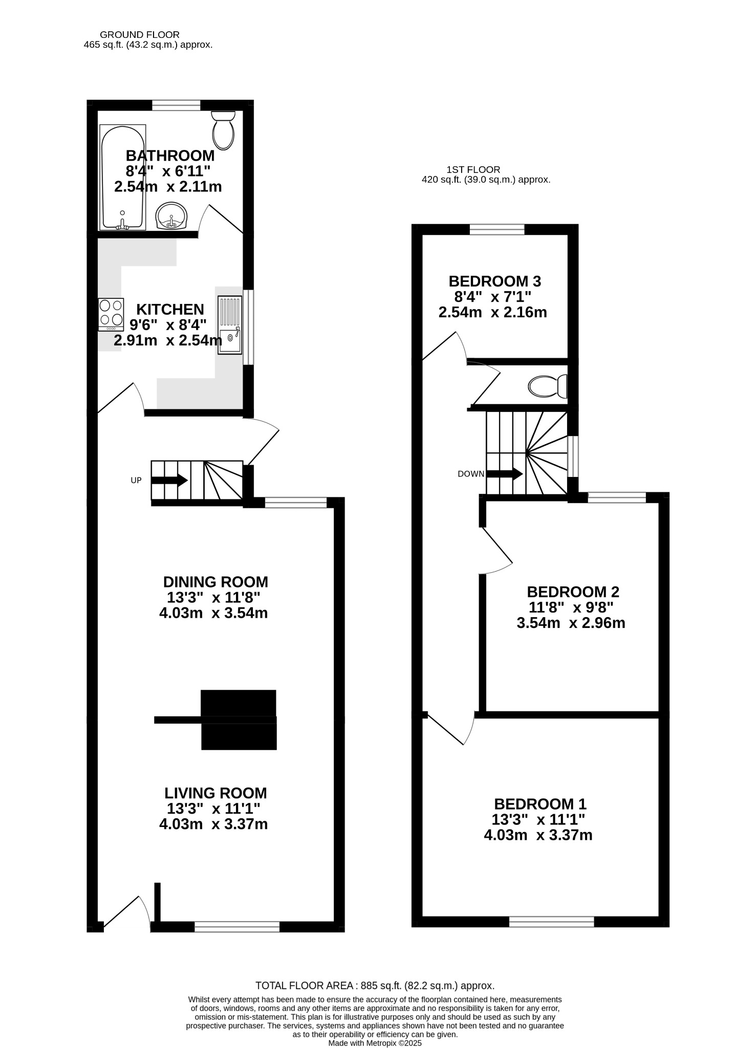
Sold with no forward chain, this well-presented terraced home has been fully refurbished in recent years to create a modern and stylish property with fresh, neutral decor throughout. On the ground floor, there are two reception rooms leading through to a modern fitted kitchen and a sleek bathroom positioned at the rear. Upstairs, the accommodation offers three bedrooms together with a convenient upstairs W.C. The rear garden provides a low-maintenance, south-facing space that's perfect for relaxing, entertaining, or enjoying the sun.
Ideal for first-time buyers, families, or investors, an early inspection is recommended to avoid disappointment.
LOCATION
Toronto Road is located in a popular residential area, less than a mile north of Fratton Train Station and within an easy reach of comprehensive shopping facilities along Fratton and London Roads. Bus services pass close by linking to all other parts of the city and good local schooling is available in the area.
LOUNGE
Smooth ceiling, inset spotlights, cupboards housing meters, UPVC double-glazed window, radiator, fitted carpet and opening into;
DINING ROOM
Smooth ceiling, inset spotlights, UPVC double-glazed window, radiator, fitted carpet and door into:
INTERNAL HALL
Smooth ceiling, inset spotlights, stairs rising to landing, under stairs storage, UPVC double-glazed door to garden and fitted carpet.
KITCHENSmooth ceiling, inset spotlights, a range of wall and base-mounted units with roll worktops over, inset stainless steel sink and drainer with mixer tap over, integrated oven with electric hob and extractor fan above, space for appliances, radiator and laminate flooring.BATHROOMSmooth ceiling, inset spotlights, UPVC double-glazed obscured window, panel bath mixer tap and shower over, glass shower screen, low level WC, wash hand basin, heated towel rail and vinyl flooring.
LANDINGSmooth ceiling, inset spotlights, loft hatch access, UPVC double-glazed window, fitted carpet and door into;
BEDROOM ONESmooth ceiling, inset spotlights, UPVC double-glazed window, radiator and fitted carpet.
BEDROOM TWOSmooth ceiling, inset spotlights, UPVC double-glazed window, radiator and fitted carpet.
BEDROOM THREESmooth ceiling, inset spotlights, UPVC double-glazed window, radiator and fitted carpet.
OUTSIDE
The rear garden provides a low-maintenance, south-facing space that's perfect for relaxing, entertaining, or enjoying the sun.
COUNCIL TAX
Portsmouth City Council TAX BAND B £1,782.44 for the year 2026/2027.
Read full description
Show less