tormead, hythe

3 bedrooms | OIRO £300,000 | Freehold

Call the Hythe office

023 8084 4131

Request Viewing Save Print
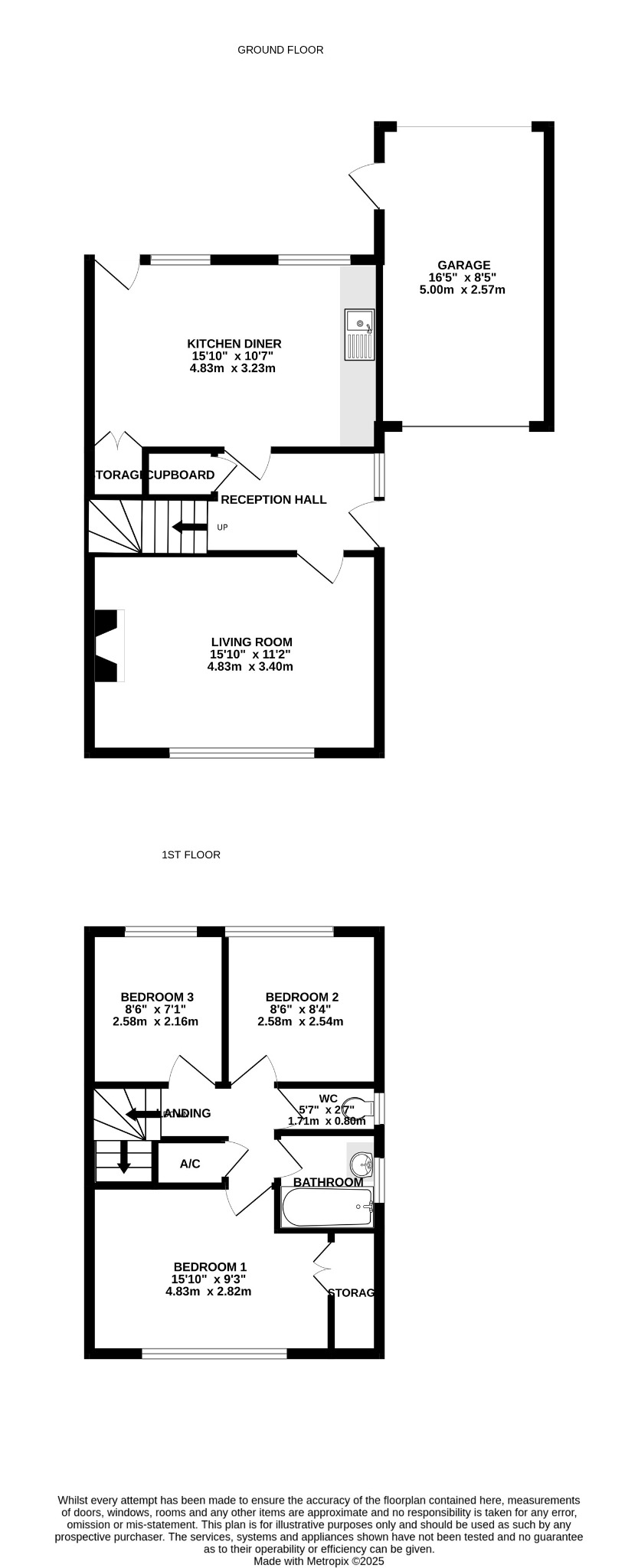
This 3 bedroom semi detached house is situated in a popular residential area within catchment area of Orchard and Noadswood schools. The property offers an opportunity for buyers looking to renovate and modernise and benefits from gas central heating, double glazing, off road parking, gardens and is offered with NO CHAIN.

ENTRANCE HALL:
Approached via double glazed door and side screen. Stairs to first floor. Double opening understairs storage housing metres. Radiator.

LIVING ROOM
15' 10" (4.83m) x 11' 2" (3.40m)::
Window to front. Fireplace with gas fire fitted. Radiator.
Read full description

Properties of interest

rosebery avenue, hythe

3 bedrooms | £325,000

mousehole lane, hythe

2 bedrooms | £320,000

south street, hythe

3 bedrooms | £320,000

Register with us, we’ll help make sure you don’t miss your dream home.

Save searches and properties, make notes, set up automatic email alerts for new properties.

Register Now

We just wanted to congratulate the team at Winchester Pearsons branch namely Mr Sam McCathie, the Branch Manager and Mark (most helpful but sorry don’t know your surname!) Both have given our family an exceptional bespoke service throughout this potentially upsetting time of having to sell our mothers home of many years. Thank you for all your help, understanding and for enabling us to reach a very satisfactory sale price! If you are thinking of selling or buying Property in the Winchester area then we cannot recommend Sam and the team at Pearson’s highly enough!
N.B. and family

WHY CHOOSE PEARSONS?

Our Offices


View Office Map

Service | Marketing | Experience

Terms & Conditions | Privacy Policy | Client Money Protection Certificate | Click here for a full list of our lettings fees | Complaints Procedures | Site Map | Website by fruitful

©2025 Pearsons | Pearsons Southern Limited is registered in England and Wales. Registered office: Kintyre House, 70 High Street, Fareham, Hants PO16 7BB. Company No. 01517996