This spacious 3 bedroom semi-detached home is situated close to Hythe Village and backs onto woodland. The property benefits from off road parking, UPVC double glazing, gas central heating and kitchen/diner with a conservatory to the rear. Offered with NO FORWARD CHAIN. An internal viewing is highly recommended.
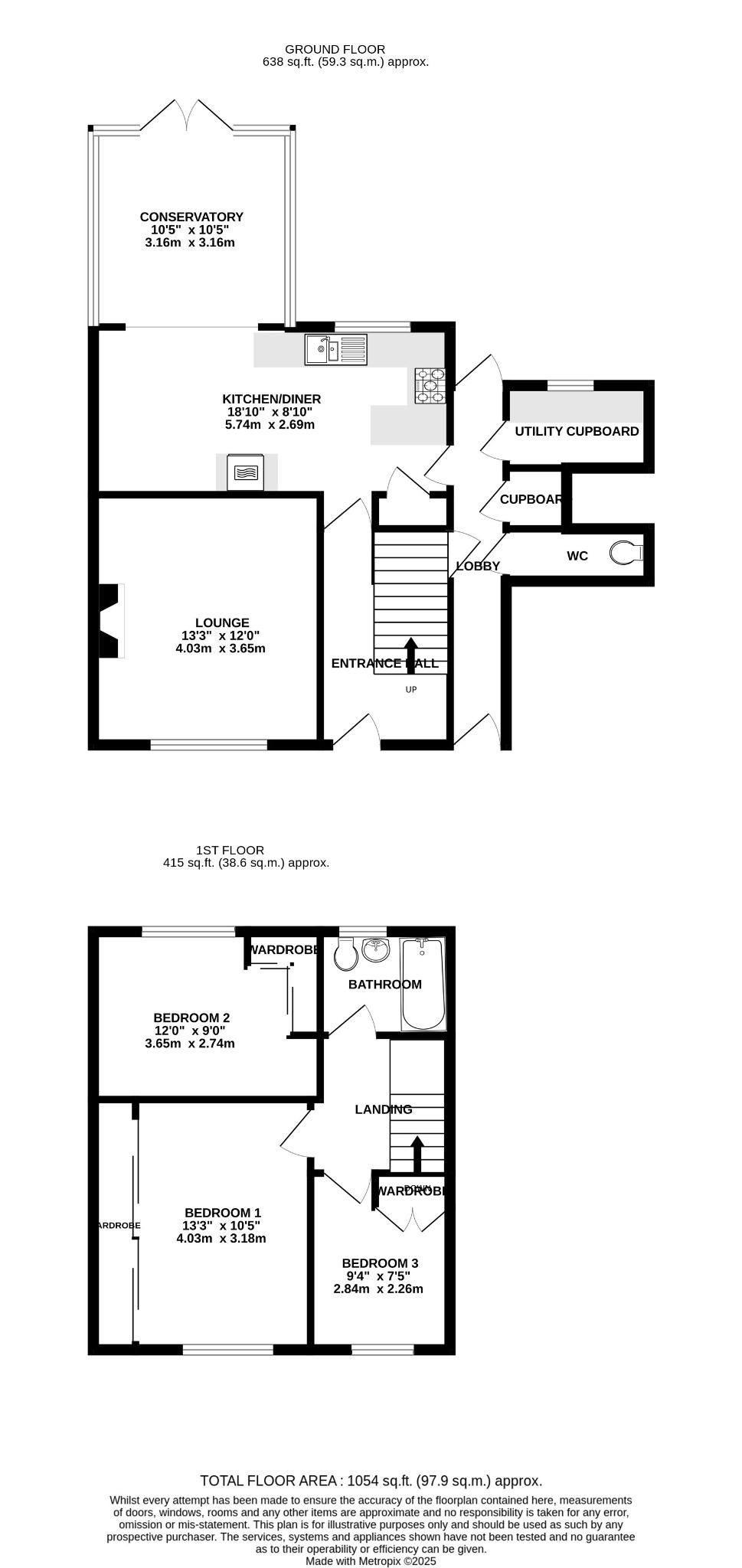
ENTRANCE PORCHApproached via UPVC front door with windows to side. Door to:
ENTRANCE HALLStairs to first floor. Radiator.
LOUNGE13' 3" (4.04m) x 12' (3.66m)
Double glazed window to front aspect. Feature fireplace with electric coal effect fire fitted. Radiator.
KITCHEN/DINER
18' 10" (5.74m) x 8' 10" (2.69m)
Double glazed window to rear aspect. Door to side lobby. Fitted with a range of base wall units with working surfaces over. One and a half bowl sink unit with mixer tap. Inset five ring gas hob. Space and plumbing for washing machine. Built-in Neff oven with Neff microwave and grill above. Built-in larder cupboard. Opening into:
CONSERVATORY
10' 5" (3.17m) x 10' 5" (3.17m)
Of brick and UPVC construction. French doors to garden. Radiator.
SIDE LOBBY
Double glazed doors to front and rear access. Utility cupboard with window to rear aspect. Built-in storage cupboard. Separate WC.
FIRST FLOOR LANDING
Double glazed window to side aspect. Access to loft space with ladder with boarding and light.
BEDROOM ONE
13' 3" (4.04m) x 10' 5" (3.17m)
Double glazed window to front aspect. Fitted with a range of sliding door wardrobes with hanging rail and shelving. Radiator.
BEDROOM TWO
12' (3.66m) x 9' (2.74m)
Double glazed window to rear aspect. Fitted with a range of sliding door wardrobes with hanging rails and shelving. Radiator.
BEDROOM THREE
9' 4" (2.84m) x 7' 5" (2.26m)
Double glazed window to front aspect. Built-in double opening storage cupboard. Radiator.
BATHROOM
Obscure double glazing window to rear aspect. Comprising white suite of panelled bath with mixer taps and shower fitted over. Pedestal wash hand basin. Close coupled WC. Fully tiled walls. Radiator.
OUTSIDE
Ther front garden is laid to patio offering off-road parking. Path leading to front entrance.
REAR GARDEN
Fenced to boundaries. Laid to interlocking brick pavia. Timber built garden shed. Greenhouse. Outside tap.
COUNCIL TAX :
New Forest District Council, Band C, Charge Payable £2081.18 p.a. 2025/2026
PLEASE NOTE
£70.00 per annum payable to Butts Ash Wood Residents Association for the upkeep of the communal areas on the estate.
Read full description
Show less