Offered with no forward chain, this former three-bedroom single bay and forecourt property offers a full-size upstairs bathroom and two double bedrooms, making it an ideal first home or investment opportunity. The accommodation features a welcoming lounge with a large bay window providing plenty of natural light, and a versatile second reception room that can be used as a dining room or third bedroom. To the rear, the spacious kitchen/breakfast room offers ample worktop space and room for dining, perfect for everyday family living.
The rear garden offers a great low-maintenance space with paved flooring and plant bed boarders, ideal for relaxing or entertaining. Upstairs there are two generous double bedrooms and a bright, modern bathroom fitted with a white suite, bath, and shower over. Located in a popular residential area close to local shops, transport links, and schools, this home is ready to move straight into and offered with the benefit of no onward chain.
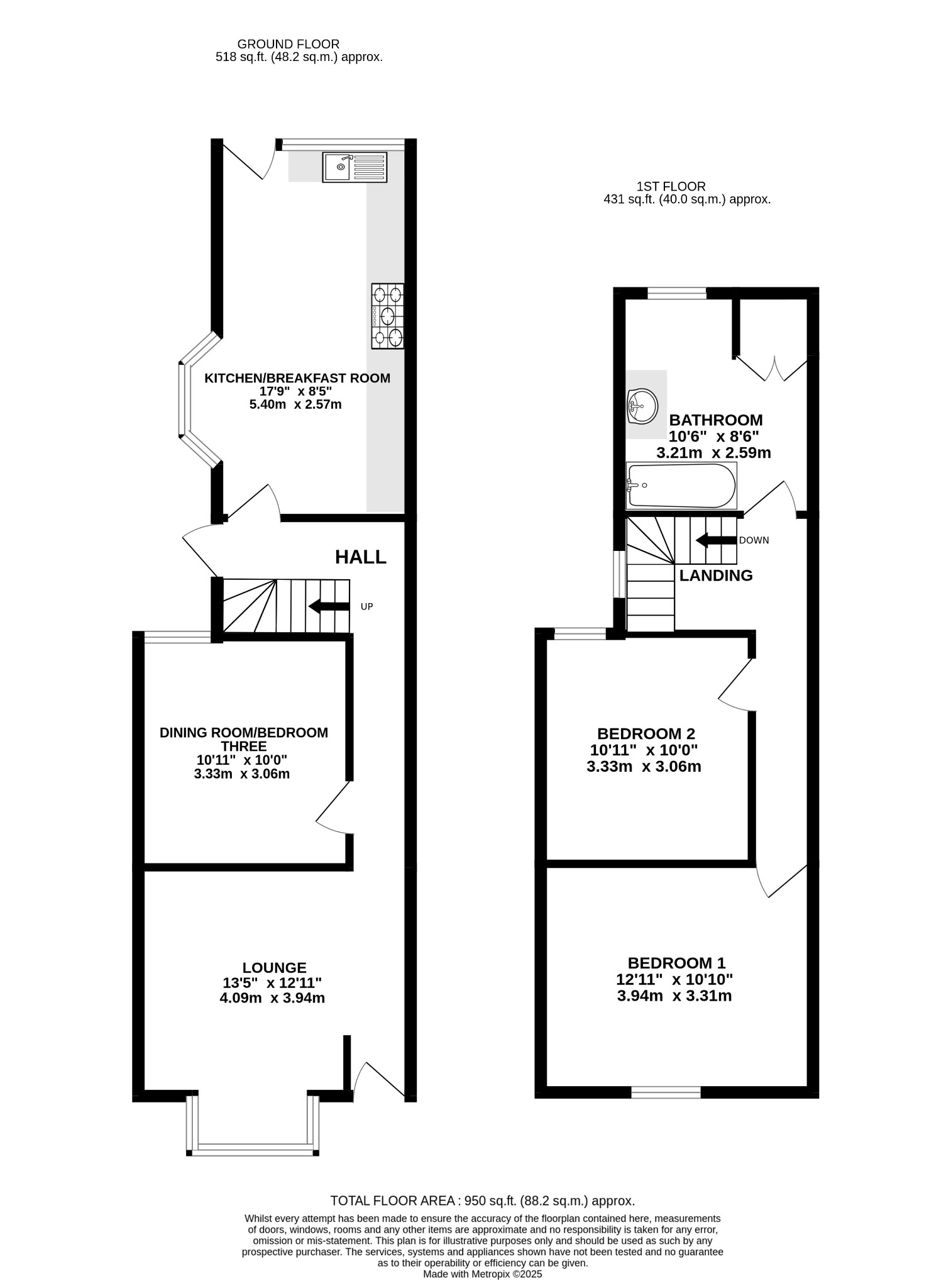
LOUNGE
Smooth ceiling, UPVC double-glazed bay window, radiator, laminate flooring and door into;
DINING ROOM / BEDROOM 3
Smooth ceiling, UPVC double-glazed window, radiator and laminate flooring.
INNER HALL
Smooth ceiling, stairs rising to first floor landing, under stair cupboard, UPVC double-glazed door to garden, laminate flooring and door into;
KITCHEN/BREAKFAST ROOM
Textured ceiling, UPVC double-glazed bay window, UPVC double-glazed door and window to garden, a range of wall and base mounted units with roll top work surfaces over, inset sink and drainer, cooker with extractor over, space for appliances, radiator and vinyl flooring.
LANDING
Smooth ceiling, side aspect UPVC double-glazed window, exposed floor boards and doors into;
BEDROOM ONE
Textured ceiling, UPVC double-glazed window, radiator and exposed floor boards.
BEDROOM TWO
Smooth ceiling, UPVC double-glazed window, radiator and exposed floor boards.
BATHROOM
Textured ceiling, loft hatch access, UPVC double-glazed window, cupboard housing boiler, bath with shower over, tiled splash back, wash hand basin with storage beneath, low level W.C, radiator and exposed floor boards.
OUTSIDE
The rear garden offers a great low-maintenance space with paved flooring and plant bed boarders, ideal for relaxing or entertaining.
COUNCIL TAX
Portsmouth City Council TAX BAND B £1,696.27 for the year 2025/2026.
Read full description
Show less