Sold with no forward chain, this beautifully presented two-bedroom apartment is ideally positioned directly opposite the Common and the seafront, making it perfectly placed to enjoy everything Southsea has to offer. Benefiting from allocated off-road parking, the apartment is situated on the ground floor and offers generous accommodation along with a wealth of period charm complemented by modern upgrades. The property enjoys its own private entrance and porch, providing a rare sense of privacy and independence.
This leads into a welcoming hallway and through to the impressive living room, which features tall ceilings, ornate detailing, a large UPVC double-glazed sash bay window and striking bespoke My Dog Sighs artwork, creating a truly unique and characterful living space. Both bedrooms are well-proportioned doubles, offering excellent flexibility for home working, guest accommodation or sharers. The kitchen is well arranged with ample storage and worktop space, while the bathroom is fully tiled and finished to a contemporary standard. Further benefits include a recently installed boiler (serviced in December with Gas Safe certification available), a new building-wide fire alarm system installed by Holt Alarms, and significant roof works completed in November ensuring the building is fully watertight. The block is right to manage, giving leaseholders full control and long-term peace of mind. Externally, the allocated parking space is situated to the rear, and the apartment also benefits from sole ownership of the front garden, further enhancing the appeal. An early inspection is recommended to avoid disappointment.
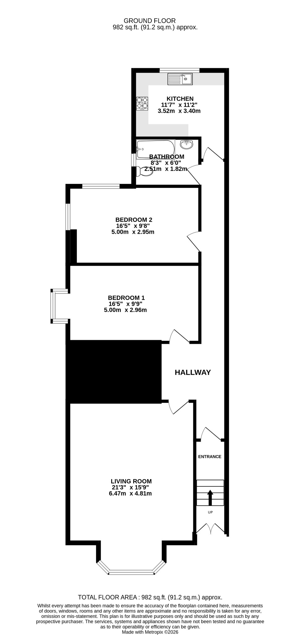
ENTRANCE
Smooth ceiling, ceiling rose ornate cornicing, dado rails, coir entrance matting, fitted carpet and door into;
HALLWAY
Smooth ceiling, inset spotlights, ornate cornicing, ceiling arch, dado rails, radiator and parquet flooring.
LOUNGE
Smooth ceiling, ceiling rose, ornate cornicing, picture rails, dado rails, feature fireplace, radiators, My Dog Sighs artwork and fitted carpet.
BEDROOM ONE
Smooth ceiling, inset spotlights, ornate cornicing, picture rails, UPVC double-glazed window, radiator and fitted carpet.
BEDROOM TWO
Smooth ceiling, inset spotlights, ornate cornicing, picture rails, UPVC double-glazed windows, radiator and fitted carpet.
BATHROOM
Smooth ceiling, inset spotlights, ornate cornicing, extractor fan, picture rails, obscured UPVC double-glazed window, bath with shower over, wash hand basin, tiled splash back, low level W.C, radiator and tiled flooring.
OUTSIDE
Externally, the allocated parking space is situated to the rear, and the apartment also benefits from sole ownership of the front garden.
LEASE INFORMATION
Lease Commenced: 01/01/2000
Lease Term: 125 years
Lease Term Remaining: 98 years
Ground Rent: £150.00 per year
Service/Maintenance and Building Insurance: £1,200.00 per year
COUNCIL TAX
Portsmouth City Council TAX BAND B £1,782.44 for the year 2026/2027.
Read full description
Show less