ruskin road, southsea

2 bedrooms | £235,000 | Freehold

Call the Southsea office

023 9273 5558

Request Viewing Save Print
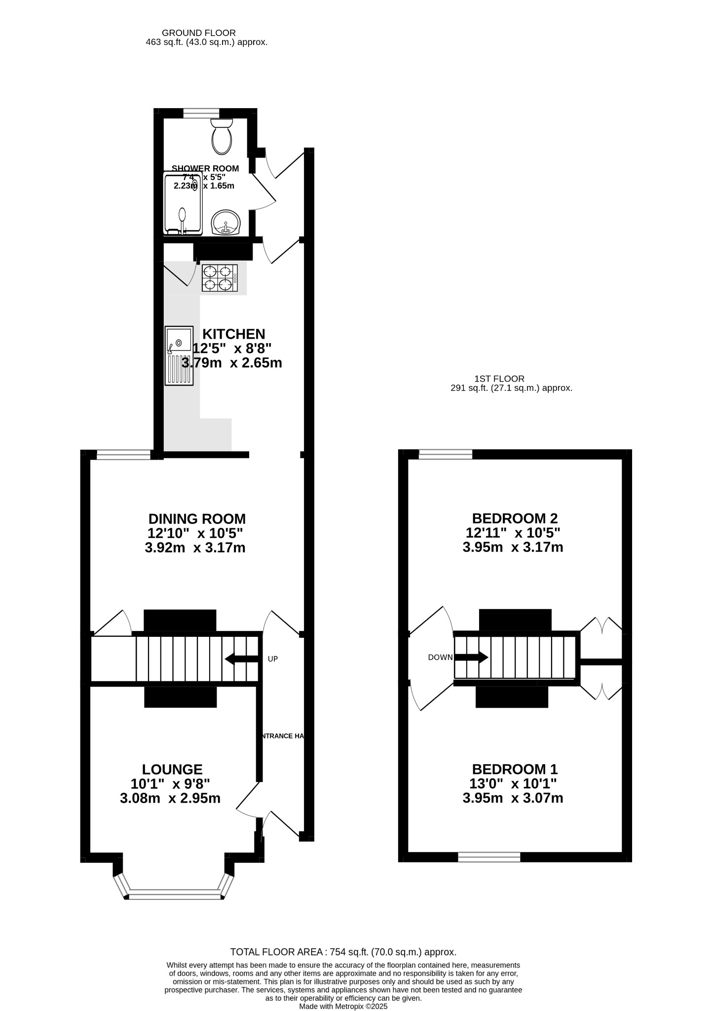
Sold with no forward chain, this two-bedroom single bay and forecourt terraced home offers well-proportioned accommodation with neutral decor throughout. On the ground floor, the property features two spacious reception rooms leading through to a modern fitted kitchen and a contemporary shower room. Upstairs, there are two generous double bedrooms. Externally, the property benefits from a forecourt to the front and a low-maintenance west-facing garden with patio and artificial lawn, ideal for relaxing, entertaining or enjoying the sun. Perfect for first-time buyers or investors, an early viewing is strongly recommended.
Read full description

Properties of interest

dunbar road, southsea

2 bedrooms | £250,000

clarence parade, southsea

2 bedrooms | £250,000

clarendon road, southsea

2 bedrooms | £245,000

Register with us, we’ll help make sure you don’t miss your dream home.

Save searches and properties, make notes, set up automatic email alerts for new properties.

Register Now

Dear Paul, just a quick note to thank you and the team at Pearsons with your help in selling our property in St Johns Glebe. Despite a slow market, I think we racked up nearly 30 viewings in total and your team were straight on the ball when the first chain collapsed and contact was made with a previous interested party who ended up buying the property at a most suitable price. I was pleasantly surprised with the deal that was offered to sell the house but, to my mind, the outstanding feature was the professionalism and friendly manner of your team and the regular feedback we received about how the property was being promoted and the way you were responding to interested parties. So a 10/10 from both of us and we will definitely be back to see you again should we wish to downsize from our current property which you sold us nearly 11 years ago!
Mr. & Mrs. F

WHY CHOOSE PEARSONS?

Our Offices


View Office Map

Service | Marketing | Experience

Terms & Conditions | Privacy Policy | Client Money Protection Certificate | Click here for a full list of our lettings fees | Complaints Procedures | Site Map | Website by fruitful

©2025 Pearsons | Pearsons Southern Limited is registered in England and Wales. Registered office: Kintyre House, 70 High Street, Fareham, Hants PO16 7BB. Company No. 01517996