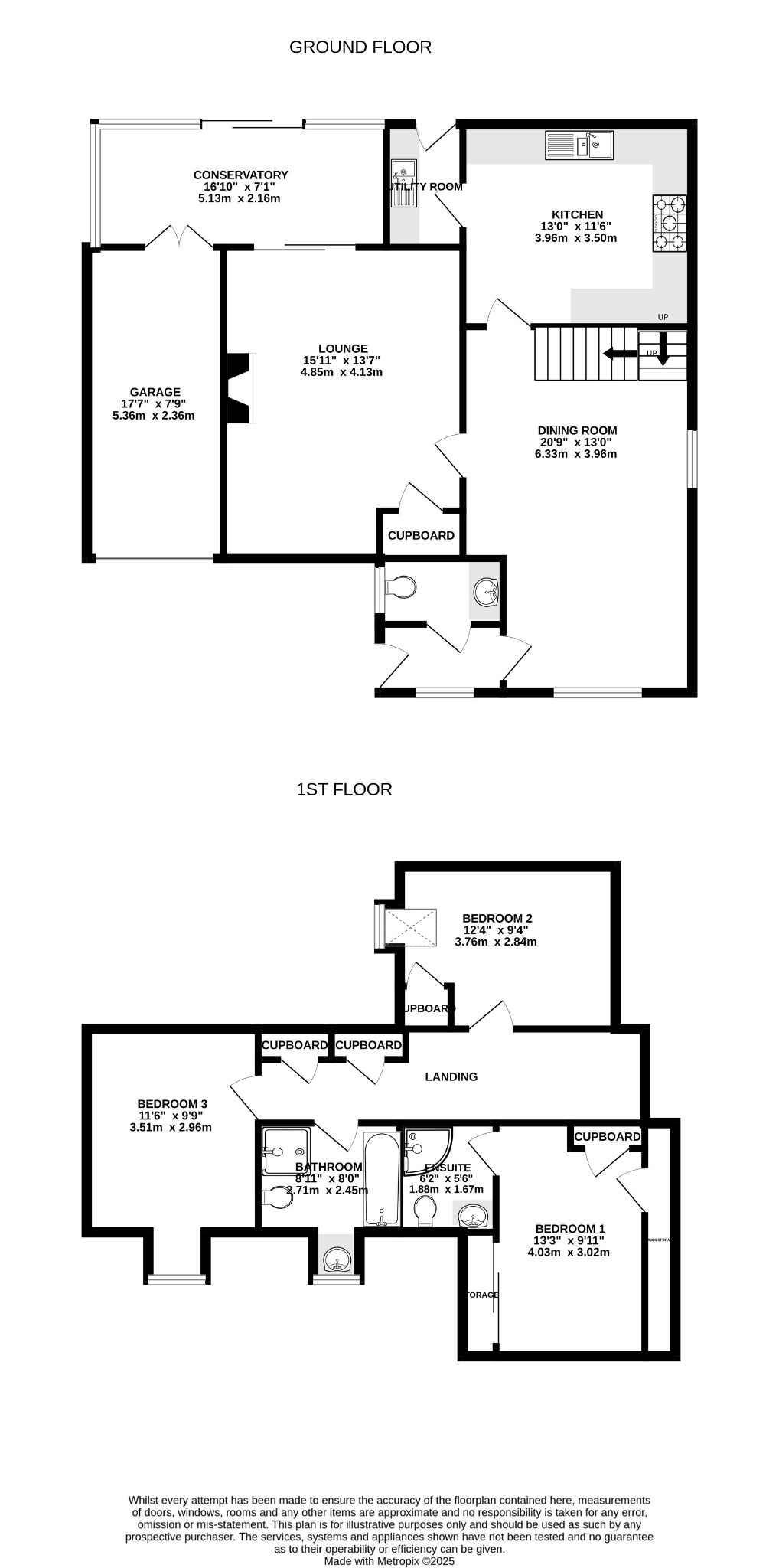
This well proportioned 3 bedroom detached house offers versatile accommodation. The property benefits from a spacious dining room, lounge, kitchen, utility room, gas central heating, UPVC double glazing and garage. The shingle front garden offers ample parking. An internal viewing is highly recommended.
ENTRANCE HALL:
Approached via composite door. Window to front. Ceramic tiled flooring. Radiator with decorative cover.
CLOAKROOM:
Obscure window to side. White suite of close coupled WC. Wash hand basin. Ceramic tiled flooring. Radiator in decorative cover.
DINING ROOM:
20' 9" (6.
32m) x 13' (3.96m):
Window to front and side. Ceramic tiled flooring. Stairs to first floor. Radiator with decorative cover.
LOUNGE:
15' 11" (4.85m) x 13' 7" (4.14m):
Window to front. Built in storage cupboard. Feature fireplace with coal effect gas fired fitted. Radiator. Double glazed sliding patio doors to:
CONSERVATORY:
16' 10" (5.13m) x 7' 1" (2.16m):
Of UPVC construction. Tile effect flooring. Radiator. Double doors to garage. Sliding doors to rear garden.
KITCHEN:
13' (3.96m) x 11' 6" (3.51m):
Window to rear. Fitted with a comprehensive range of base and wall units with working surfaces over and tiling to splashbacks. One and a half bowl sink unit with mixer tap and shower attachment. Space for range style cooker. Space for fridge freezer. Space and plumbing for dishwasher. Ceramic tiled flooring. Radiator. Door into:
UTILITY ROOM:
Window to side. UPVC double glazed door to garden. Range of base and wall units with working surface over and tiling to splashback. One and a half bowl unit with mixer shower style tap. Space and plumbing for washing machine. Wall mounted Vaillant gas fired boiler. Ceramic tiled flooring.
FIRST FLOOR LANDING:
Two built in storage cupboards. Inset ceiling lights.
BEDROOM 1
13' 3" (4.04m) x 9' 11" (3.02m)::
Window to front. Double opening built in wardrobe. Range of sliding door wardrobes with hanging rail and shelving. Eaves storage cupboard. Radiator with decorative cover.
ENSUITE :
6' 2" (1.88m) x 5' 6" (1.68m):
Comprising corner shower cubicle. Close couple WC. Wash hand basin with mixer tap and fitted drawer below. Inset ceiling lights and extractor fan. Chrome heated towel radiator.
BEDROOM 2
12' 4" (3.76m) x 9' 4" (2.84m)::
Velux window to side. Range of sliding door wardrobes with hanging rail and shelving. Built in storage cupboard. Radiator.
BEDROOM 3
11' 6" (3.51m) x 9' 9" (2.97m)::
Box bay window to front. Radiator.
OUTSIDE:
The front garden is fenced to side boundaries and a brick wall and wrought iron gates to front. Shingle driveway offering ample off road parking and leading to:
GARAGE:
Up and over door to front. Power and lighting connected. UPVC double opening doors to conservatory.
REAR GARDEN:
Fenced to boundaries. Laid to lawn. Patio areas. Three garden sheds. Pergola seating area. Outside tap.
COUNCIL TAX :
New Forest District Council, Band D, Charge Payable £2348.21 p.a. 2025/2026
Read full description
Show less