An ideal opportunity to purchase a spacious 4 bedroom detached house in need of modernisation. The property sits on a plot of 0.2 acres and benefits from 4 double bedrooms, ground floor shower room, UPVC double glazing, gas central heating, south facing rear garden, integral garage and ample parking. Offered with NO CHAIN. An internal viewing is recommended.
Double glazed front door into:
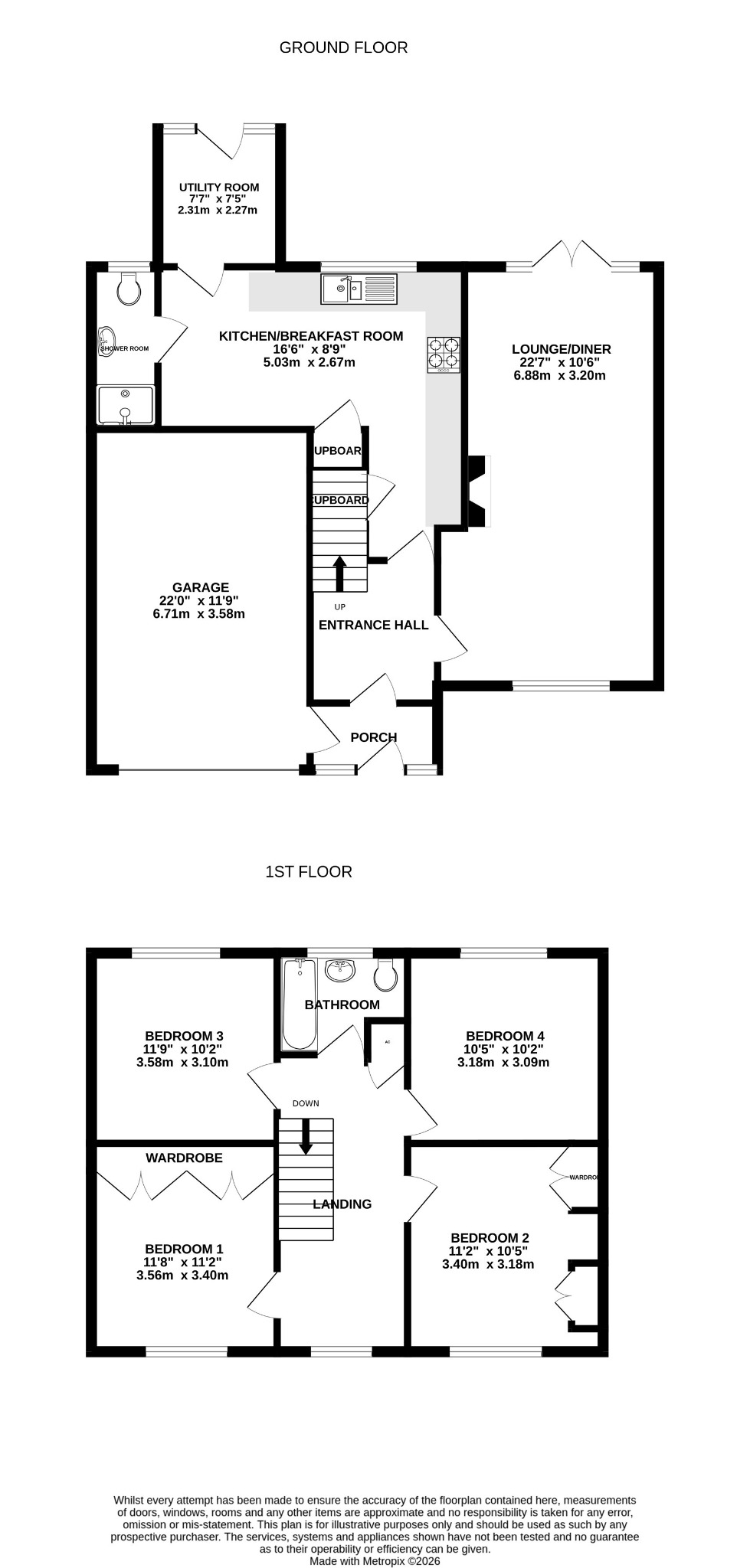
PORCH:
Door into garage. Door into:
ENTRANCE HALL:
Stairs to first floor. Radiator.
LOUNGE/DINER22' 7" (6.88m) x 10' 6" (3.20m)::
Windows to front and rear. Brick fireplace.
Two radiators. Door to garden.
KITCHEN/BREAKFAST ROOM
16' 6" (5.03m) x 8' 9" (2.67m)::
Window to rear. Range of wall and base units with work surfaces over. One and a half bowl sink unit with mixer tap. Tiled splashbacks. 4 ring gas hob with extractor over. Built in eye level electric oven. Built in microwave. Integrated dishwasher and fridge freezer. Built in storage cupboards. Wall mounted gas boiler. Door into:
UTILITY ROOM
7' 7" (2.31m) x 7' 5" (2.26m)::
Window and door to rear. Space and plumbing for washing machine.
SHOWER ROOM:
Window to rear. Low level WC. Wash hand basin. Walk-in shower with glazed sliding door.
LANDING:
Window to front. Access to loft space. Built in airing cupboard housing hot water tank.
BEDROOM 1
11' 8" (3.56m) x 11' 2" (3.40m)::
Window to front. Range of fitted wardrobes. Radiator.
BEDROOM 2
11' 2" (3.40m) x 10' 5" (3.17m)::
Window to front. Range of fitted wardrobes. Radiator.
BEDROOM 3
11' 9" (3.58m) x 10' 2" (3.10m)::
Window to rear. Radiator.
BEDROOM 4
10' 5" (3.17m) x 10' 2" (3.10m)::
Window to rear. Radiator.
BATHROOM:
Window to rear. Low level WC. Pedestal wash hand basin. Panelled bath with shower over. Radiator.
OUTSIDE:
Resin driveway offering ample parking. Shrubs and bushes to borders.
INTEGRAL GARAGE:
Up and over door to front. Power and light connected. Door into porch.
REAR GARDEN:
A feature of this property. Fenced to boundaries. Mainly laid to lawn. Timber summerhouse. Timber garden shed. Greenhouse. Paved patio area. Pedestrian side access.
COUNCIL TAX :
New Forest District Council, Band E, Charge Payable £3000.73 p.a. 2026/2027
Read full description
Show less