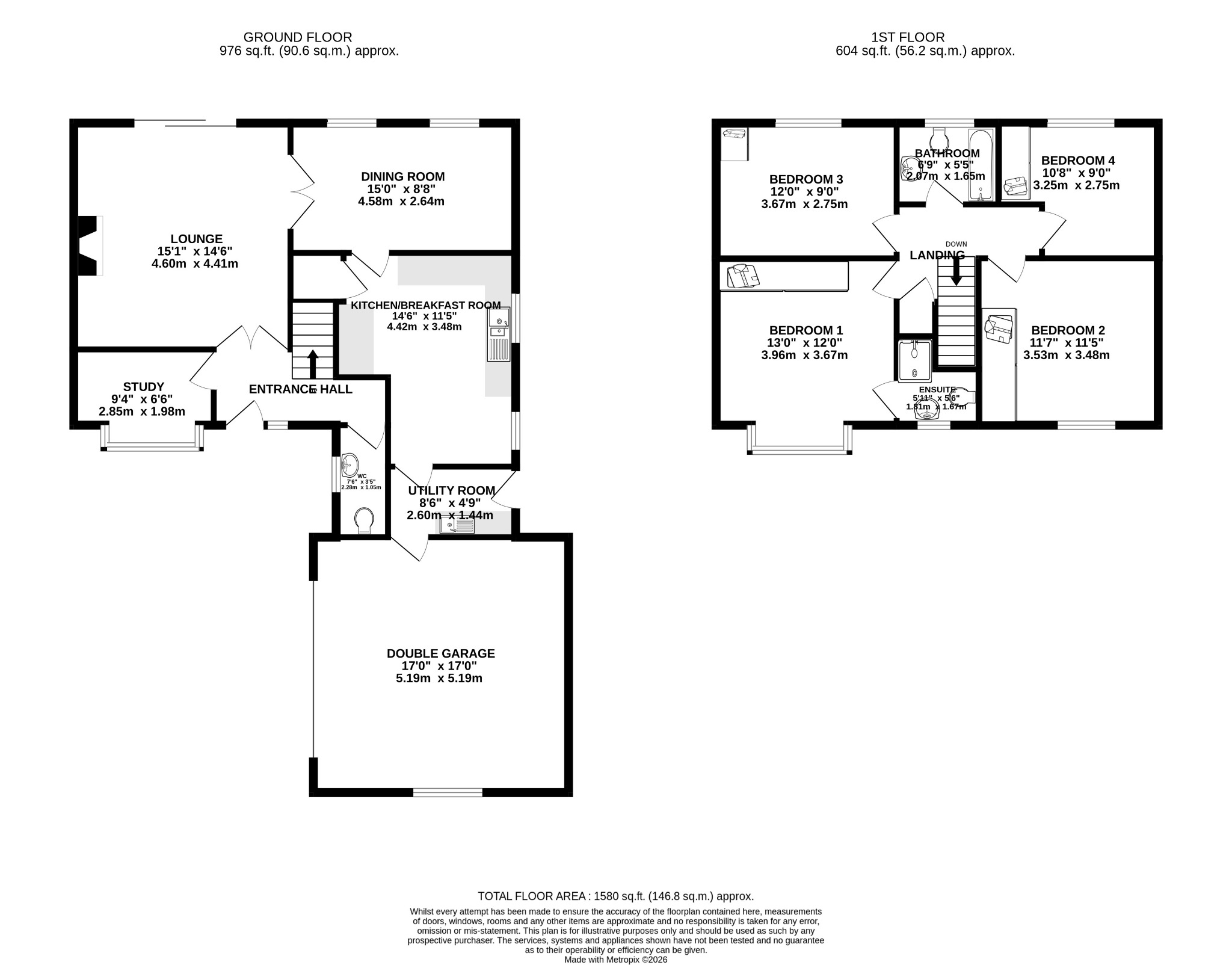
DESCRIPTION NO FORWARD CHAIN. A well-proportioned four bedroom family home positioned on the edge of a highly regarded development just to the north of Fareham town centre and within walking distance of Fareham Leisure Centre, Park Lane Recreation Ground and Harrison Primary School, which is curriculum linked to Cams Hill Secondary School. The property's accommodation briefly comprises of an entrance hall, cloakroom, a lounge with double doors opening through to a dining room, kitchen/breakfast room, utility room and a study completes the ground floor accommodation. On the first floor, four bedrooms can be found.
The principal bedroom having its own en-suite shower room, whilst the remaining bedrooms share the family bathroom. The property benefits from double glazing and is warmed by gas central heating. The property enjoys a wonderful position within the development and overlooks the attractive lawned grounds and a wooded backdrop. As sole agents we would highly recommend an early inspection.
DOUBLE GLAZED DOOR TO:
ENTRANCE HALL
Stairs to first floor. Radiator. Coved and textured ceiling. Doors to:
CLOAKROOM
Double glazed window to side elevation. Low level close coupled WC. Radiator. Wash hand basin. Splashback tiling. Extractor fan.
STUDY
Double glazed bay window to front elevation. Radiator. Coved and textured ceiling.
LOUNGE
Double glazed patio doors to garden. Coved and textured ceiling. Feature fireplace. Inset coal effect gas fire. Radiator. Double doors to:
DINING ROOM
Two double glazed windows to rear elevation. Radiator. Coved and textured ceiling. Door to:
KITCHEN/BREAKFAST ROOM
Two double glazed windows to side elevation. Kitchen comprising; one and a half bowl single drainer sink unit with cupboard under. Further range of wall and base level units with roll edge work surfaces over and splashback tiling. Built-in four ring ceramic hob with cooker hood over. Built-in double oven and grill with cupboards under and over. Built-in dishwasher and fridge/freezer. Space for breakfast table. Radiator. Door to:
UTILITY ROOM
Double glazed door to outside. Single drainer sink unit with cupboard under. Plumbing for washing machine and space for tumble dryer with work surface over with inset single drainer sink unit. Wall mounted gas boiler. Door to double garage.
FIRST FLOOR
LANDING
Access to loft. Airing cupboard housing hot water cylinder. Doors to:
BEDROOM ONE
Double glazed bay window to front elevation. Range of built-in bedroom furniture including wardrobes and over bed storage cupboards. Door to:
EN-SUITE
Double glazed window to front elevation. Pedestal wash hand basin. Low level close coupled WC. Tiled shower cubicle. Extractor fan. Radiator.
BEDROOM TWO
Double glazed window to rear elevation. Built-in wardrobe. Radiator.
BEDROOM THREE
Double glazed window to front elevation. Built-in wardrobe. Radiator.
BEDROOM FOUR
Double glazed window to rear elevation. Radiator.
BATHROOM
Double glazed window to rear elevation. Low level close coupled WC. Pedestal wash hand basin. Panel enclosed bath with shower unit over. Part tiled walls. Radiator. Extractor fan.
OUTSIDE
Off-road parking is available to the driveway, which in turn provides access to the:
DOUBLE GARAGE: Accessible via double up and over door with power and light and storage within the loft space.
The rear garden is a particular feature of this property and has a patio area adjacent to the property. A well-tended lawn stretches away from the patio with attractive, well-stocked flower and shrub borders. There is a further patio area towards the end of the garden with a timber summerhouse.
AGENTS NOTE
There is an estate management charge payable every 6 months which covers the maintenance of communal areas. The amount payable for the period 01/01/2026 - 30/06/2026 is £205.96.
There is also a fixed rent charge of £5 payable in advance.
COUNCIL TAX
Fareham Borough Council. Tax Band F. Payable 2026/2027. £3,279.68.
Read full description
Show less