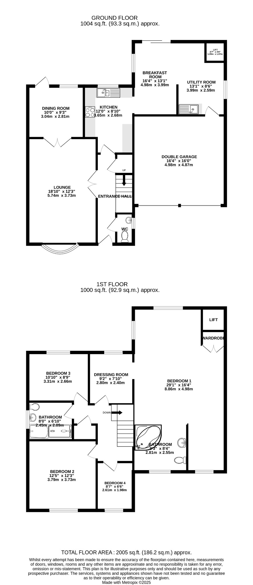
DESCRIPTION First time offered, a substantial Georgian style four/five bedroom detached house in a quiet position in the sought after village of Wallington. This property offers level access and would suit a larger family with live-in relatives. It has been extended on both the ground and first floor and comprises; entrance hall, cloakroom, lounge, separate dining room, a kitchen which flows through to a breakfast room and utility room with internal access to garage.
On the first floor, four/five bedrooms can be found, the principal bedroom measures 29’ x 16’1” (ideal to split into two rooms), has a built-in wardrobe and a dressing room along with its own spacious open plan en-suite jacuzzi bathroom with walk-in shower. There are three remaining first floor bedrooms and a re-fitted bathroom. The property is majority double glazed and is warmed by gas central heating with additional balanced-flue gas fire in the lounge. There is off-road parking for several vehicles on a block paved and gravel driveway, an integral DOUBLE GARAGE and generous landscaped front garden and rear garden backing onto woodland. As sole agents we would highly recommend an early inspection to appreciate the size of accommodation on offer.
PART GLAZED DOOR TO:
ENTRANCE HALL
Stairs to first floor. Understairs storage cupboard. Radiator. Doors to:
CLOAKROOM
Double glazed window to side elevation. Low level close coupled WC. Wash hand basin. Heated chrome towel rail. Wall mounted storage cupboard.
LOUNGE
Bow window to front elevation. Feature exposed brick wall with 'Michelmersh' handmade bricks with inset coal effect gas fire. Coved and textured ceiling. Two radiators. Glazed double doors to:
DINING ROOM
Double glazed window to rear elevation. Feature wall with exposed 'Michelmersh' bricks. Part glazed door to garden. Radiator.
KITCHEN
Double glazed window to rear elevation. One and a half bowl single drainer sink unit with cupboard under. Further range of wall and base level units with roll edge work surfaces over and splashback tiling. Built-in four ring induction hob with cooker hood over. Built-in microwave and oven. Built-in and concealed dishwasher and fridge/freezer. Tiled flooring. Coved and textured ceiling. Archway to:
BREAKFAST ROOM
Double glazed patio doors to rear garden and double glazed window overlooking the patio. Radiator. Coved and textured ceiling. Open plan to:
UTILITY ROOM
Double glazed window to side elevation. Radiator. Double bowl sink unit set into work surface with storage beneath. Further wall mounted units. Plumbing for washing machine. Door to garage. Wall mounted boiler serving hot water and heating to the extension. Access to vertical lift to first floor (currently not in working use).
FIRST FLOOR
LANDING
Access to loft space. Airing cupboard housing hot water cylinder and boiler providing hot water and heating for the original house. Doors to:
DRESSING ROOM
Double glazed window to rear elevation. Radiator. Archway to:
PRINCIPAL BEDROOM (IDEAL TO SPLIT INTO TWO ROOMS)
Triple aspect with double glazed windows to front, rear and side elevation. Open plan corner en-suite with corner bath, shower unit, wash hand basin and low level WC. Corner vertical lift to ground floor (currently not in working use) and built-in storage cupboard.
BEDROOM TWO
Double glazed window to front elevation. Radiator.
BEDROOM THREE
Double glazed window to rear elevation. Radiator.
BEDROOM FOUR
Double glazed window to front elevation. Radiator.
BATHROOM
Double glazed window to side elevation. Re-fitted bathroom with walk-in shower cubicle. Hip bath. Vanity unit with table top wash hand basin and storage beneath. Low level close coupled WC. Radiator. Tiled flooring with underfloor heating. Heated mirror with light.
OUTSIDE
Off-road parking is available to the block paved driveway for several cars, which provides access to:
DOUBLE GARAGE: Accessible via twin up and over doors.
The rear garden has a large patio area adjacent to the property with stone balustrading dividing the remaining part of the garden, which can be found mainly laid to lawn and is on two tiers with adjoining paths. There are well-stocked flower and shrub borders and gated side pedestrian access to both sides.
COUNCIL TAX
Fareham Borough Council. Tax Band F. Payable 2025/2026. £3,126.58.
Read full description
Show less