This quite superb detached property has a traditional period feel and has been meticulously renovated to an exceptional standard. Many of the original period features have been retained including ornate cornicing, picture rails, high skirting boards and exposed original floorboards. These features are complimented by more contemporary fittings and a soft neutral decor throughout with the overall effect producing an elegant and comfortable home with ample space for a family.
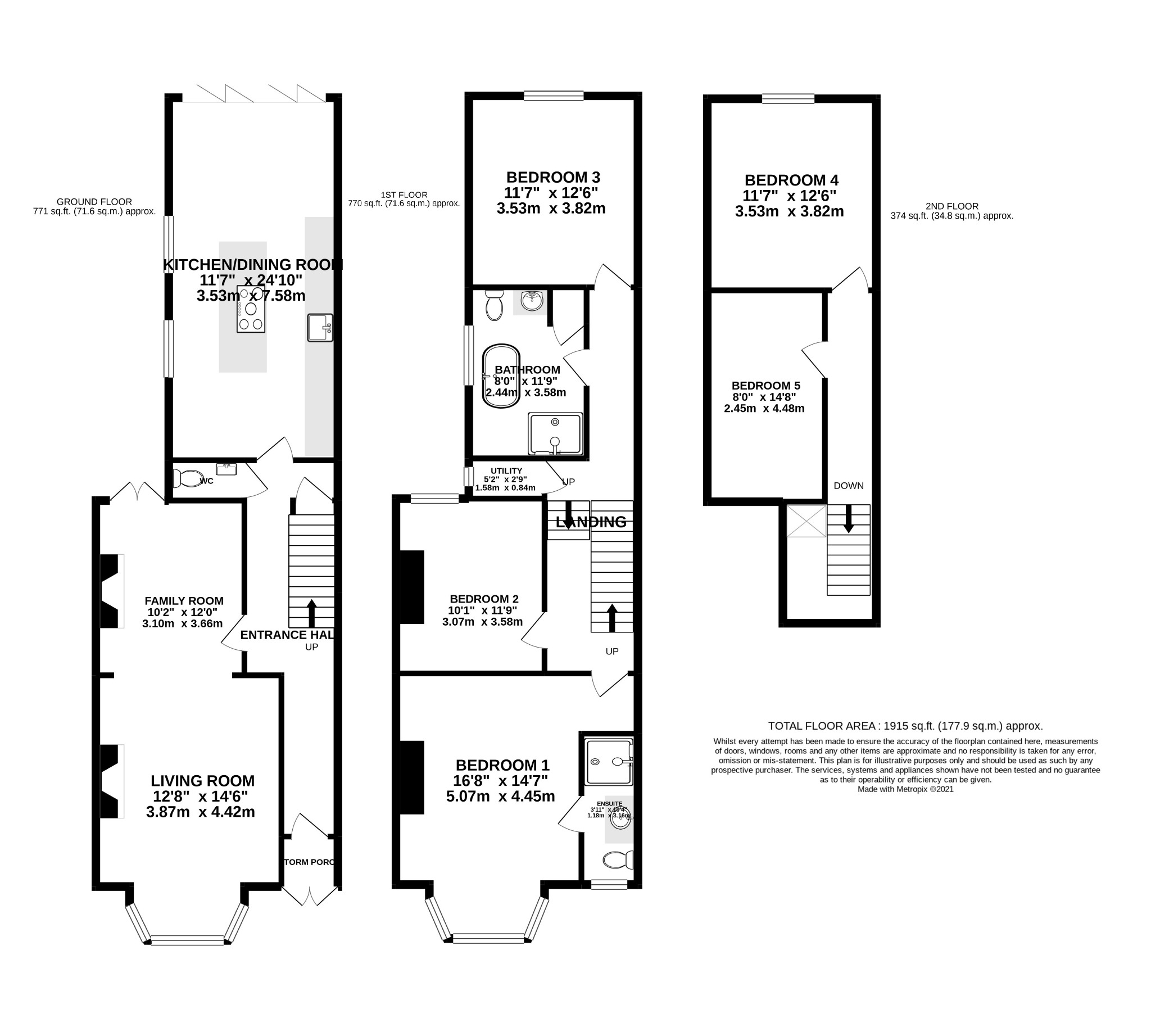
With almost 2,000 sq ft of space, the internal accommodation comprises; Storm porch leading to a grand entrance hall, cloakroom, a cosy living room with double glazed sash bay windows with fitted shutters and a wood burning stove, open to a family room with period fire place and access to the garden. At the rear of the property an exquisite kitchen/dining room with a high-end kitchen with Quartz worktops, a long contrasting island/breakfast bar, good quality fitted appliances, a wood finish pantry cupboard, and a spacious dining area in front of the bi-folding doors which lead onto the rear garden. The basement is an undecorated cellar, suitable for storage only. On the first floor, an elegant master bedroom with a luxorious en-suite shower room, two further double bedrooms, one currently used as a study, and an opulent bathroom with freestanding bath tub, a walk-in shower cubicle and marble-topped sink unit. On the top floor, two further double bedrooms.The west facing rear garden is a private space with tall boundary walls, a patio from the rear of the property and a sizeable lawn. As part of the extensive renovation the property was re-wired, re-plumbed and re-plastered, the roof structure was improved, damp and timber treatment completed along with replacement of the main fixtures, fittings, decor and floor coverings. Overall this outstanding property will make for an excellent family home for the most discerning of purchasers.
STORM PORCH:
With internal door to:
ENTRANCE HALL:
Smooth ceiling, ornate cornicing, decorative plaster arch, inset spotlights, high skirting boards, column radiator, stairs rising to first floor landing with carpet runner and stair rods. Exposed floorboards.
WC:
Smooth ceiling, inset spotlights, double glazed obscured window, low level WC, wash hand basin with cupboards beneath, radiator, decorative wallpaper and vinyl tiled floors.
LIVING ROOM:
Smooth ceiling, ornate cornicing, picture rails, high skirting boards, column radiator, wood burning stove, double glazed sash bay windows with shutters fitted, exposed floorboards and large opening to;
FAMILY ROOM:
Smooth ceiling, ornate cornicing, picture rails, double glaze double doors onto rear garden, decorative marble fireplace, column radiator and exposed floorboards.
KITCHEN/DINING ROOM:
Smooth ceiling, inset spotlights, pendant lights over island unit, bi-folding doors onto rear garden, two double glazed ash windows to side return, a modern range of wall and base mounted units with quartz worktops over, inset sink and drainer. Island/breakfast bar unit with contrasting units, integrated electric induction hob with counter level extractor fan, two integrated high level electric ovens and warming tray. Integrated dishwasher, integrated fridge, integrated freezer, pantry cupboard and porcelain tiles with underfloor heating.
FIRST FLOOR LANDING:
Smooth ceiling, stairs rising to second floor landing, two radiators and fitted carpet.
BEDROOM 1:
Smooth ceiling, picture rails, high skirting boards, double glazed sash windows with shutters fitted, column radiator and exposed floorboards.
EN-SUITE:
Smooth ceiling, extractor fan, double glazed obscured sash window, tiled shower cubicle, wash hand basin set in antique drawer unit, low level WC, column radiator, part tiled walls, tiled flooring and under floor heating.
BEDROOM 2:
Smooth ceiling, loft hatch access, picture rails, high skirting boards, double glaze rear aspect window, radiator and fitted carpet.
UTILITY:
Smooth ceiling, inset spotlights, double glazed obscured window, space and plumbing for washing machine and tumble dryer. Vinyl tiled floor.
BATHROOM:
Smooth ceiling, inset spotlights, extractor fan, double glaze obscured window, large shower cubicle, free standing clawfoot bath tub, low level WCX, wash hand basin with marble top and drawer beneath. Airing cupboard containing pressurised water tank, part wood panelled walls, decorative tiled floor.
BEDOROM 3:
Smooth ceiling, double glazed rear aspect window, radiator and fitted carpet.
SECOND FLOOR LANDING:
Smooth ceiling, double glazed Velux roof window, inset spotlights and fitted carpet.
BEDROOM 4:
Smooth ceiling, double glazed rear aspect window, radiator and fitted carpet.
BEDROOM 5:
Smooth ceiling, two double glazed obscured windows, radiator and fitted carpet.
OUTSIDE:
The rear garden has tall brick wall boundary walls, porcelain tiled patio area from rear of the property and mostly laid to lawn.
COUNCIL TAX:
Portsmouth City Council TAX BAND E £2,665.57 for the year 2025/2026.
Read full description
Show less