This well presented 5 bedroom detached family home is situated in a favoured location in the catchment for Wildground School. The property has been updated and extended by the current owners and benefits from a downstairs bedroom and shower room, UPVC double glazing, gas central heating, garden and garage. Offered with NO CHAIN an internal viewing is highly recommended.
Composite front door into:
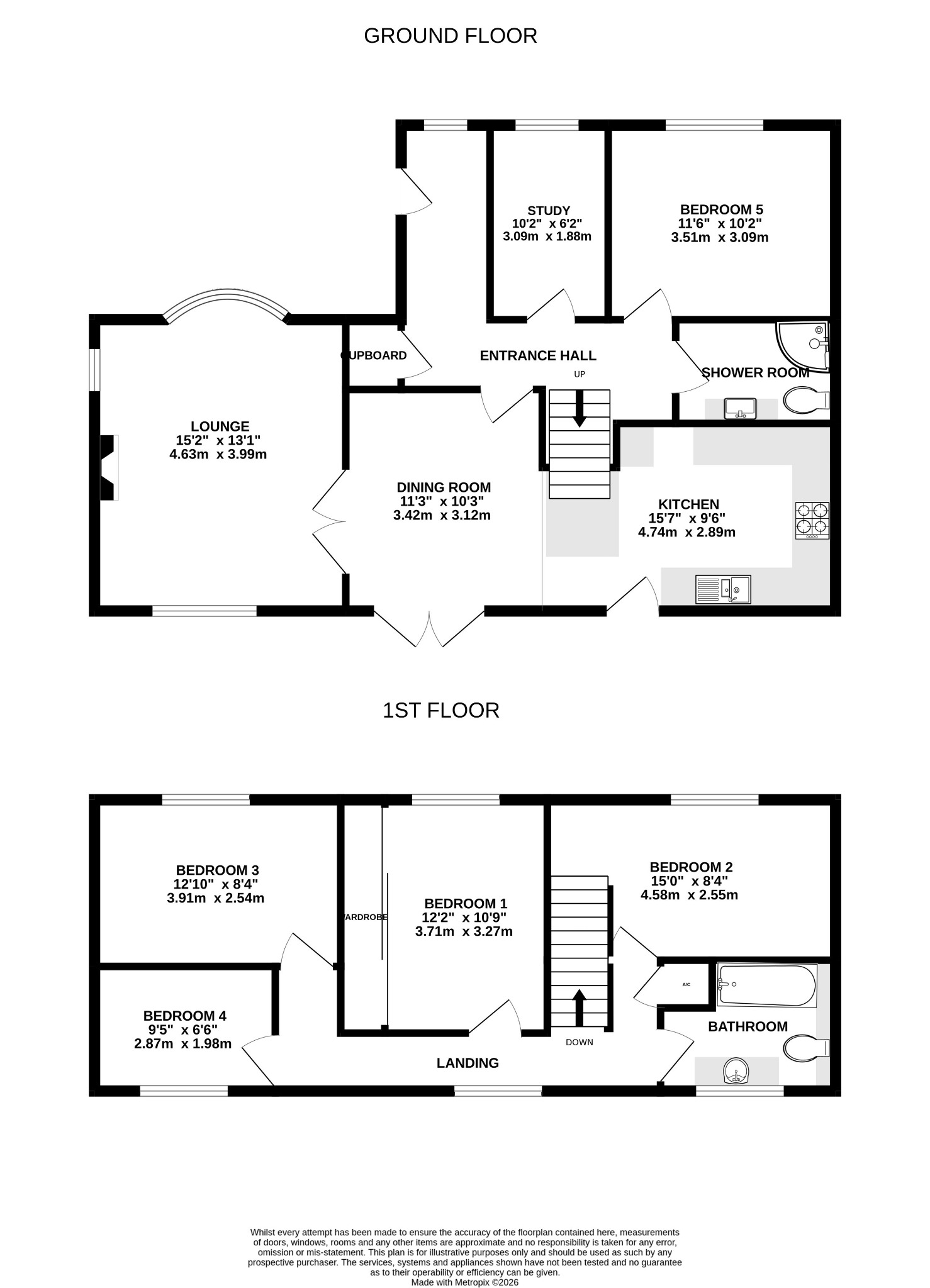
ENTRANCE HALLWindow to front. Stairs to first floor. Radiator.
SHOWER ROOMObscure glazed window to front. Corner shower cubicle. Low level WC with concealed flush. Inset wash hand basin with cupboard below.
Complementary tiling to principle areas. Heated towel rail.
BEDROOM FIVE (Ground Floor)
11' 6" (3.51m) x 10' 2" (3.10m)
Window to front. Radiator.
STUDY
10' 2" (3.10m) x 6' 2" (1.88m)
Window to front. Television point. Radiator
KITCHEN
15' 7" (4.75m) x 9' 6" (2.90m)
Window to rear. Range of wall and base units with working surfaces over. Tiled splashbacks. One and a half bowl steel sink unit. Integrated dishwasher. Space for American fridge/freezer. Space and plumbing for washing machine. Electrolux double oven. 4 ring gas hob with extractor over. Cupboard housing gas boiler. Linoleum flooring. Door to garden. Opening into:
DINING ROOM
11' 3" (3.43m) x 10' 3" (3.12m):
Double doors to garden. Vertical radiator. Engineered oak flooring. Double doors to:
LOUNGE
15' 2" (4.62m) x 13' 1" (3.99m):
Window to front, rear and side. Feature fireplace. Television point. Engineered oak flooring. Radiator.
FIRST FLOOR LANDING
Window to rear. Access to part boarded loft space. Built-in airing cupboard with hot water tank and shelving.
BEDROOM ONE
12' 2" (3.71m) x 10' 9" (3.28m) into wardrobes:
Window to front. Built-in mirror fronted wardrobes. Radiator.
BEDROOM TWO
15' (4.57m) x 8' 4" (2.54m):
Window to front. Radiator.
BEDROOM THREE
12' 10" (3.91m) x 8' 4" (2.54m):
Window to front. Radiator.
BEDROOM FOUR
9' 5" (2.87m) x 6' 6" (1.98m):
Window to rear. Radiator.
BATHROOM
Obscure glazed window to rear. Refitted with a panelled bath with shower over. Low level WC with concealed flush. Inset wash hand basin with cupboard below. Complementary tiling. Radiator.
OUTSIDE
The front garden is bounded to mature hedging to the front. Driveway offering off road parking and leading to:-
GARAGE
Up and over door to front. Personal door to rear. Power and light connected.
REAR GARDEN
Fenced to boundaries. Tiered with decorative pathway and bushes, shrubs and trees. Large decked seating area. Timber summerhouse. Pedestrian side access.
COUNCIL TAX
New Forest District Council
Tax Band: E
Charge payable £3,000.73 p.a. 2026/2027
Read full description
Show less