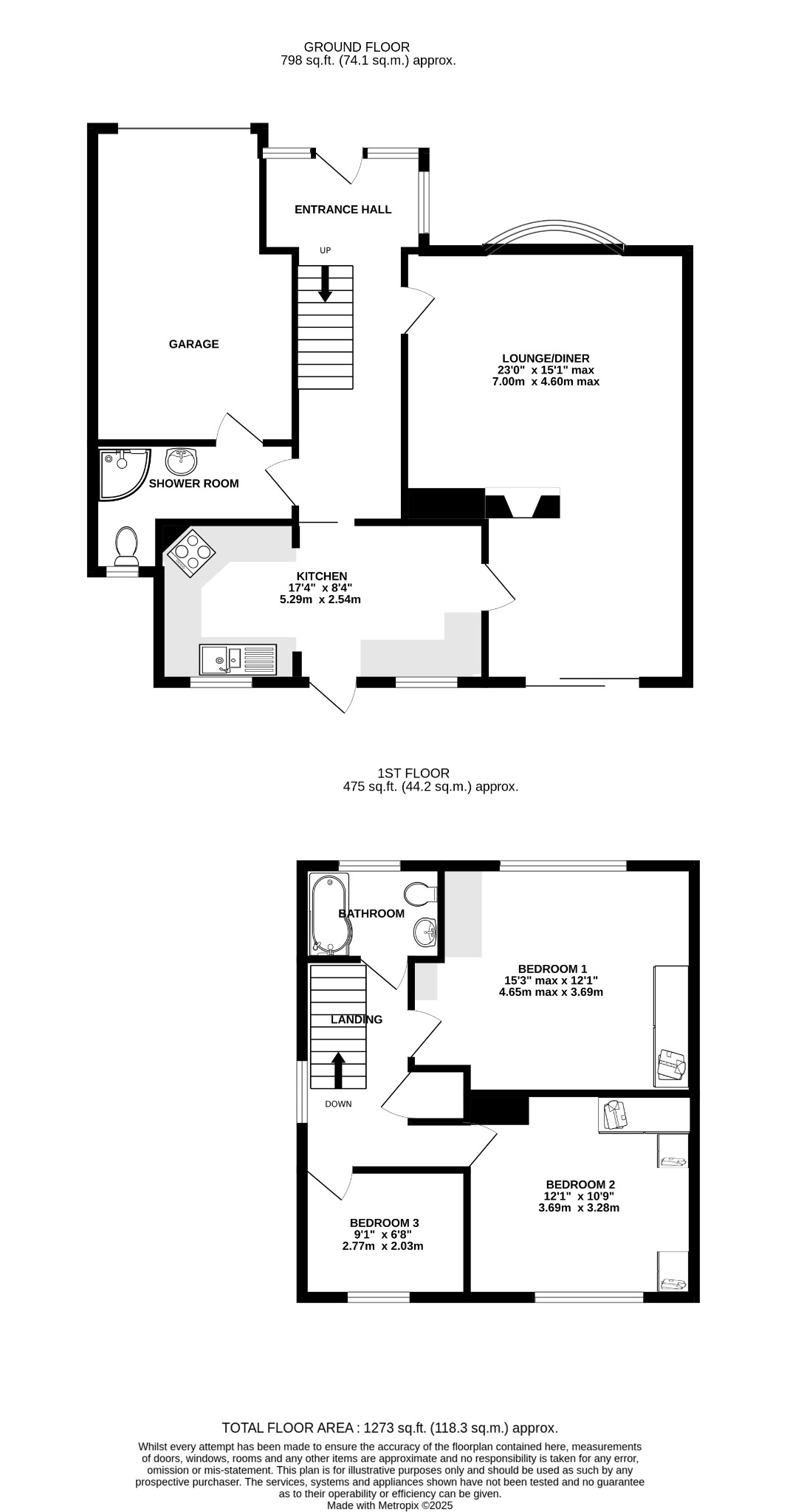
DESCRIPTIONNO FORWARD CHAIN. A well-presented three bedroom detached family home located within the popular and sought after Uplands development. The property, which has been extended to provide a larger entrance hall and kitchen, briefly comprises; entrance hall, dual aspect lounge/diner and fitted kitchen overlooking the rear garden. A shower room and WC complete the ground floor accommodation. On the first floor, three bedrooms can be found sharing the three piece family bathroom. The property benefits from double glazing and is warmed by gas central heating.
There is off road parking for several cars to the block paved driveway, an attached GARAGE and garden which measures in excess of 60ft. As sole agents, we would highly recommend an early inspection.
DOUBLE GLAZED COMPOSITE FRONT DOOR
Leading to:
ENTRANCE HALL
Which has been extended to the front providing a larger entrance hall and has a feature glazed window to lounge with glazed door. Staircase to first floor and radiator.
LOUNGE/DINER
Dual aspect room with double glazed bow window to front elevation and double glazed patio doors to garden. Chimney breast with log effect 'Dimplex' electric fire. Two radiators. Inset ceiling spotlights. Coved and skimmed ceiling. Door to kitchen.
KITCHEN
Two double glazed windows to rear elevation and double glazed door to garden. Kitchen comprising white single drainer one and a half bowl sink unit with cupboard under. Further range of wall and base level units with work surfaces over. Built-in four ring gas hob with cooker hood over. Plumbing for washing machine and dishwasher. Built-in double oven and grill with cupboards under and over. Recess for fridge/freezer. Breakfast bar. Coved and skimmed ceiling. Cupboard housing wall mounted gas boiler.
SHOWER ROOM
Double glazed window to rear elevation. Low level close coupled WC. Quadrant shower cubicle. Vanity unit with wash hand basin and storage beneath with fitted mirror and lighting. Radiator. Door to garage.
FIRST FLOOR
LANDING
Double glazed window to side elevation. Access to loft space. Linen cupboard. Doors to:
BEDROOM ONE
Double glazed window to front elevation. Radiator. Coved and textured ceiling. Built-in wardrobes, chests of drawers and bedside cabinets.
BEDROOM TWO
Double glazed window to rear elevation. Built-in wardrobes. Radiator. Coved and textured ceiling.
BEDROOM THREE
Double glazed window to rear elevation. Radiator.
BATHROOM
Double glazed window to front elevation. Shower bath with wall mounted shower unit and shower screen. Low level WC. Vanity unit with wash hand basin and storage beneath. Radiator. Tiled walls. Extractor fan.
OUTSIDE
Off road parking is available to the block paved driveway to the front of the property which in turn provides access to:
GARAGE. Accessible via up and over door. Power and light.
The generous size rear garden which measures in excess of 60ft has a large patio area adjacent to the house. The remainder of the garden can be found mainly laid to lawn with flower and shrub borders. The garden is fence and conifer enclosed, has a garden shed and gated side pedestrian access.
COUNCIL TAX
Fareham Borough Council. Tax Band E. Payable 2025/2026. £2,645.56.
Read full description
Show less