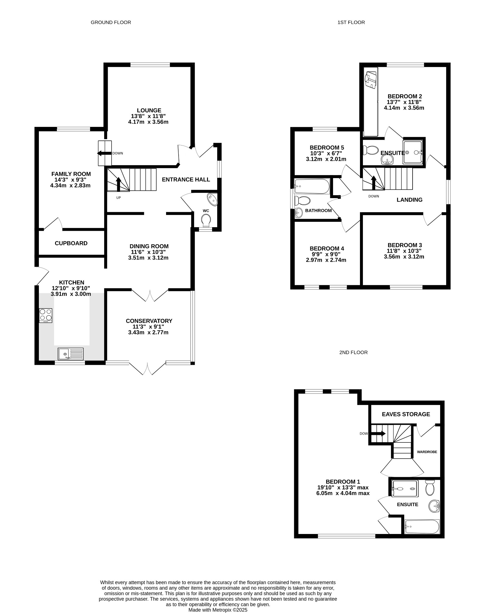
DESCRIPTIONGUIDE PRICE £475,000-£500,000. A much improved and extended five bedroom detached family home located north of Fareham town centre. The property has been improved by its present owner by converting the roof space into a fabulous principal bedroom with far-reaching views to the north. The property's accommodation briefly comprises; entrance hall, lounge which leads through to a family room, separate dining room, double glazed conservatory and fitted kitchen. A cloakroom completes the ground floor accommodation.
On the first floor, four bedrooms can be found as well as an en-suite shower room and family bathroom. Whilst on the second floor, a stunning principal bedroom which has two 'Velux' balcony windows providing wonderful views and a large dormer window to the rear providing ample natural light. The bedroom has a four piece en-suite and walk-in wardrobe. Outside, there is ample driveway parking for numerous vehicles to the front of the property and an enclosed rear garden.
DOUBLE GLAZED DOOR
Leading to:
ENTRANCE HALL
Double glazed window to side elevation. Radiator. Laminate flooring which flows through to the dining room. Radiator. Doors to:
CLOAKROOM
Double glazed window to rear elevation. Low level WC with enclosed cistern. Corner wash hand basin. Heated chrome towel rail. Tiled walls and floor. Extractor fan.
LOUNGE
Double glazed window to front elevation. Radiator. Feature fireplace with electric fire. Opening with steps down to family room.
FAMILY ROOM
Double glazed window to front elevation. Radiator. Large walk-in storage cupboard where gas boiler can be found. High-level storage cupboards. Inset ceiling spotlights.
DINING ROOM
Double glazed French doors to conservatory. Radiator. Opening through to kitchen.
CONSERVATORY
Double glazed conservatory built on a dwarf brick wall. Double glazed French doors leading to garden. Radiator.
KITCHEN
Double glazed window to rear elevation and double glazed door to garden. Kitchen comprising stainless steel single drainer sink unit with cupboard under. Further range of wall and base level units with roll edge work surfaces over and splash back tiling. Built-in four ring gas hob with cooker hood over and electric oven beneath. Plumbing for washing machine and dishwasher. Built-in and concealed fridge/freezer. Tiled flooring. Radiator.
FIRST FLOOR
LANDING
Double glazed window to side elevation. Staircase to second floor. Doors to:
BEDROOM TWO
Double glazed window to front elevation. Range of built-in wardrobes. Radiator. Door to:
EN-SUITE
Low level close coupled WC. Pedestal wash hand basin. Tiled shower cubicle with wall mounted shower unit. Tiled walls and floor. Extractor fan.
BEDROOM THREE
Double glazed window to rear elevation. Radiator.
BEDROOM FOUR
Double glazed window to rear elevation. Radiator.
BEDROOM FIVE
Double glazed window to front elevation. Radiator.
BATHROOM
Double glazed window to side elevation. Panel enclosed bath with mixer taps and shower attachment over. Pedestal wash hand basin. Low level close coupled WC. Heated chrome towel rail. Tiled walls and floor. Extractor fan.
SECOND FLOOR
LANDING
Door to walk-in wardrobe and door to bedroom. 'Velux' window to front.
WALK-IN WARDROBE
With further access to eaves storage space.
BEDROOM ONE
Two double glazed 'Velux' balcony windows to front elevation providing far-reaching views, and double glazed dormer window to rear. Vertical radiator. Inset ceiling spotlights. Door to:
EN-SUITE
Double glazed window to rear elevation. Double-ended bath with central mixer taps. Walk-in double shower cubicle. Low level close coupled WC. Vanity unit with wash hand basin and storage beneath. Heated chrome towel rail. Tiled walls. Extractor fan.
OUTSIDE
There is ample driveway parking for numerous vehicles to the front of the property.
The rear garden has a patio area adjacent to the house. The remainder of the garden can be found mainly laid to lawn with raised flower and shrub borders. The garden also extends alongside the property which is mainly paved and makes an ideal storage area. The garden is fence enclosed, has an outside water tap and garden shed and gated side pedestrian access.
COUNCIL TAX
Fareham Borough Council. Tax Band E. Payable 2025/2026. £2,645.56.
Read full description
Show less