Part Exchange Considered. This beautifully presented 4 bedroom detached bungalow is set in a desirable corner position close to the New Forest and Lepe Beach. The property offers versatile and light accommodation of 3/4 bedrooms, triple aspect lounge, well fitted kitchen/diner, utility room, two bathrooms and wrap around garden, garage/workshop. An internal viewing is highly recommended.
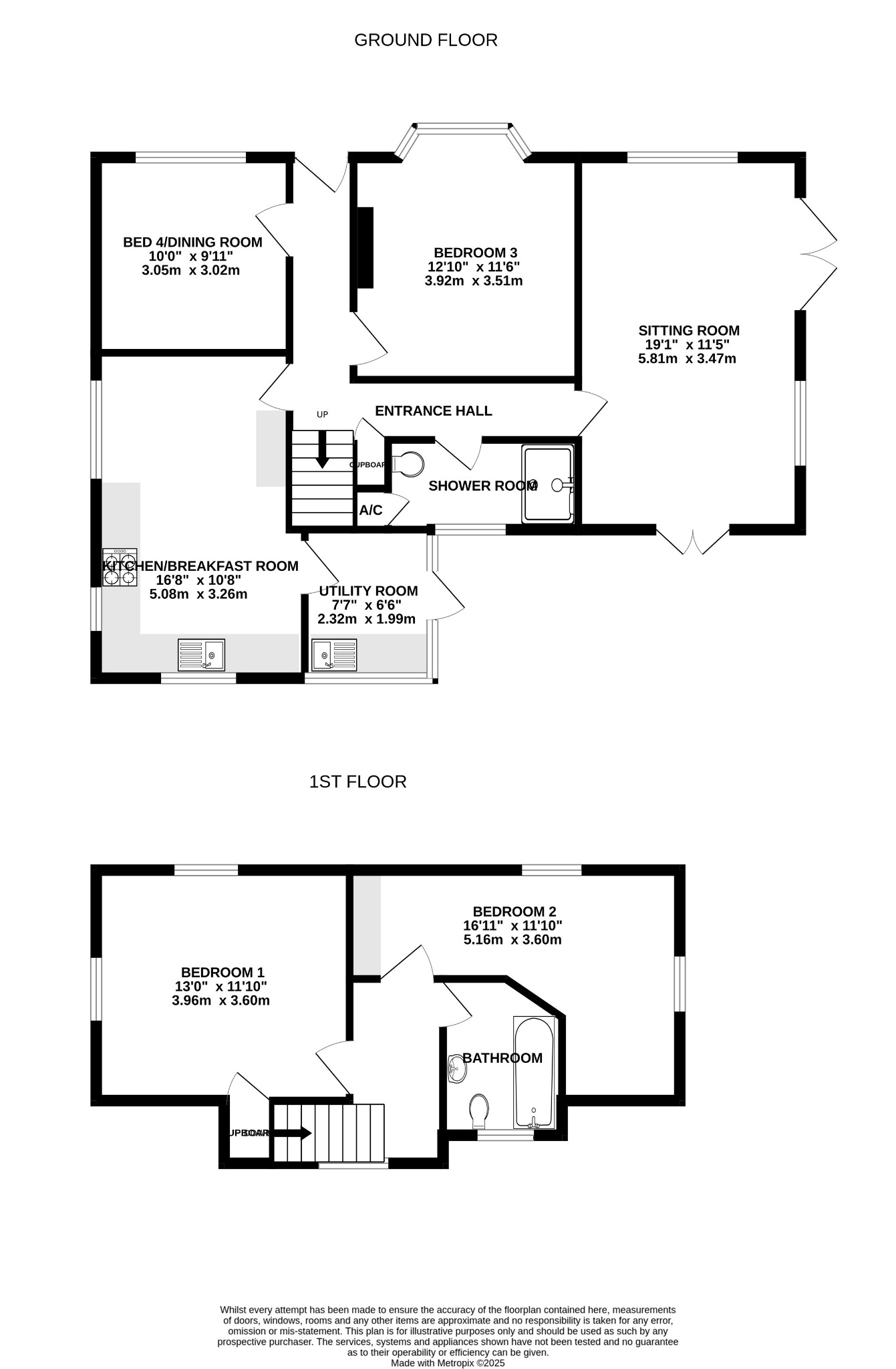
ENTRANCE HALLApproached via UPVC front door. Stairs to first floor with understairs storage cupboard. Radiator.
LOUNGE19' 1" (5.82m) x 11' 5" (3.48m)
A bright triple aspect room.
French doors to rear and side gardens. Radiator.
KITCHEN/BREAKFAST ROOM
16' 8" (5.08m) x 10' 8" (3.25m)
Windows to side and front. Refitted with a range of base and wall units with stone effect working surfaces over. Inset stainless steel sink unit with mixer tap. Space and plumbing for dishwasher. Space for fridge freezer. Space for cooker with extractor hood fitted over. Concrete tile effect laminate flooring. Door to:
GROUND FLOOR BEDROOM 3
12' 10" (3.91m) x 11' 6" (3.51m)
Walk in bay window to front. Fitted wardrobes. Radiator.
GROUND FLOOR BEDROOM 4/DINING ROOM
10' (3.05m) x 9' 11" (3.02m)
Window to front. Radiator.
UTILITY ROOM
7' 2" (2.18m) x 6' 6" (1.98m)
Door to garden. Window to side. Base unit with inset stainless steel sink unit and mixer tap and cupboard below. Space and plumbing for washing machine and tumble dryer.
GROUND FLOOR SHOWER ROOM
Window to side. Refitted with a shower cubicle with drying area. Wash hand basin with cupboard below. Close coupled WC. Wood effect flooring. Built in airing cupboard. Chrome heated towel radiator.
FIRST FLOOR LANDING
Window to side. Built in storage cupboard on stairs.
FIRST FLOOR BEDROOM 1
13' (3.96m) x 11' 10" (3.61m)
Two velux windows. Eaves storage cupboards and built in cupboards. Radiator.
FIRST FLOOR BEDROOM 2
16' 11" (5.16m) x 11' 10" (3.61m)
Two velux windows. Eaves storage cupboards and built in cupboards. Radiator.
FIRST FLOOR BATHROOM
Window to side. Refitted with a white suite of panelled bath with shower fitted over and glazed screen. Pedestal wash hand basin. Close coupled WC. Complementary tiling. Heated towel radiator.
OUTSIDE
A corner plot which wraps around the chalet bungalow. Fencing and mature hedging to boundaries. Laid to lawn with numerous established shrubs, tress and bushes. Raised vegetable plot. Large patio area. Separate Timber built garden shed. Pedestrian access onto Lepe Road. At the front of the property there is ample off road parking leading to double opening gates.
GARAGE/WORKSHOP
21' 4" (6.5m) x 10' 6" (3.2m)
With doors to front. Window to side. Personal door to rear. Power and light connected.
COUNCIL TAX
New Forest District Council, Band D, Charge Payable £2348.21 p.a. 2025/2026
Read full description
Show less