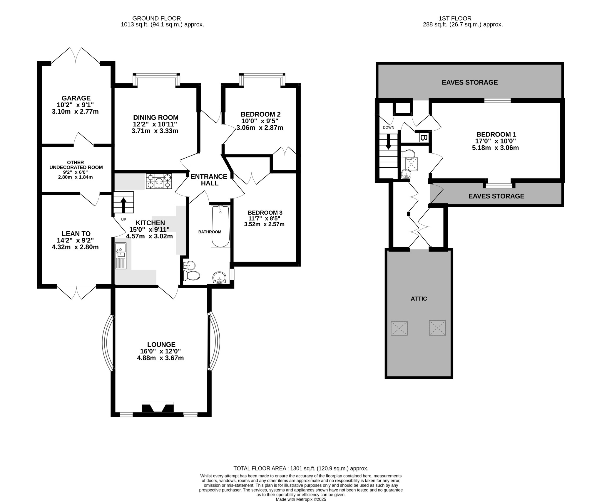
DESCRIPTION NO FORWARD CHAIN. A three bedroom semi-detached chalet style property offering flexible accommodation and requires general updating throughout. The property, which sits on a large garden plot does have the potential to greatly improve and extend further (subject to the usual planning permissions and building reg approval).
The internal accommodation briefly comprises of an entrance hall which leads to two ground floor bedrooms, a dining room and a bathroom, whilst the lounge is located off the kitchen, which has a fixed ladder style staircase leading from the kitchen to the first floor, where the principal bedroom, en-suite WC and further attic room can be found. Outside, there is off-road parking to the driveway, GARAGE, which has been shortened in length but could be opened to increase its size to a normal garage. To the rear of the property, there is a large garden which requires cultivation. As sole agents we would highly recommend an early inspection.
MULTI-PANED DOOR TO:
ENTRANCE HALL
Radiator. Doors to:
BEDROOM TWO
Double glazed bay window to front elevation. Built-in wardrobes and chest of drawers. Radiator.
BEDROOM THREE
Double glazed window to rear elevation. Built-in wardrobe and chest of drawers.
DINING ROOM
Double glazed bay window to front elevation. Radiator.
BATHROOM
Double glazed window to side elevation. Panel enclosed bath with shower unit and shower screen. Vanity unit with wash hand and storage beneath. Low level WC. Bidet. Tiled walls and flooring. Radiator.
KITCHEN
Double glazed window to side elevation. Stable door to lean-to. Range of wall and base level units with stainless steel one and a half bowl sink unit. Space for range style cooker. Steep staircase rising to first floor. Door to lounge.
LOUNGE
Two double glazed windows to rear elevation and two double glazed bow windows to side elevations. Feature brick fireplace. Two radiators.
LEAN-TO
French doors leading to garden. Door to garage, which has been subdivided with a stud wall to provide a shorter garage and a store room.
FIRST FLOOR
LANDING
Storage cupboard. Access to eaves storage space. Cupboard housing gas boiler. Door to:
BEDROOM ONE
Window to front elevation and window to rear elevation with bench seat. Radiator. Door to:
EN-SUITE WC
Low level WC. Wash hand basin. Access through to:
ATTIC ROOM
'Velux' windows to side elevations.
OUTSIDE
Off-road parking is available for several vehicles to the driveway to the front of the property.
Swing doors provide access to the GARAGE, which has been divided to provide a shortened garage and a store.
The substantial rear garden does require general cultivation throughout, but does contain a number of mature and specimen plants. There are numerous outhouses including a timber summerhouse.
COUNCIL TAX
Fareham Borough Council. Tax Band C. Payable 2025/2026. £1,924.04.
Read full description
Show less