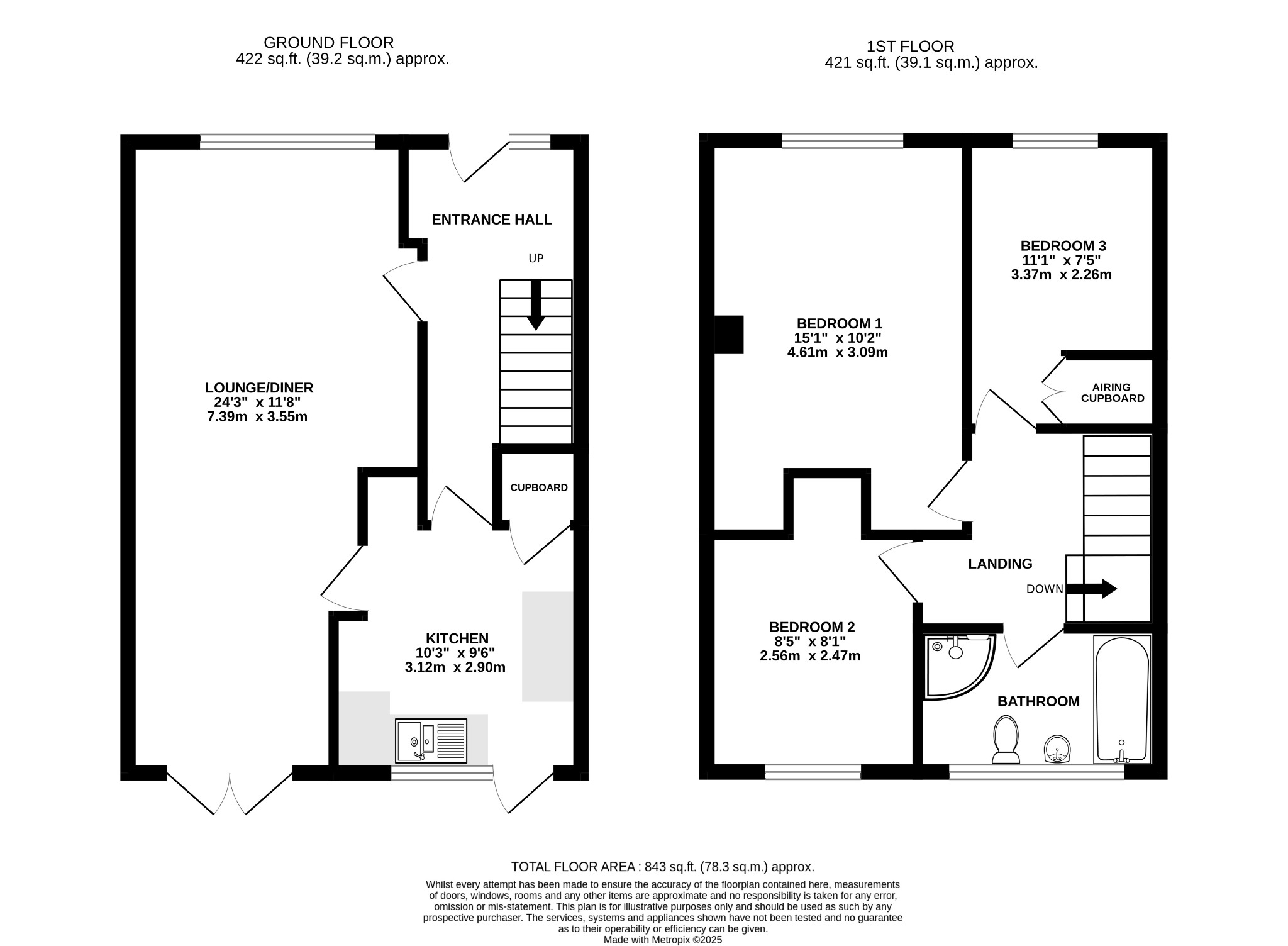
DESCRIPTION This well-presented three bedroom house is ideally located to the north-west of Fareham town centre close to local shops and schools. The well-proportioned internal accommodation comprises: entrance hallway, 24' lounge/diner with French doors onto the rear garden, kitchen and to the first floor, there are three bedrooms and a modern fitted four piece suite family bathroom. Outside, there is an enclosed landscaped rear garden and a GARAGE located to the rear of the property. Viewing is strongly recommended by the sole agents.
ENTRANCE HALLWAYDouble glazed obscure front door.
Tall double glazed obscure window to front aspect. Staircase rising to the first floor. Radiator. Wood effect laminate flooring.
KITCHEN
Double glazed window to the rear aspect and double glazed door leading to the rear garden. Matching wall and base units with inset stainless steel sink and drainer. Space for cooker, tallstanding fridge/freezer and washing machine. Understairs storage cupboard. Wood effect vinyl flooring.
LOUNGE/DINER
Double glazed window to front and double glazed French doors leading to the rear garden. Smooth and coved ceiling. Two radiators. Wood effect laminate flooring.
FIRST FLOOR
LANDING
Smooth ceiling. Doors to:
BEDROOM ONE
Double glazed window to front. Radiator.
BEDROOM TWO
Double glazed window to rear. Radiator.
BEDROOM THREE
Double glazed window to front. Airing cupboard. Radiator.
BATHROOM
Double glazed obscure window to rear aspect. Smooth ceiling. Modern four piece suite comprising bath with hand shower. Shower cubicle with electric shower (in need of replacement). Wash hand basin. Low level WC. Radiator. Tiled walls and flooring.
OUTSIDE
To the front of the property there is a laid to lawn front garden with shrubs and borders and a path leading to the front door with an open covered porch.
The landscaped rear garden has an initial raised patio area with a path leading to the gated rear pedestrian access. The remainder of the garden is artificial turfed. Outside tap. Timber shed.
GARAGE: Up and over garage door.
COUNCIL TAX
Fareham Borough Council. Tax Band C. Payable 2025/2026. £1,924.04.
Read full description
Show less