DRAFT DETAILS AWAITING VENDOR APPROVAL
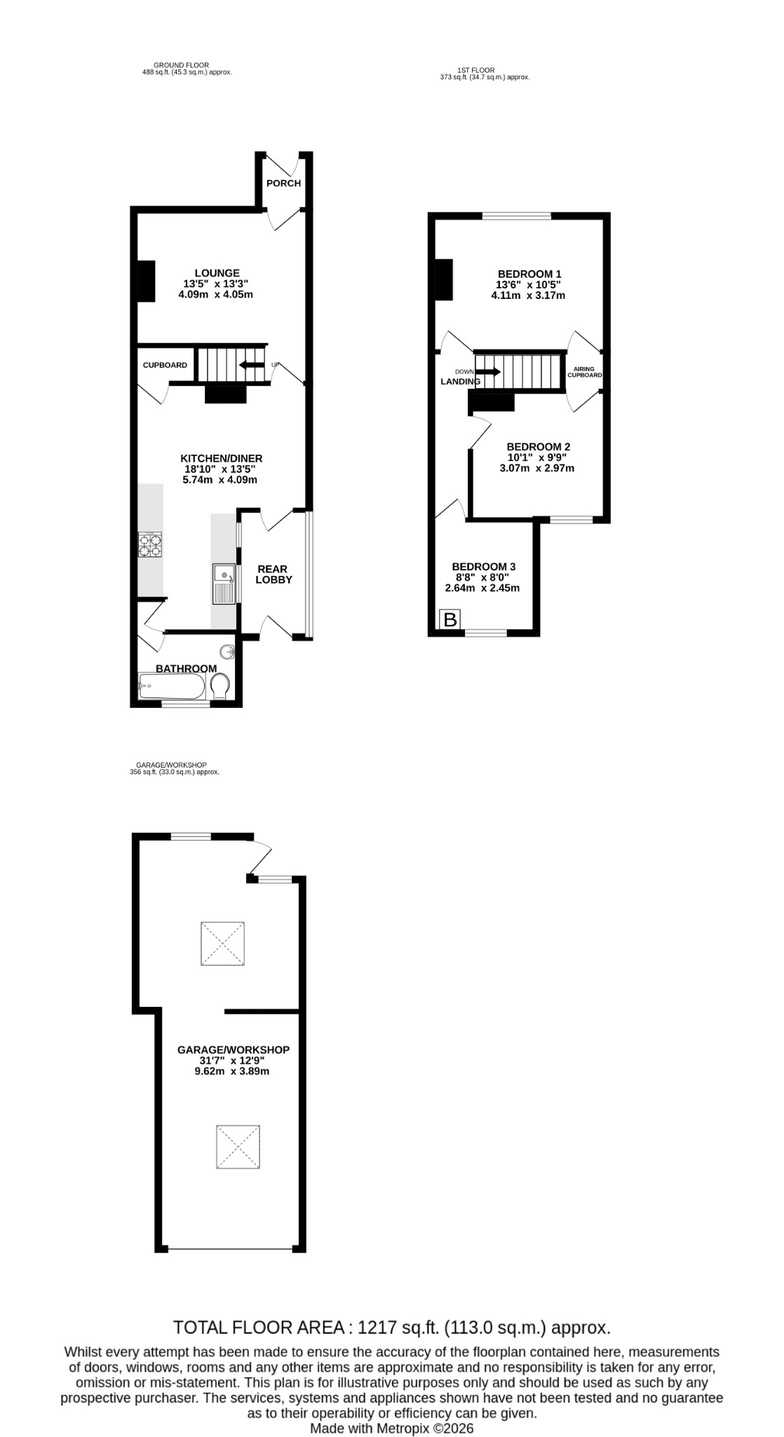
DESCRIPTION An excellent opportunity to purchase this three bedroom house located in the heart of Fareham town centre with the added advantage of a GARAGE/WORKSHOP located at the bottom of the garden. The internal accommodation comprises; porch, sitting room, open plan kitchen/diner, bathroom and a rear lobby. To the first floor, there are three bedrooms. Outside, there is a forecourt to the front and a sizeable rear garden with a GARAGE/WORKSHOP with access from Colenso Road. As sole agents we would highly recommend a viewing.
PORCHDouble glazed UPVC front door.
Double glazed window to the front and side aspect.
LOUNGE
Double glazed window to the front aspect. Smooth ceiling. Radiator. Wooden flooring. Staircase rising to the first floor.
KITCHEN/DINER
DINING AREA
Double glazed door to the rear lobby. Smooth ceiling. Understairs storage cupboard. Radiator. Wall and base units with contrasting worktops. Tile effect vinyl flooring. Opening to:
KITCHEN
Two double glazed windows to the side aspect. Smooth ceiling. Low level units with contrasting worktops. Inset stainless steel sink and drainer. Space for cooker, fridge/freezer, washing machine and an additional low level fridge or freezer. Continuation of the flooring from the dining area.
BATHROOM
Double glazed obscure window to the side aspect. Smooth ceiling. Bath with hand shower. Low level WC. Wash hand basin. Radiator. Part tiled walls. Tiled flooring.
REAR LOBBY
Double glazed door leading to the rear garden. Radiator.
FIRST FLOOR
LANDING
Loft access. Doors to:
BEDROOM ONE
Double glazed window to the front aspect. Smooth ceiling. Airing cupboard. Radiator.
BEDROOM TWO
Double glazed window to the rear aspect. Smooth ceiling. Radiator. Airing cupboard. Adjoining door to the airing cupboard from bedroom one.
BEDROOM THREE
Double glazed window to the rear aspect. Smooth ceiling. Wall mounted 'Worcester' boiler fitted January 2024. Radiator.
OUTSIDE
To the front of the property, there is a forecourt. The sizeable rear garden has an initial patio area with a timber shed with the majority of the rear garden being laid to lawn with a path leading to the garage and workshop. Mature shrubs and trees.
GARAGE: Electric roller door. Power and light. Door to:
WORKSHOP: Door leading to the rear garden. Two windows to the rear aspect. Power and light.
AGENTS NOTE
Please be aware there is a pedestrian right of way across the rear of the property, which is currently not in working use.
COUNCIL TAX
Fareham Borough Council. Tax Band B. Payable 2026/2027. £1,765.98.
Read full description
Show less