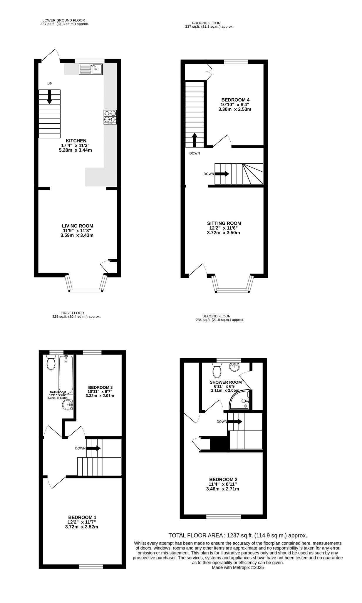
This four-bedroom townhouse is arranged over four floors and offers plenty of space throughout. On the lower ground floor you’ll find the open-plan kitchen and living space, complete with a bay window and doors leading out to the rear garden, which is shingled and decked with gated access for parking. The entrance level provides a separate sitting room with a feature fireplace and a fourth bedroom or home office, as well as the main entrance to the property. Upstairs on the second floor there are two further bedrooms and a modern family bathroom, while the top floor provides another double bedroom with its own shower room.
The home is well presented throughout and is located close to local amenities, schools, green spaces, and excellent transport links. This property makes a great choice for families or anyone looking for a spacious and versatile home.
KITCHEN/LIVING
Smooth and coved ceiling, UPVC double-glazed front aspect bay window, rear aspect UPVC double-glazed window and door to garden, cupboard housing boiler, a range of wall and base-mounted units with roll top work surfaces over, inset sink and drainer, gas hob and oven with extractor, space for appliances and tiled flooring.
SITTING ROOM
Smooth and coved ceiling, UPVC double-glazed window, feature fireplace, radiator and laminate flooring.
INNER HALL
Smooth ceiling, inset spotlights, stairs to upper and lower levels, radiator and fitted carpet.
BEDROOM FOUR
Smooth and coved ceiling, UPVC double-glazed window, cupboard housing boiler, radiator and laminate flooring.
LANDING
Smooth ceiling, stairs to upper and lower levels, fitted carpet and doors into;
BEDROOM ONE
Smooth and coved ceiling, UPVC double-glazed window, radiator and laminate flooring.
BEDROOM THREE
Smooth and coved ceiling, UPVC double-glazed window, radiator and laminate flooring.
BATHROOM
Smooth ceiling, inset spotlights, obscured UPVC double-glazed window, panal bath with shower over, wash hand basin, tiled splash back, low level W.C, radiator and tiled flooring.
BEDROOM TWO
Smooth ceiling, UPVC double-glazed window, storage cupboards, radiator, laminate flooring and door into;
EN-SUITE
Smooth ceiling, UPVC double-glazed window, enclosed shower cubicle, wash hand basin, tiled splash back, low level W.C, storage cupboard and laminate flooring.
OUTSIDE
Laid with decking and shingle for ease of maintenance and providing off-road parking.
COUNCIL TAX
Portsmouth City Council TAX BAND B £1,696.27 for the year 2025/2026.
Read full description
Show less