Situated in a popular Southsea street, this beautifully presented three-bedroom terraced home effortlessly blends period charm with modern living. Behind its attractive bay and forecourt façade, the property opens into a welcoming hallway leading to two generous reception rooms linked via a wide opening - both boasting elegant period features, fitted storage and plenty of natural light. The recently fitted kitchen is a standout feature, showcasing sleek contemporary design with quartz work surfaces and the room has plenty of space for a sizeable dining table, perfect for family life and entertaining.
A convenient downstairs cloakroom completes the ground floor accommodation. Upstairs, there are two well-proportioned double bedrooms and a third smaller room ideal as a nursery, study, or dressing room. The modern family bathroom offers a stylish and tranquil space with quality fittings throughout. To the rear, a delightful south-facing garden provides a private and sunny retreat with lawn, patio and a brick built storage shed.
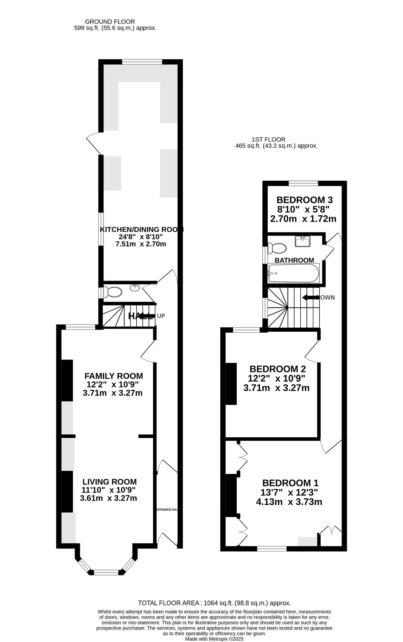
ENTRANCE HALL
Smooth and coved ceiling, cupboard housing electric fuse board, dado rails, fitted carpet and door into;
HALL
Smooth ceiling, character ceiling arch, picture rails, stairs rising to first floor landing, dado rails, radiator, fitted carpet and doors into;
LIVING ROOM
Smooth ceiling, ornate cornicing, ceiling rose, picture rails, UPVC double glazed bay window, radiator, fireplace recess, recessed fitted cabinets, fitted carpet.
FAMILY ROOM
Smooth ceiling, ornate cornicing, ceiling rose, picture rails, recessed shelving, UPVC double glazed window, radiator, fitted carpet.
W.C.
Smooth ceiling, inset spotlight, double glazed obscured window, W.C with built in wash hand basin, under stairs storage cupboard, vinyl flooring.
KITCHEN / DINING ROOM
Smooth ceiling, inset spotlights, dual aspect UPVC double glazed windows, double glazed door to rear garden, range of wall and base mounted units with Quartz work surfaces and upstands, inset stainless steel sink unit and routed drainer with mixer tap over, space for range style cooker, integrated fridge freezer, integrated dishwasher, space and plumbing for washing machine and tumble dryer, LVT flooring.
FIRST FLOOR LANDING
Textured ceiling, picture rails, UPVC side aspect window, radiator, fitted carpet.
BEDROOM ONE
Smooth and coved ceiling, UPVC double glazed window, a range of fitted wardrobes, radiator, fitted carpet.
BEDROOM TWO
Smooth and coved ceiling, UPVC double glazed window, radiator, fitted carpet.
BEDROOM THREE
Smooth and coved ceiling, UPVC double glazed window, radiator, fitted carpet.
BATHROOM
Smooth and coved ceiling, inset spotlights obscured UPVC double glazed window, panelled bath with shower over and screen, W.C., wash hand basin with cupboards beneath, ladder radiator, part tiled walls and tiled flooring.
OUTSIDE
The rear garden faces in a southerly direction, wall enclosed, mostly laid to lawn, patio and plant bed borders, brick built storage shed.
COUNCIL TAX
Portsmouth City Council TAX BAND B £1,696.27 for the year 2025/2026.
Read full description
Show less