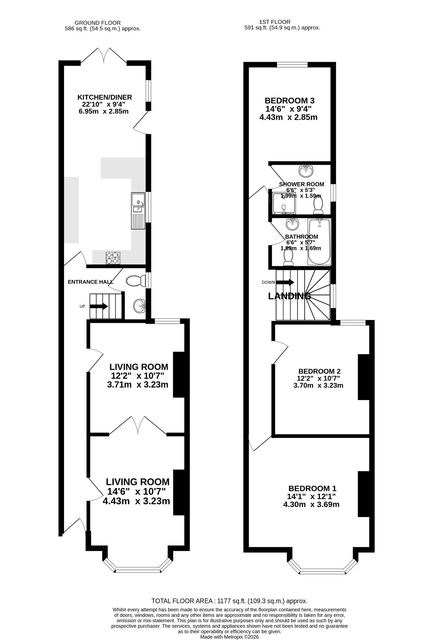
Sold with no forward chain, this three-bedroom mid-terraced home offers an abundance of living space, perfectly suited for a growing family. The ground floor features two large reception rooms, benefiting from an attractive bay window and high ceilings which provide a sense of space and natural light. To the rear, the kitchen/diner provides an excellent hub for everyday living and entertaining, with doors opening directly onto the garden and a convenient ground floor cloakroom completes ground floor accommodation. On the first floor, the property offers three generously sized double bedrooms along with a shower room and bathroom.
Externally, the rear garden provides a private outdoor space, paved for ease of maintenance and providing rear access. An early inspection is recommended to avoid disappointment.
ENTRANCE HALL
Textured and coved ceiling, radiator, stairs rising to first floor landing, fitted carpet and doors into;
LIVING ROOM
Textured ceiling with ornate cornicing, ceiling rose, picture rails, UPVC double-glazed bay window, tall folding doors, radiators, fitted carpet and doors into;
LEAN-TO
Polycarbonate ceiling, shelving, window and door to garden and tiled flooring.
W.C
Smooth ceiling, wooden framed window, wash hand basin, low level W.C, gas meter and fitted carpet.
KITCHEN/DINER
Smooth ceiling, UPVC double-glazed windows and doors to the garden, side aspect door, a range of wall and base mounted units with roll top work surfaces over, inset sink and drainer, cooker with extractor fan over, space for appliances, radiator and tiled flooring.
LANDING
Textured ceiling, loft hatch access, UPVC double-glazed window, fitted carpet and doors into;
BEDROOM ONE
Textured ceiling, ornate cornicing, picture rails, UPVC double-glazed bay window, radiator and fitted carpet.
BEDROOM TWO
Textured ceiling, UPVC double-glazed window, radiator and fitted carpet.
BEDROOM THREE
Textured ceiling, UPVC double-glazed window, radiator and fitted carpet.
BATHROOM
Textured ceiling, extractor fan, UPVC double-glazed window, bath with shower over, wash hand basin, low level W.C, radiator and fitted carpet.
SHOWER ROOM
Textured ceiling, extractor fan, UPVC double-glazed window, enclosed shower cubicle, tiled splash back, low level W.C and tiled flooring.
OUTSIDE
Externally, the rear garden provides a private outdoor space, paved for ease of maintenance and providing rear access.
COUNCIL TAX
Portsmouth City Council TAX BAND C £2,037.07 for the year 2026/2027.
Read full description
Show less